一級建築士事務所エンラージ|八王子市・日野市を拠点に価値のあるリノベーション&リフォームをご提案いたします
完全分離型・二世帯住宅にフルリノベーション!
| お名前 | S 様 | 費用 | 約2300万円 |
|---|---|---|---|
| 工事内容 | 二世帯化リノベーション | ご住所 | あきる野市 |
| 工期 | 約3ヵ月半 | 間取り | 完全分離型二世帯住宅 |
将来のことを見据え、奥様のご両親を呼んで皆で一緒に暮らすための二世帯化リノベーション。建築業をされているご主人様が大工のお兄さんと一緒に建てた大切なお家をこれからも大切に住み続けられる住まいへ。
玄関や水まわりを2ヵ所ずつ設け、プライバシーも守れる「完全分離型」の二世帯住宅です。
男気溢れる家族想いなご主人様の「奥様やご両親に不自由なく快適に過ごしてほしい。」という願いから『経験豊富な設計士』と『気の合う担当プランナー』が決め手になり、7社ある相見積もり先の中からお選び頂きました。
工事中には、新築時に柱に書いたメッセージがでてきて成長した息子様と一緒にご覧になるなど、想い出に残るリノベーションになりました。
デザインパース
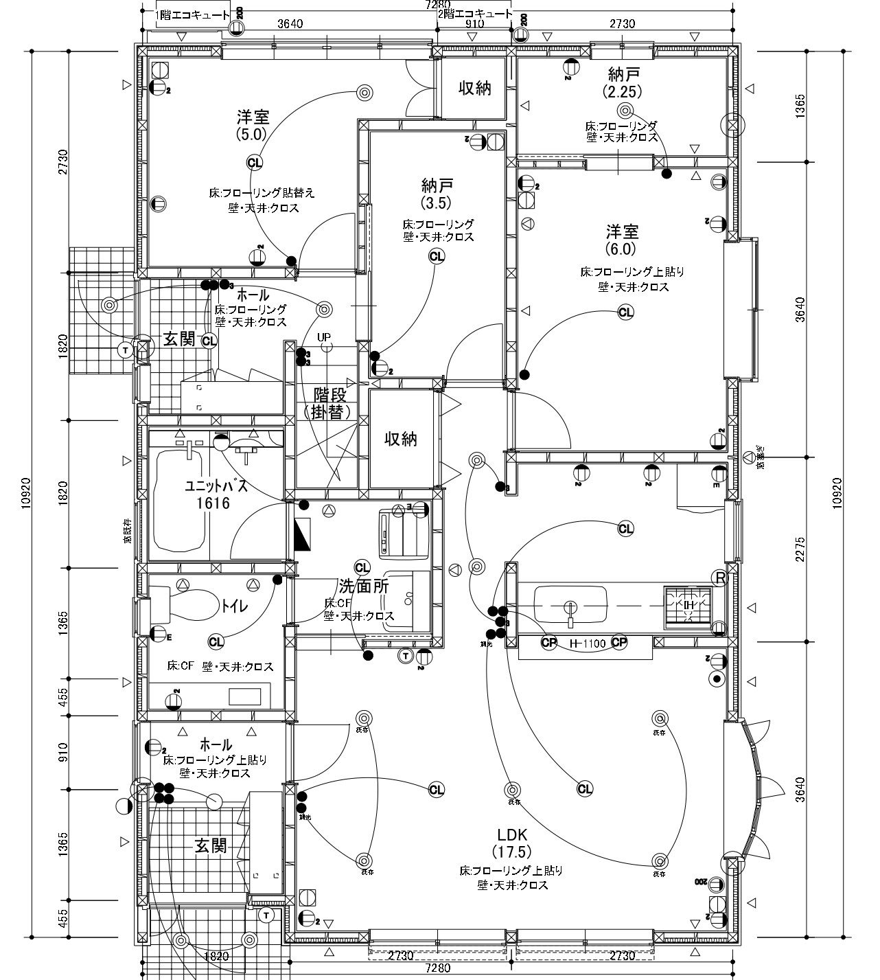
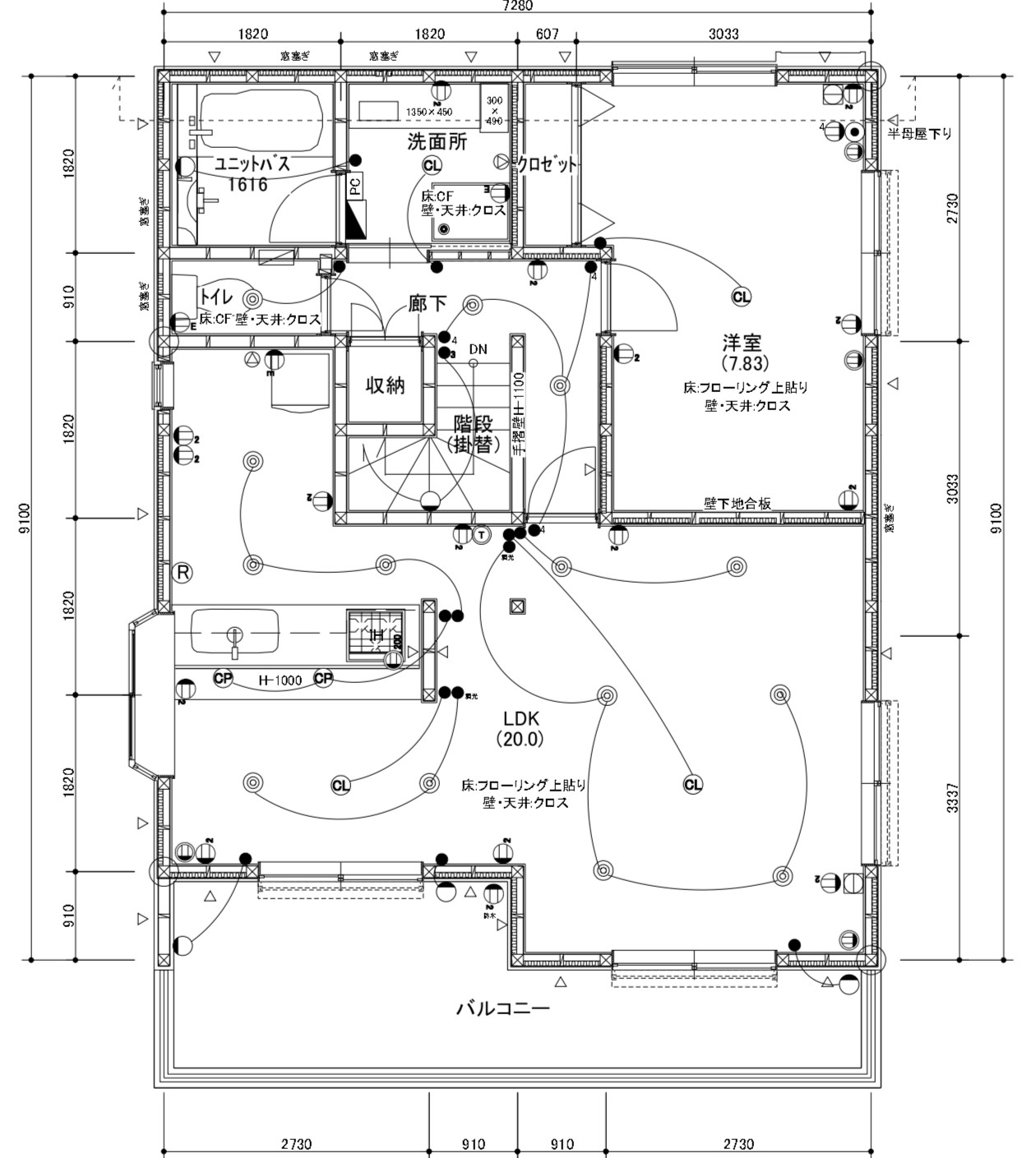
間取り図
完全分離型の二世帯フルリノベーション
1階の水まわりは最新の設備に全交換、2階には水まわり4点を新設。
エンラージが得意とする「完全分離型」の二世帯住宅仕様です。
太陽光発電パネル&エコキュートでサステナブルな暮らし
太陽光発電パネルとエコキュートを採用し、オール電化仕様に変更。
再生可能なエネルギーを自給自足できるので、環境にもやさしく経済的!
施工前
担当者より
関連施工事例
-
二世帯住宅の1階をフルリノベーション
日野市 N様 費用:約1960万円
N様は当社のホームページをご覧になり、お問い合わせくださいま…

-
実家の二階を“ときめき”を感じる素材でリノベーション!
日野市 K様 費用:約1200万円
ご主人のご実家に移り住むことをきっかけにリフォームを計画され…

-
ライフスタイルに合わせたこだわりの二世帯全面リノベーション
八王子市 O様 費用:約2780万円
北野支店のお近くのO様邸。元々1階に息子様ご夫婦・2階にご両…

-
延床面積202㎡(61坪)の大型二世帯住宅新築(建て替え)工事
八王子市 U様 費用:約4670万円 (外構工事含む)
U様は当社のHPを見てご来店頂いたお客様です。当初はご両親と…






























































S様 この度は当社に大規模なリフォームをお任せいただき、誠にありがとうございました。
完全分離型の二世帯化リフォームで、私自身とても良い経験をさせて頂きました。
当社の一級建築士のプランや施工管理の小川、そしてプランナーの私のことをお褒めくださり
とても嬉しかったです。
ご主人様のご家族想いな姿に、必ずお応えしたい!という気持ちで尽くさせていただきましたが
工事完成後は皆様にお喜びいただけて本当に良かったです。
生まれ変わったご自宅で、ご家族が幸せにお暮しいただけることを心から願っております。
また何かございましたらいつでもご連絡下さい。今後共、末永くよろしくお願い申し上げます。
プランナー 前田