一級建築士事務所エンラージ|八王子市・日野市を拠点に価値のあるリノベーション&リフォームをご提案いたします
明治時代から受け継がれてきた築120年の古民家再生リノベーション
| お名前 | M 様 | 費用 | 約2200万円 |
|---|---|---|---|
| 工事内容 | 平屋のフルリノベーション | ご住所 | 福生市 |
| 工期 | 約3か月 | 間取り | 3LDK+WIC |
地方から東京への転勤をきっかけに、ご祖父母様から引き継いだ古い空き家をリフォームして移り住むことを決意されたM様。築120年の古民家再生プランを現地調査から2週間でまとめあげたスピードとプランの精度、3Dパースでのご提案をお喜びいただきました。お打合せ期間は遠方にお住まいだった為、仕様選び等は主にオンラインを活用。一級建築士によるM様の生活スタイルに合わせたリノベーションプランで、古民家の面影は残しつつ、安全で快適なお住まいへと生まれ変わりました。
デザインパース
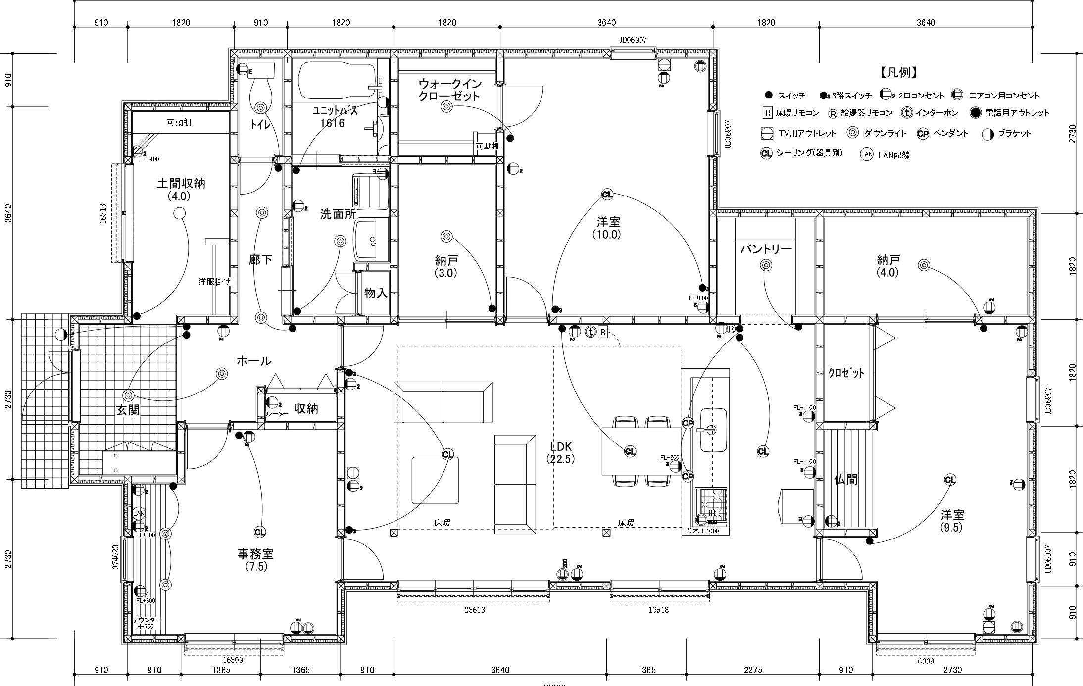
間取り図
一級建築士によるリノベーションプラン
約40坪の広い平屋をM様のライフスタイルに合わせて間取りを大きく変更。
既存の和室と縁側スペースを22.5帖の大空間なLDKに変えることで、憧れのアイランドキッチンを実現しました。
古民家の良さを生かしつつ、耐震性と断熱性を向上して快適な住まいへ
古民家ならではの和の面影は残しつつ、LOW-Eガラス採用の断熱窓への交換、リビングには電気式床暖房を設置しました。寒い冬でも底冷えせず快適にお過ごしいただけます。
こだわりのリモートワークスペース
リモートワークの多いM様ご希望でワークスペースを新設。内装はオフィスのイメージで、居住スペースとは異なる雰囲気に。仕事とプライベートの切り替えを配慮しました。
施工前
担当者より
関連施工事例
-
自然光を採りこんだ明るい住まいへとフルリノベーション
八王子市 N様 費用:約2460万円
N様は弊社ホームページをご覧になり、お問い合わせくださいまし…

-
古き良き時代の面影を遺す、古民家風デザインリノベーション
昭島市 K様 費用:約1960万円
築60年ほどのK様邸。奥様のご実家で経年による老朽化が進んで…

-
劇的に変わるフルリノベーション!耐震強度と断熱性も飛躍的に向上!
八王子市 I様 費用:約2180万円
I様はSUUMOリフォームを通じてお問い合わせいただいたお客…

-
2階建てを平屋にリフォーム!減築で末永く快適に暮らせるお住まいが完成!
八王子市 S様 費用:約2780万円
S様はSUUMOリフォームを通じてお問合せをいただいたお客様…





























































M様、この度は全面リフォームの工事をお任せいただき誠にありがとうございました。築120年の古民家なので、補修や補強が必要な所も多々ありましたが、代々受け継がれてきた大切な建物の雰囲気も残したい!と強く思いプランさせていただきました。工事に際してましては難しい施工箇所もありましたが、腕利きの大工さんや現場監督が全力を尽くさせていただきました。M様にもプロとしての仕事を感じ取っていただけた、素敵な現場になったと感じております。ご入居後は快適にお過ごしいただいているとのことで、とても嬉しく思います。M様、これからも末永いお付き合いをどうぞよろしくお願いいたします。 プランナー 松村