一級建築士事務所エンラージ|八王子市・日野市を拠点に価値のあるリノベーション&リフォームをご提案いたします
実家の二階を“ときめき”を感じる素材でリノベーション!
| お名前 | K 様 | 費用 | 約1200万円 |
|---|---|---|---|
| 工事内容 | 2階のフルリノベーション | ご住所 | 日野市 |
| 工期 | 約3か月 | 間取り | 3LDK+W.I.C+S |
ご主人のご実家に移り住むことをきっかけにリフォームを計画されたK様。重量鉄骨造で既に2世帯仕様のご実家でしたが、奥様の『ときめき』が詰まったお気に入りの空間にする為にご相談いただきました。奥様のご希望されたLDK一体の対面キッチンのご提案や家事動線、今後の住みやすさを考えた建築士による間取りプランとスタッフのK様に寄り添う気持ちを気に入っていただき、当社にお任せくださいました。お打ち合わせは八王子店・日野支店と2店舗に足を運んでいただきましたが、お子様が打ち合わせの間にスタッフと遊ぶことをいつも楽しみにしてくれていて、お打ち合わせの日は朝から「エンラージまだ?」と聞いてくれていると伺い、大変嬉しくほっこりするエピソードに心が温まる想いでした。
デザインパース
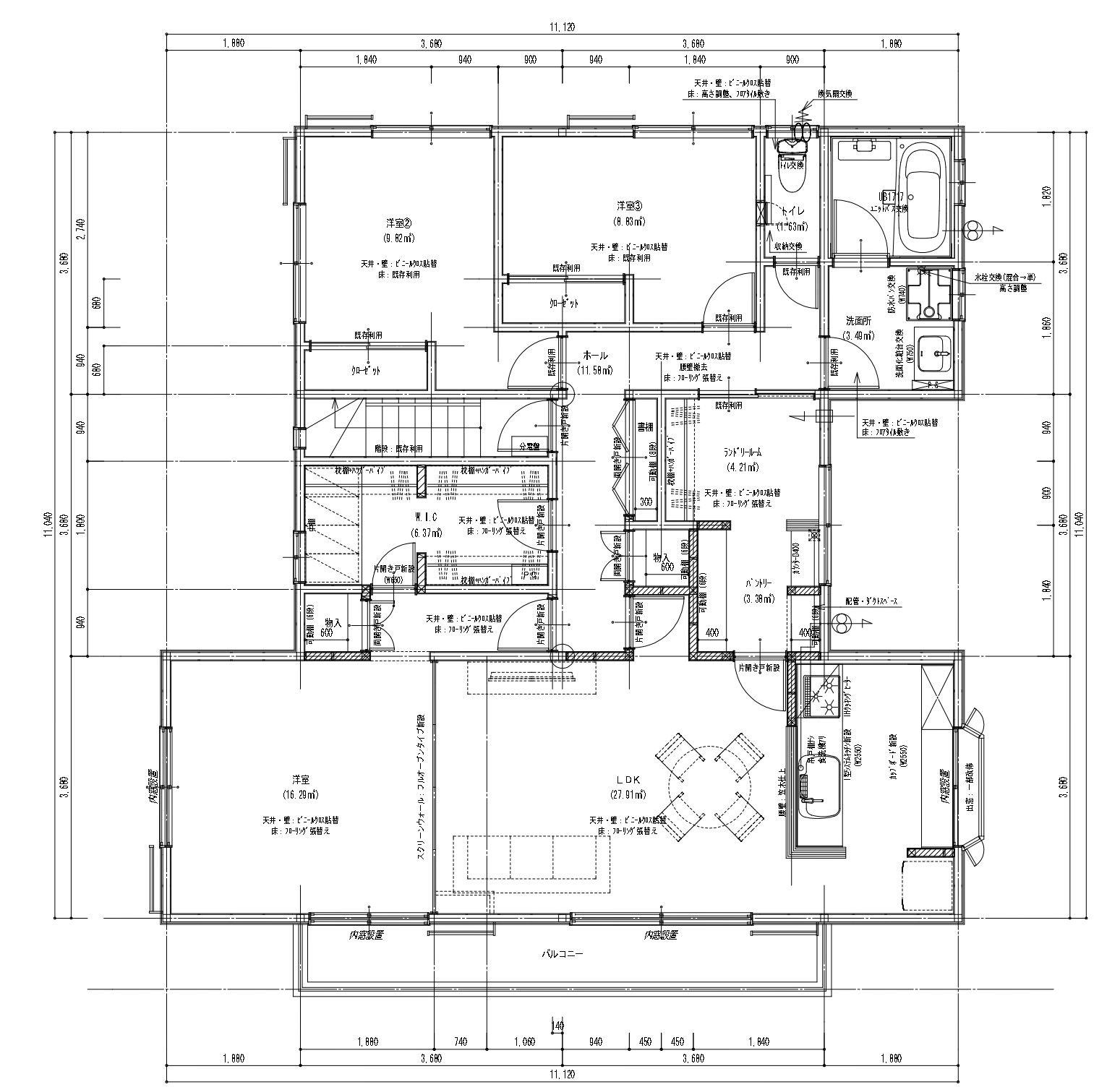
間取り図
『ときめき』を感じるリビング
奥様が『ときめき』を感じた床、エコカラット、壁紙等をふんだんに使用したこだわりのLDKが完成。特に壁紙は圧迫感がなく周りと調和し、落ち着いた空間になるようにと奥様とプランナーで何度も相談をしながら選びました。
また、広いリビングは空間を仕切ってお子様の遊び場や客間として使用できるようにPanasonic『間仕切り開閉扉』を設置しています。
家事動線に配慮して間取り変更
キッチンとLDが別々のお部屋だった為、キッチンの位置移動、間取変更をして奥様のご要望であったLDK一体の対面キッチンを実現。重量鉄骨造でキッチンの位置移動には制約がありましたが、パイプスペースがデメリットにならないよう収納計画と併せてプランしたところとても気に入っていただきました。また、元々のキッチン室は広いパントリー兼家事室として生まれ変わり、さらに浴室と洗面室にも近い家事動線に配慮した空間になりました。
収納力抜群のW.I.Cとパントリー
お手持ちの物が新しいお家の収納に収まるか心配されていたK様の為に、お引越し前のご自宅にも伺い収納計画をプランしました。ファミリークローゼットはご家族全員のお洋服が入るように設計し、パントリーには可動棚を設置して効率よく収納ができます。
また、廊下に設置した本棚はご主人様の漫画をたくさん収納できるように考えた設計者こだわりのポイントです。
施工前
担当者より
関連施工事例
-
自然光を採りこんだ明るい住まいへとフルリノベーション
八王子市 N様 費用:約2460万円
N様は弊社ホームページをご覧になり、お問い合わせくださいまし…

-
古き良き時代の面影を遺す、古民家風デザインリノベーション
昭島市 K様 費用:約1960万円
築60年ほどのK様邸。奥様のご実家で経年による老朽化が進んで…

-
劇的に変わるフルリノベーション!耐震強度と断熱性も飛躍的に向上!
八王子市 I様 費用:約2180万円
I様はSUUMOリフォームを通じてお問い合わせいただいたお客…

-
ライフスタイルに合わせたこだわりの二世帯全面リノベーション
八王子市 O様 費用:約2780万円
北野支店のお近くのO様邸。元々1階に息子様ご夫婦・2階にご両…






















































K様、この度は大切なご実家のリフォームをお任せいただき誠にありがとうございました。K様とは初めてお会いした時から楽しくお話が弾み、ご要望をお伺いして絶対にお力になりたい!と強く思いました。
仕様お打ち合わせの際は好みが似ていることもあり、奥様の『ときめき』に私自身もときめきつつ、奥様のご要望を叶えるべく進めさせていただきました。
お引渡しの際には「エンラージさんに任せて良かった!」とのお言葉をいただき、本当に嬉しい気持ちでいっぱいです。
イベントなどにもご参加いただき、スタッフ一同K様との出会いに大変感謝しております。
K様、今後とも末永いお付き合いをどうぞよろしくお願いいたします! プランナー 松村