一級建築士事務所エンラージ|八王子市・日野市を拠点に価値のあるリノベーション&リフォームをご提案いたします
二世帯住宅の1階をフルリノベーション
| お名前 | N 様 | 費用 | 約1960万円 |
|---|---|---|---|
| 工事内容 | 1階全面リノベーション | ご住所 | 日野市 |
| 工期 | 約3ヵ月 | 間取り | 1LDK |
N様は当社のホームページをご覧になり、お問い合わせくださいました。
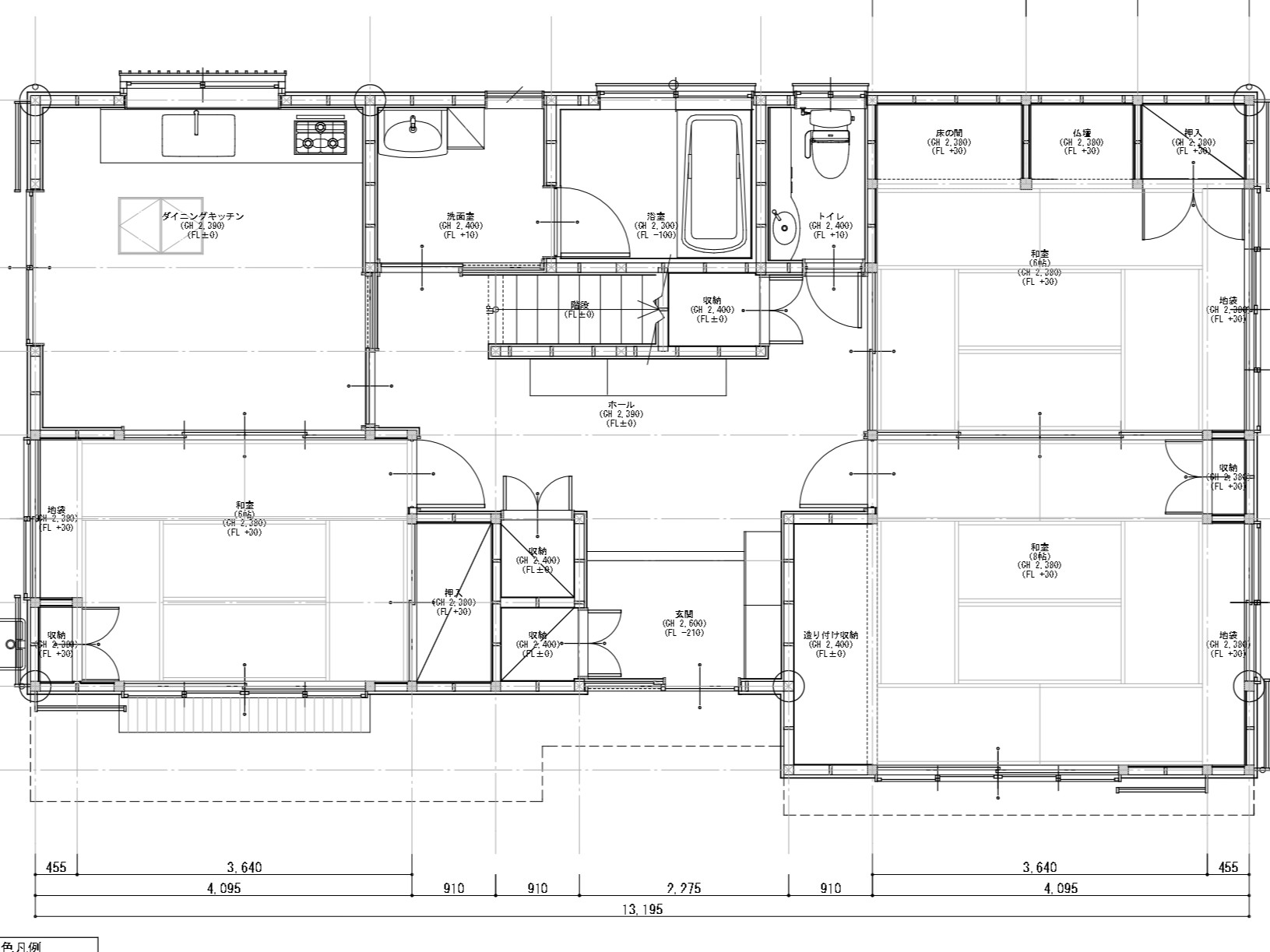
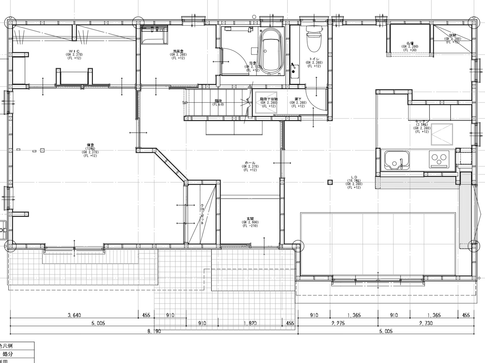
元々二世帯住宅の2階スペースに居住していましたが、1階が1年ほど空き家の状態でもったいない空間になっていること、今後2階での生活が厳しくなることが考えられること、そしてお孫様が泊りがけで遊びに来るようになったことから、空きスペースを有効活用するため1階全面工事を決意されました。1階スペースを主に利用する奥様のために、不便に感じていることの解消や理想を叶えるプランをご提案。また、新築から30年以上が経ち耐震性が2000年基準に満たないため、耐震性を向上したいというご主人様のご要望で耐震補強を行いました。キッチンの位置を大移動し対面キッチンにしたことで、家事をしながらでも子どもたちの様子を見られるようになりました。
デザインパース
間取り図
窓交換で断熱性の向上
1階の窓を全て交換。断熱性の向上により、真冬の寒さが身に沁みる空間から日中はエアコンの暖房がなくても過ごせるような快適空間へと変わりました。
施工前
担当者より
関連施工事例
-
住みやすさと非日常感をテーマにしたデザインフルリノベーション
相模原市 A様 費用:約2940万円
A様はホームプロを通じてお問い合わせいただいたお客様でした。…

-
古き良き時代の面影を遺す、古民家風デザインリノベーション
昭島市 K様 費用:約1960万円
築60年ほどのK様邸。奥様のご実家で経年による老朽化が進んで…

-
劇的に変わるフルリノベーション!耐震強度と断熱性も飛躍的に向上!
八王子市 I様 費用:約2180万円
I様はSUUMOリフォームを通じてお問い合わせいただいたお客…

-
2階建てを平屋にリフォーム!減築で末永く快適に暮らせるお住まいが完成!
八王子市 S様 費用:約2780万円
S様はSUUMOリフォームを通じてお問合せをいただいたお客様…


























































N様
この度はご自宅の1階全面工事をお任せくださり、誠にありがとうございます。また、ご在宅工事ということもあり、工事中は私どもにお気遣い頂き、重ねてお礼申し上げます。工事前は“和”な雰囲気の落ち着きある空間でしたが、工事後は全体的に明るく開放感のあるお住まいに変わりましたね。キッチン位置の大移動や広く開放的な間取りにするための補強工事など、少々難易度が高い施工もございましたが、大工さんをはじめとする職方の皆様と監督が連携し、チーム一丸となって工事を進めてまいりました。完成時には「大満足!」のお言葉を頂くことができ、心から嬉しかったです。生まれ変わった住まいで、ご家族皆様が快適にお過ごしいただけることを祈っております。今後ともよろしくお願いいたします。
プランナー川崎