一級建築士事務所エンラージ|八王子市・日野市を拠点に価値のあるリノベーション&リフォームをご提案いたします
住みやすさと非日常感をテーマにしたデザインフルリノベーション
| お名前 | A 様 | 費用 | 約2940万円 |
|---|---|---|---|
| 工事内容 | 戸建てフルリノベーション | ご住所 | 相模原市 |
| 工期 | 約6ヵ月 | 間取り | 2LDK+2LDK |
A様はホームプロを通じてお問い合わせいただいたお客様でした。元々2世帯住宅の2階エリアに住まわれていましたが、家族構成の変化や将来的に2階への行き来が大変になるだろうことを見越して、1階エリアをメインの生活スペースにすることにしました。生活スペースを移すにあたり、1階に住まうご夫婦がより暮らしやすい間取りに変更し、2階は家族・親族が集まる時や、来客時のゲストルームへと全面的に改修しました。
1階は主に日常の生活スペースとなるため、今のお住まいで気になるところ・不便なところをヒアリングし、それらを解消できるような間取りの提案・施工を行い、2階については1階と異なり、アジアンリゾートや和モダンの要素を感じられる、暗めで落ち着いたリゾートライクな非日常空間になるようプランしました。1階2階ともに開放感が欲しいというご希望を担当設計士が耐震性などを考慮の上、叶えることができました。またご契約前のお打ち合わせ期間では、新春もちつきに参加してくださり、イベント・社内の雰囲気を楽しんでいただけました。
デザインパース
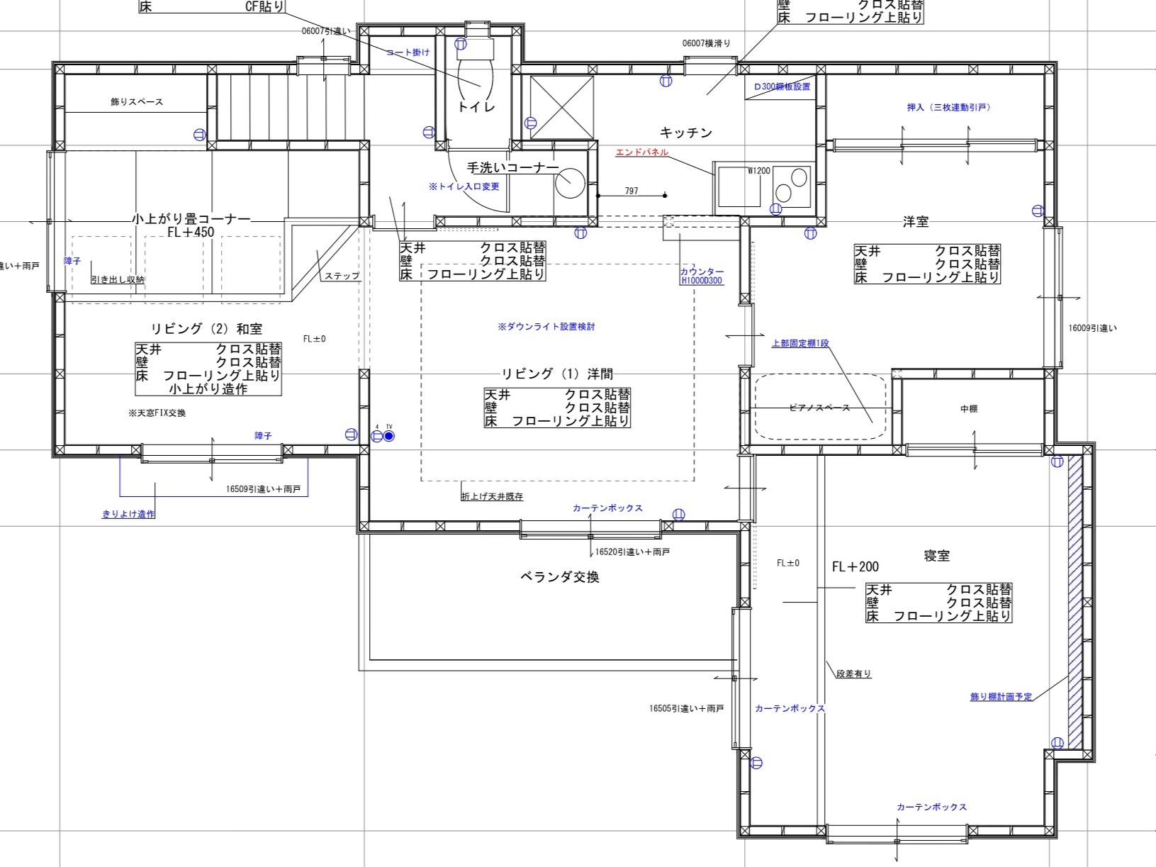
間取り図
開放的な間取り
耐震性や偏心率を考慮しながら、撤去可能な柱は梁補強などを行い取り払いました。これまでの仕切られた空間が広がり、開放的な間取りに。家族団らんが叶うLDK空間を実現。






















































A様
この度はご自宅の全面的な工事をお任せ頂き、誠にありがとうございます。また、工事期間中はご協力くださり、重ねてお礼申し上げます。在宅での全面工事のため生活動線を確保しながらの工事ということもあり、施工的に厳しい場面や、既存再利用のものとの関係で技術的に工夫が必要な場面もございました。そのような難しい条件下でもしっかりと工事を終えられたのは、ひとえに職人さんの施工力、そして設計・監督との連携の賜物です。「1階は明るく開放的に使いやすい空間にしたい」「2階はリゾートライク・ホテルライクで落ち着いた雰囲気にしたい」と、それぞれの空間ではっきりとしたイメージをお持ちだったA様。理想の空間を実現でき、そしてご満足いただけたこと、大変嬉しく思います。生まれ変わったお住まいで、楽しく快適な毎日をお過ごしいただけることを祈っております。
プランナー川崎