一級建築士事務所エンラージ|八王子市・日野市を拠点に価値のあるリノベーション&リフォームをご提案いたします
自然光を採りこんだ明るい住まいへとフルリノベーション
| お名前 | N 様 | 費用 | 約2460万円 |
|---|---|---|---|
| 工事内容 | 一戸建てフルリノベーション | ご住所 | 八王子市 |
| 工期 | 約4ヵ月 | 間取り | 2LDK+W.I.C+ロフト |
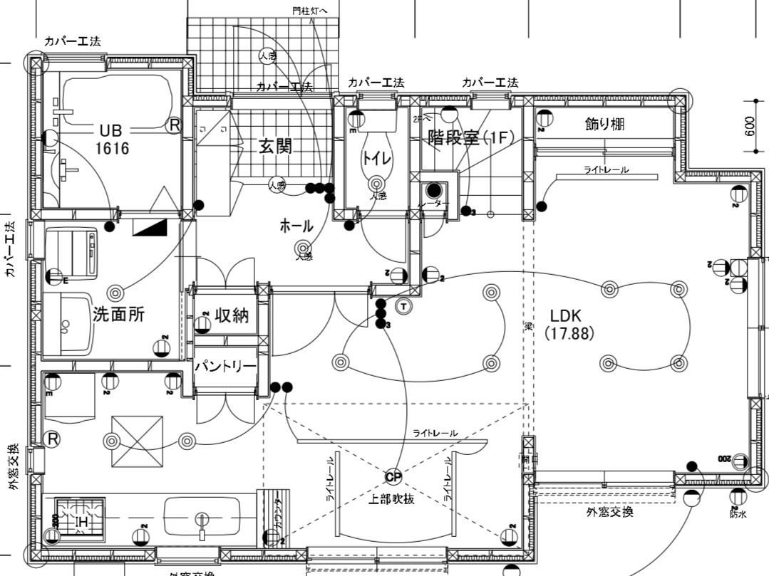
N様は弊社ホームページをご覧になり、お問い合わせくださいました。親世帯の移住に伴い、息子様がご実家の建物を受け継ぎ、お住まいになることとなったため、耐震性や断熱性、採光の問題を解消しながら、末永く快適に暮らせる住まいへとフルリノベーションしました。初めてご来店いただいた際には「新築」にするか「リフォーム」をするか悩まれている状態でしたが、N様の今後の生活やご希望を考慮し、フルリフォームで進めていくことをご提案。懸念していた1階リビングの採光問題について、吹き抜けを新設することをご提案したところ、とてもお喜びいただきました。
デザインパース
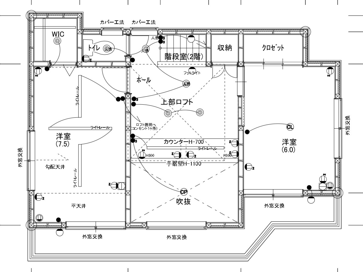
間取り図
広々としたLDK
1階の和室をLDKに取り込むことで、ご親族が集まる際にもゆとりのある大空間を実現しました。さらに吹き抜けにすることで心配されていた断熱性能についても、断熱材の補強や全ての窓をLow-E複層ガラスのサッシに交換することで、季節問わず快適に過ごせる設計となりました。
開放感のある吹き抜け
1階LDKは日当たりが悪く、暗い印象になってしまうことにお悩みでした。そこで、2階の1部屋を大胆に吹き抜けへと変更し、自然光が降り注ぐ明るいLDKへと生まれ変わりました。
吹き抜けに面した2階のワークスペース
2階の吹き抜けに面してご家族が自由に使えるワークスペースを新設。集中して作業したい時にはもちろん、将来ご家族が増えた際にも活躍するプラスαの空間です。
こだわりの推しスペース
お好きなアーティストのグッズを飾るためのディスプレイ収納。きれいな状態で保管しながら楽しめます!グッズがよく見えるように照明を設置しました。
開放感と収納力を兼ね備えたロフト
寝室は勾配天井にしてロフトを新設。既存の梁をあえてあらわしにすることで、温かみのある唯一無二の空間へと仕上がっています。また、未利用のスペースをロフトへと生まれ変わらせることで、秘密基地のようなプラスαの空間が完成しました。
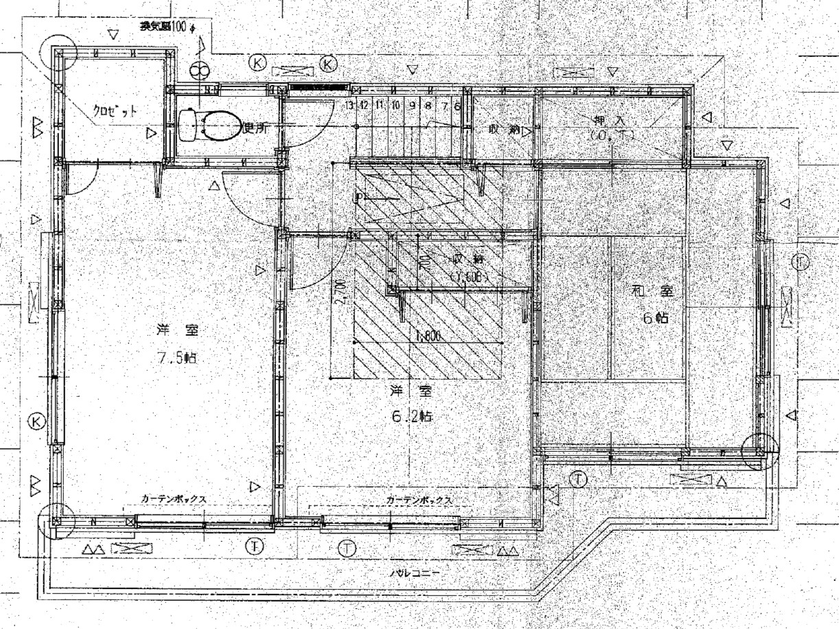
施工前
担当者より
関連施工事例
-
古き良き時代の面影を遺す、古民家風デザインリノベーション
昭島市 K様 費用:約1960万円
築60年ほどのK様邸。奥様のご実家で経年による老朽化が進んで…

-
劇的に変わるフルリノベーション!耐震強度と断熱性も飛躍的に向上!
八王子市 I様 費用:約2180万円
I様はSUUMOリフォームを通じてお問い合わせいただいたお客…

-
実家の二階を“ときめき”を感じる素材でリノベーション!
日野市 K様 費用:約1200万円
ご主人のご実家に移り住むことをきっかけにリフォームを計画され…

-
ライフスタイルに合わせたこだわりの二世帯全面リノベーション
八王子市 O様 費用:約2780万円
北野支店のお近くのO様邸。元々1階に息子様ご夫婦・2階にご両…

































































N様、この度は大切なご実家のリフォームをお任せいただき、誠にありがとうございました。N様とは推しのアーティストが一緒というご縁もあり、初めてお会いした時から親近感を覚えておりました。ご家族皆さまでご参加いただいた仕様の打ち合わせは、毎回とても楽しい時間で、スタッフ一同元気をいただいておりました。また、「松村さんのオススメで!」とご採用いただいた内容を、完成時にお喜びいただけたこと、そして「任せて良かった」とのお言葉をいただけたことは、大変嬉しく、プランナー冥利に尽きる瞬間でした。今後もお住まいに関してお困りのことがございましたら、いつでもご連絡ください。
プランナー 松村真帆