一級建築士事務所エンラージ|八王子市・日野市を拠点に価値のあるリノベーション&リフォームをご提案いたします
劇的に変わるフルリノベーション!耐震強度と断熱性も飛躍的に向上!
| お名前 | I 様 | 費用 | 約2180万円 |
|---|---|---|---|
| 工事内容 | 戸建てフルリノベーション | ご住所 | 八王子市 |
| 工期 | 約4ヵ月 | 間取り | 5LDK |
I様はSUUMOリフォームを通じてお問い合わせいただいたお客様でした。相続されたご実家を全面的にリノベーションして移り住みたいというご依頼でした。ご実家を新築された際の施工品質に対して不満があったため、今回のリフォームでは職人の腕の良さ・高い施工品質・丁寧さを重視していました。また築40年を越え、耐震についても心配されていたので、施工経験が豊富な一級建築士による間取り変更・耐震補強設計プランをご提案したところ、安心してお任せいただくことができました。プランナーが作成した3Dパースについても大変お喜びいただき、パース通りの仕上がりになるようチーム一丸となって工事を進めました。他社で難しいとされた工事内容をエンラージで叶えることができました。
デザインパース
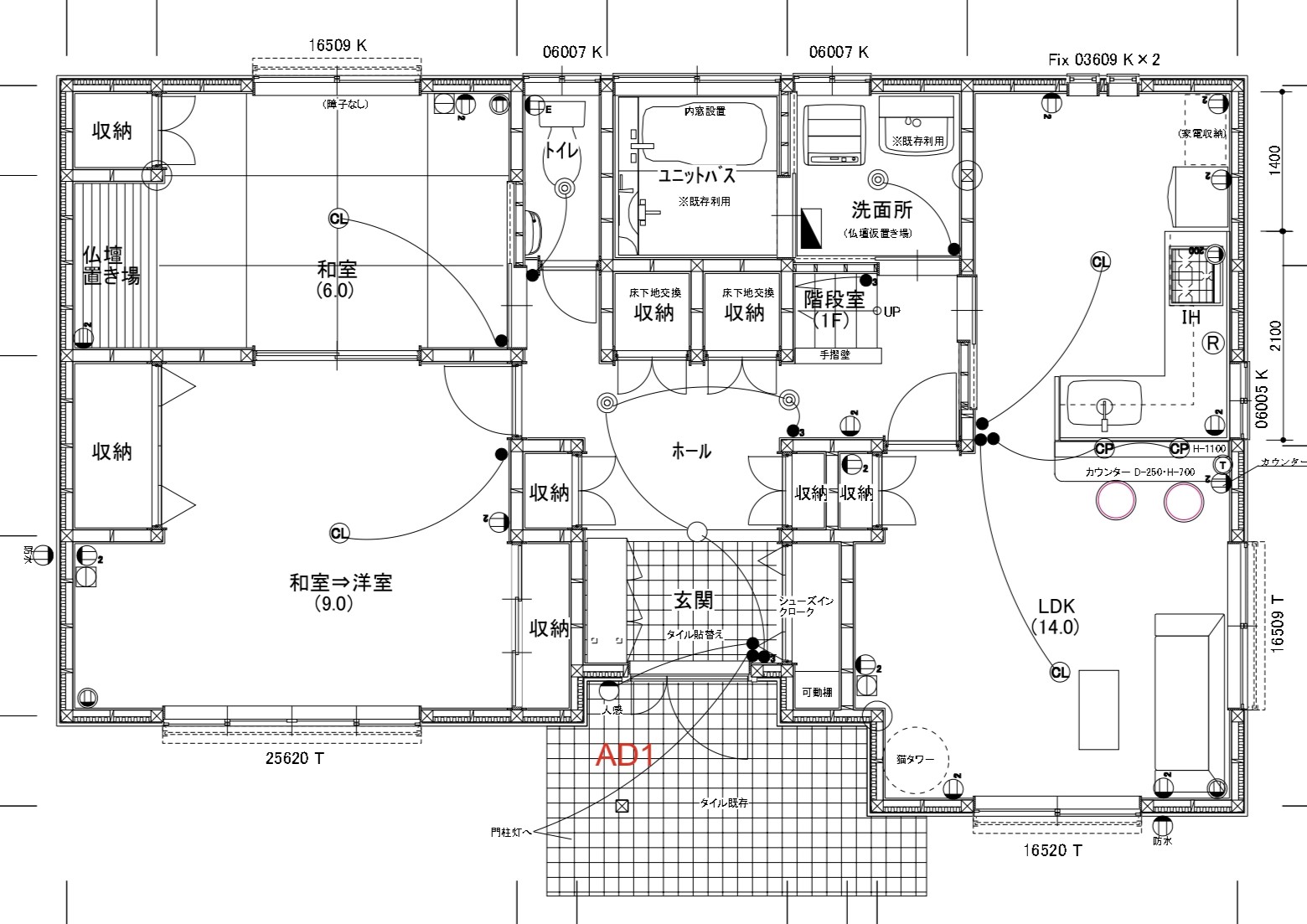
間取り図
一級建築士による間取変更と耐震補強
一級建築士が耐震計算を行い、大地震でも倒壊しないレベルに耐震性を向上するプランをご提案しました。耐震評点1.0以上を確保して、安心安全のお住まいへと生まれ変わりました。生活スタイルに合わせた間取り変更で、対面キッチンやひろびろリビングを実現しました。
断熱性向上とこだわりの外装
すべての窓を断熱性能の高いサッシに交換し、お家全体の断熱性がアップ!
外壁はスタイリッシュでかっこよくなるようにこだわり、屋根は軽量のガルバリウム鋼板屋根に葺き替えました。
収納スペースの増設
各部屋、十分な収納スペースをとれるようプランしました。1階ホールにはシューズクロークをはじめ、たくさんの収納スペースを確保しました。リビング収納の下部を開口にして、ねこちゃん用のトイレスペースに。
造作バルコニーを新設
元々はトタン屋根の上にアルミ製のベランダが載っており、奥行きが狭く出入りも大変でしたが、エンラージが得意とする造作バルコニー工事で、新築のように広くてきれいなルーフバルコニーが完成!
施工前
担当者より
関連施工事例
-
二世帯住宅の1階をフルリノベーション
日野市 N様 費用:約1960万円
N様は当社のホームページをご覧になり、お問い合わせくださいま…

-
住みやすさと非日常感をテーマにしたデザインフルリノベーション
相模原市 A様 費用:約2940万円
A様はホームプロを通じてお問い合わせいただいたお客様でした。…

-
自然光を採りこんだ明るい住まいへとフルリノベーション
八王子市 N様 費用:約2460万円
N様は弊社ホームページをご覧になり、お問い合わせくださいまし…

-
古き良き時代の面影を遺す、古民家風デザインリノベーション
昭島市 K様 費用:約1960万円
築60年ほどのK様邸。奥様のご実家で経年による老朽化が進んで…




























































この度は大切なご実家の全面リフォームをお任せいただきまして誠にありがとうございました。
他社の見積りが揃っていない状況の中で、私どもエンラージを信頼してお任せくださったことはとても嬉しく、I様ご家族にご満足いただけるよう尽力いたしました。結果として、とても良いリフォームになり、お喜びいただくことができて本当に良かったです。これからも末永いお付き合いをよろしくお願いいたします。
プランナー 前田優香