一級建築士事務所エンラージ|八王子市・日野市を拠点に価値のあるリノベーション&リフォームをご提案いたします
愛車を守るビルトインガレージを増築したこだわりのフルリノベーション!
| お名前 | Y 様 | 費用 | 約2720万円 |
|---|---|---|---|
| 工事内容 | 1階増築+フルリノベーション | ご住所 | 日野市 |
| 工期 | 4.5ヵ月 | 間取り | 2LDK+S+ビルトインガレージ |
Y様より「愛車を雨風から守るためにビルトインガレージを新設したい」というお問い合わせをいただきました。さらに居住スペースも快適に心地よく暮らせるお家にしたいというご希望でしたので、LDKを中心に全面的なリフォームをご提案し、お任せいただきました。建築確認を取得の上ビルトインガレージを増築し、1階・2階のフルリノベーションを実施! また、弊社主催のイベント『市民リフォーム祭』で展示されていたブルーの玄関ドア(YKKap:プロント、アイスブルーノーチェ色)に奥様が一目惚れされたとの事で、即ご採用いただきました。「暮らしのイメージを一新したい」というご希望から、増築部分と既設部分とのバランスを考慮しつつイメージチェンジできるよう、全体的にブルー基調のデザインをご提案したところ、大変お喜びいただけました。
デザインパース
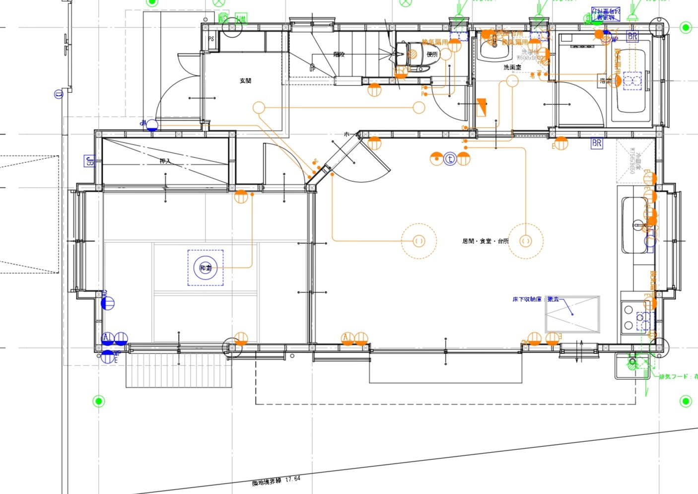
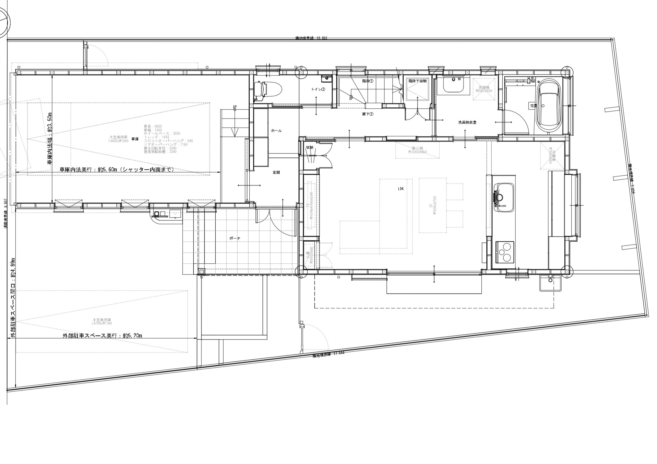
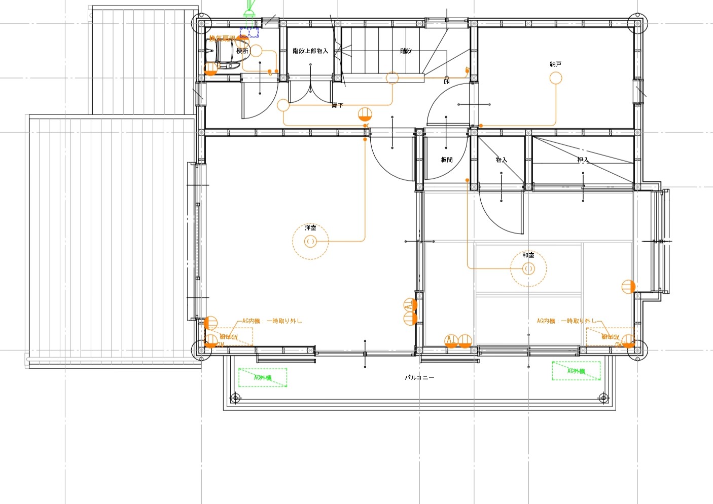
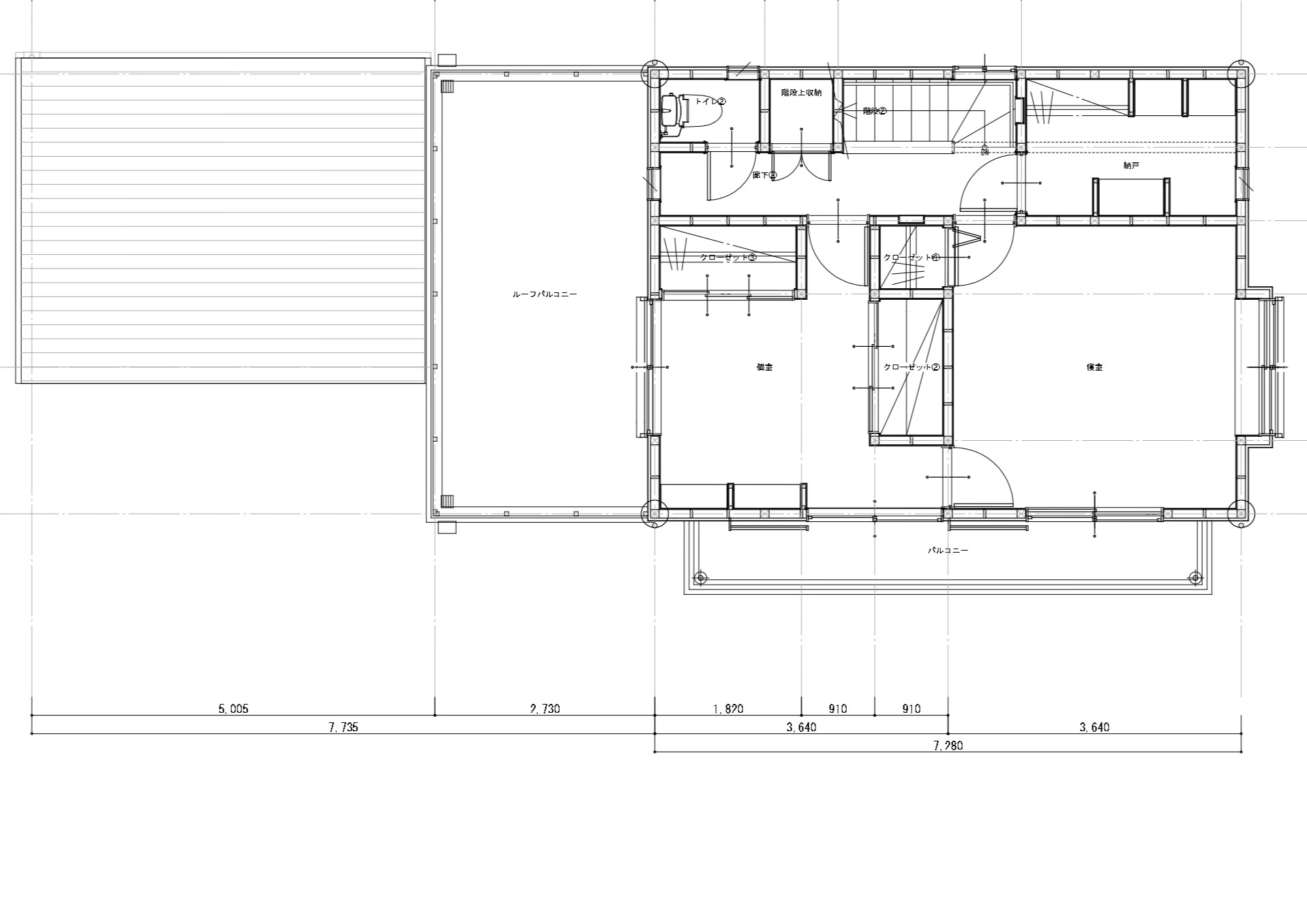
間取り図
夢のビルトインガレージ
大切な新車を守るためにガレージを増築!大型乗用車でも余裕をもって駐車できるスペースに。電動リモコンシャッタ(LIXIL:クワトロ)を採用しているので楽々駐車できます。内部のデザイン・照明にもこだわり、アメリカのバックヤードガレージをイメージしたカッコ良い空間が完成!
広々したくつろぎのLDK
暗い印象だったリビングダイニングと使われていなかった和室の一部を一体化することで、大空間のLDKが実現。明るい色を基調とした内装や、調光可能なダウンライト、間接照明でシーンや気分に合わせて雰囲気を変えられるワンランク上の居住スペースになりました。壁付けのキッチンを対面化する事で、リビングで過ごすご家族とコミュニケーションが取れるように設計。キッチンの背面にはカップボードも設置したので、収納量が格段にUPしました。
こだわりのニッチ&飾り棚
奥様が収集している可愛い雑貨を飾れるように、リビング・寝室・廊下にニッチや飾り棚を新設しました。3Dパースをお見せしながら棚の位置や飾り方をご提案したので奥様のイメージ通りに仕上がりました。ニッチは背面の壁紙を変えたり、照明を仕込んだりと飾るのが楽しくなる仕掛けをたくさん盛り込んだので、完成時にとてもお喜びいただけました。
施工前
担当者より
関連施工事例
-
2階建てを平屋にリフォーム!減築で末永く快適に暮らせるお住まいが完成!
八王子市 S様 費用:約2780万円
S様はSUUMOリフォームを通じてお問合せをいただいたお客様…

-
家族6人が健やかに暮らせるユニバーサルデザインの家
八王子市 M様 費用:約1520万円
M様はご両親と同居のため、家族6人が心地よく過ごせる全面的な…

-
増築+間取り変更で、理想的な住まいを実現。
武蔵村山市 S様 費用:約990万円
S様のお宅はまだ築4年という新しさでしたが手狭になってきたた…

-
築40年の木造住宅。新築を超えたフルリノベーション!
八王子市 K様 費用:約1700万円
K様は、当社のホームページを見てお問い合わせいただきました。…




























































Y様、この度は大規模なリフォームをお任せいただき、誠にありがとうございました。
初めてお会いした時から工事完了の日までは長い月日が流れましたが、振り返るとあっという間で、充実した楽しい日々であったと感じております。
今回の工事は建築確認申請が必要な増築工事ということもあり、難易度が高い内容でしたが、Y様ご夫婦のお人柄にひかれ、一級建築士の荻田と共に「必ずお喜びいただきたい!」という思いで、力を合わせて取り組ませていただきました。
毎回のお打ち合わせの中では、奥様の柔軟な発想に驚かされ、大変良い勉強をさせていただきました。仕様選びの場面では、より快適にそして末永くお使いいただけるようにと考えながら、色々とご提案させていただきました。
カラーの決定に迷われた際には、私のご提案をそのままご採用いただけたことも大変嬉しく感じております。
Y様のお住まいはすぐお近くですので、今後何かお困りの際は、いつでもお気軽にご連絡くださいませ。
末永いお付き合いをどうぞよろしくお願い申し上げます。
プランナー 松村