一級建築士事務所エンラージ|八王子市・日野市を拠点に価値のあるリノベーション&リフォームをご提案いたします
2階建てを平屋にリフォーム!減築で末永く快適に暮らせるお住まいが完成!
| お名前 | S 様 | 費用 | 約2780万円 |
|---|---|---|---|
| 工事内容 | 2階減築・1階フルリノベーション | ご住所 | 八王子市 |
| 工期 | 約4ヵ月 | 間取り | 1LDK+ピアノ教室 |
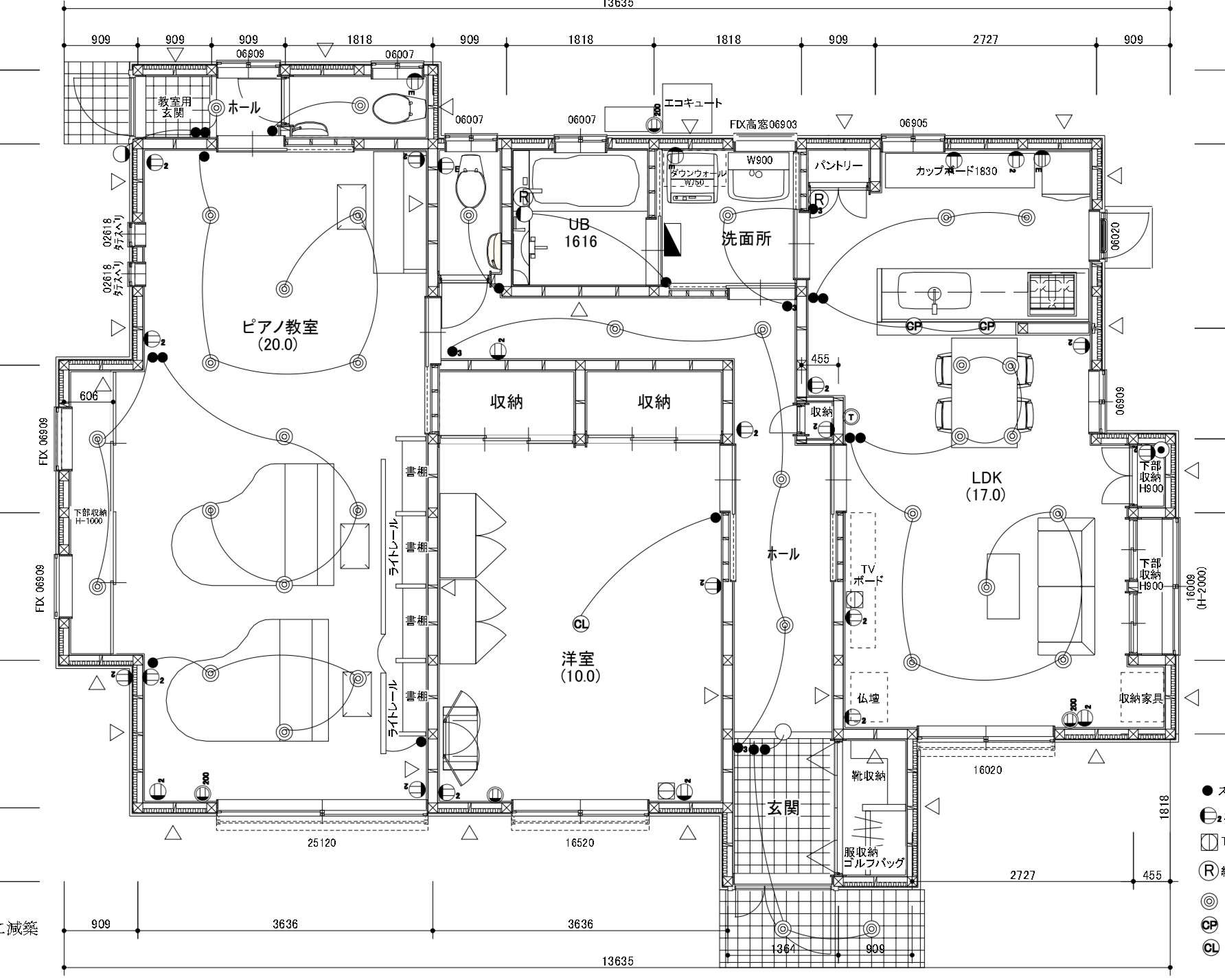
S様はSUUMOリフォームを通じてお問合せをいただいたお客様でした。現在のお住まいと隣接するご両親が住んでいらした2階建ての木造住宅を平屋にリフォームして移り住みたいというご依頼でした。老後の事も考え『安心して暮らせる終の棲家』をテーマに当社の一級建築士が設計したプランをとても気に入って下さいました。他社ではほとんど実例のない「減築工事」ですが、当社では実績が豊富にある事も決め手となりました。奥様がピアノの先生なので、ピアノ教室も併設した快適な「終の棲家」が完成し、S様ご夫婦にはとてもお喜びいただけました。また、弊社が協賛している八王子花火大会のスポンサー席にご招待した際には、間近で見る花火とスタッフのおもてなしに感激して下さいました。
デザインパース
間取り図
大胆な間取り変更
2階建てから平屋へ。S様の1番の希望であった平屋への減築リフォームを一級建築士の設計と現場の施工チームの技術力によって実現しました。また、日中は陽の光で明るく暖かくお過ごしになりたいとのご希望から、窓を大きくし明るく過ごせる空間にしました。
グランドピアノが2台置けるピアノ教室
奥様がピアノ教室の先生で、ご自宅でレッスンをするため、グランドピアノを2台置くことのできる広いレッスン室をつくりました。お部屋の片側には、お手持ちの楽譜や必要な書類をすべて収納できるよう大容量の棚を造作しました。
最新の水廻り設備
キッチンと洗面化粧台はLIXIL、浴室とトイレはTOTO製品。特にキッチンは『シエラS』ペニンシュラタイプを採用し、広いLDKにふさわしい高級感のある仕上がりとなりました。また、トイレは清掃性と美観に優れたタンクレストイレ『ネオレスト』をお選びいただきました。
施工前
担当者より
関連施工事例
-
古き良き時代の面影を遺す、古民家風デザインリノベーション
昭島市 K様 費用:約1960万円
築60年ほどのK様邸。奥様のご実家で経年による老朽化が進んで…

-
愛車を守るビルトインガレージを増築したこだわりのフルリノベーション!
日野市 Y様 費用:約2720万円
Y様より「愛車を雨風から守るためにビルトインガレージを新設し…

-
劇的に変わるフルリノベーション!耐震強度と断熱性も飛躍的に向上!
八王子市 I様 費用:約2180万円
I様はSUUMOリフォームを通じてお問い合わせいただいたお客…

-
明治時代から受け継がれてきた築120年の古民家再生リノベーション
福生市 M様 費用:約2200万円
地方から東京への転勤をきっかけに、ご祖父母様から引き継いだ古…




























































この度は2階の減築を伴う全面リフォーム工事を弊社にお任せいただき誠にありがとうございました。初めて『2階建てのご自宅を平屋にしたい』とお伺いした際には驚きました。お会いする度にS様ご夫婦のお人柄に惹かれ、さらに今回のリフォーム工事を最後として「理想のお家にしたい!」という強い思いを感じ、必ずS様のご希望を叶えたい!と全力で取り組ませていただきました。
実際に難しい工事内容ではありましたが、一級建築士の設計や施工管理スタッフと職方のチームワークの良さを全面に活かすことのできた工事であったと思います。S様にも工事を通して、弊社の強みを感じていただけお任せいただけたこと、大変嬉しく思います。
私自身も約半年間、S様とお打ち合わせを通して一緒に造りあげたお家が完成し、大きな達成感を味わうことができました。さらに、完成したピアノ教室にグランドピアノが設置されているのを拝見した際には、感動で涙が出そうでした。
S様、今後とも末永いお付き合いをよろしくお願いいたします。 プランナー 松村真帆