一級建築士事務所エンラージ|八王子市・日野市を拠点に価値のあるリノベーション&リフォームをご提案いたします
ハウスメーカー築 軽量鉄骨造の中古戸建てをフルリノベーション!
| お名前 | N 様 | 費用 | 約1880万円 |
|---|---|---|---|
| 工事内容 | 軽量鉄骨リフォーム | ご住所 | 八王子市 |
| 工期 | 約3ヵ月 | 間取り | 3LDK+S |
N様は以前ご自宅のリフォーム工事をお任せいただいたお客様です。今回はお住まいのマンションがお子様の成長に伴い、手狭になったために購入した中古戸建ての全面リフォームをご依頼いただきました。全面的にご信頼いただき、プラン・デザイン・施工ともに全てお任せすると仰っていただけたので、N様ご家族を必ず幸せにしたい!と思い尽力しました。軽量鉄骨造の間取り変更を伴う全面リフォームのため、難しい工事ではありましたが一級建築士が作成したプランで、ご家族が安心して暮らせる『いまどき風』がテーマの心地よいお住まいが完成しました!
デザインパース
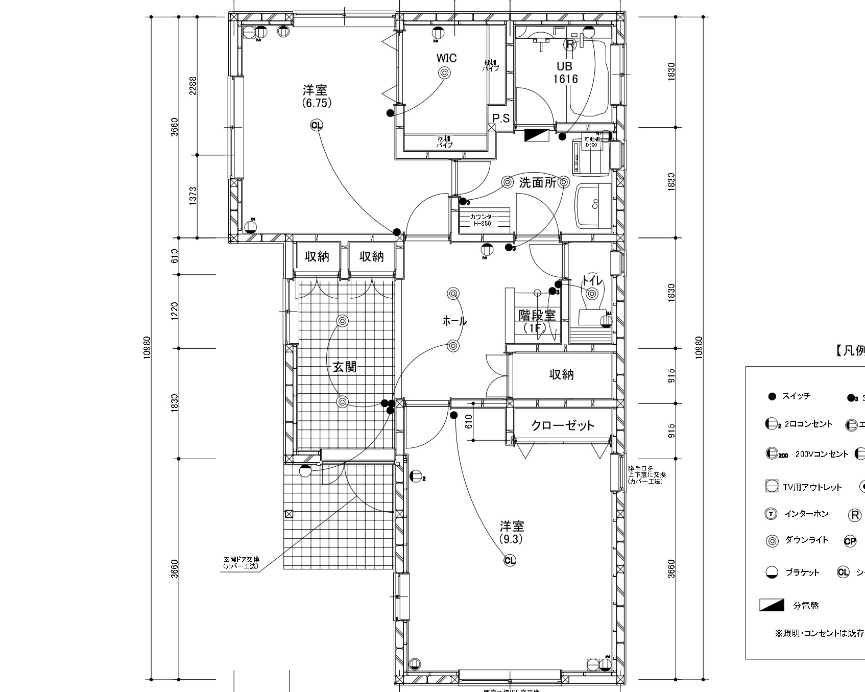
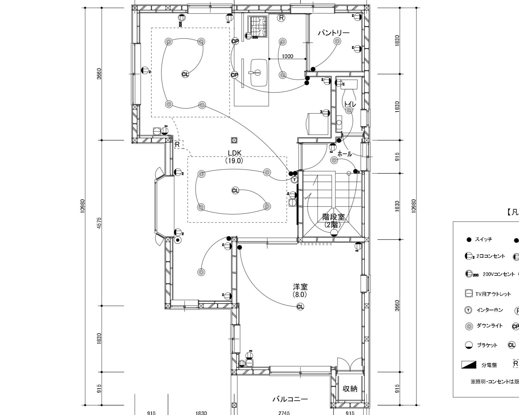
間取り図
こだわりのLDK
『ひろびろ』『開放的』『いまどき風』をテーマにプランしました。キッチンはペニンシュラタイプを採用し、オープンに。ダイニング側は収納になっており、実用的です!内装はアクセントクロスに合わせてブルーのタイルを貼ったこだわりのキッチン空間が完成!
鉄骨造の間取り変更を伴う全面リフォーム
キッチンの位置移動や和室の洋室化、洗面室の拡張など、間取り変更で快適に♪また、使用頻度の少ない勝手口を上げ下げ窓に交換しました!工事に制約の多い鉄骨造でしたが、一級建築士のプランでご家族の生活スタイルに合う造りに生まれ変わりました!
充実した収納スペース
キッチン背面のパントリーは、調理器具や食品を大容量収納できるようサイズアップしました!1階の洋室にはウォークインクローゼットを新設しました。
アクセスしやすい洗面室
玄関ホール、1階洋室からアクセスできるよう入口を2か所設けました。また可動棚や作業カウンターを設置し、使い勝手の良い洗面室が完成しました!
施工前
担当者より
関連施工事例
-
ジャパンディなマンションフルリノベーション
八王子市 A様 費用:約1300万円
A様は当社のInstagramをご覧になり、当社主催の「八王…

-
中古マンションデザインリノベーション
八王子市 T様 費用:約1300万円
T様はスーモカウンターからのご紹介で、中古購入したマンション…

-
中古マンションを購入して自分好みにデザインリノベーション
八王子市 O様 費用:約1130万円
O様は中古購入したマンションの間取り変更を伴う全面的なリノベ…

-
中古を買ってお好みのデザインにリノベーション!
八王子市 Y様 費用:約1100万円 [物件代金を含む総額:約5000万円]
Y様は北野支店にご来店頂いたお客様で「中古住宅を購入して、自…




























































N様、この度は工事をお任せいただき誠にありがとうございました。明るく気さくなご夫婦、元気いっぱいのお子様たち、とても仲の良いN様ご家族が末永く快適にお暮しいただけるよう、ご家族のために良いリフォームをしたいというご主人様のお気持ちに必ずお答えできるよう、チーム一丸となり誠心誠意努めさせていただきました。その結果、リフォームの仕上がりをお喜びいただけ本当に嬉しかったです。素敵なお家でこれからもご家族仲良く快適に過ごしていただけましたら幸いです。今後ともよろしくお願いいたします。 プランナー 前田優香