一級建築士事務所エンラージ|八王子市・日野市を拠点に価値のあるリノベーション&リフォームをご提案いたします
中古戸建てをライフスタイルにマッチした開放的な間取りにリノベーション
| お名前 | M 様 | 費用 | 約1370万円 |
|---|---|---|---|
| 工事内容 | 中古戸建てリノベーション | ご住所 | 国立市 |
| 工期 | 約3ヵ月 | 間取り | 4LDK |
M様は、購入した中古戸建てを開放的な間取りでお子様やワンちゃんが広々と過ごせるように、さらにお好みのテイストに一新して快適に暮らしたいとホームプロよりお問い合わせいただきました。お好きな内装のイメージやご希望を丁寧にヒアリングし、大胆に間取り変更をしたプランを3Dパースと合わせてご提案したところ、とてもお喜びいただけました。相見積もりをした会社の中でエンラージが一番金額は高いけれど、プランも一番心に刺さりました!とお任せいただきました。家事育児がしやすい回遊型のアイランドキッチンや広々としたLDK、趣味の服や靴を仕舞える大容量の収納増設、好みのインテリアデザインなど、ご希望を叶えてフラワーカフェを営まれているおしゃれなおご夫婦にぴったりのおしゃれなお家に生まれ変わりました。
デザインパース
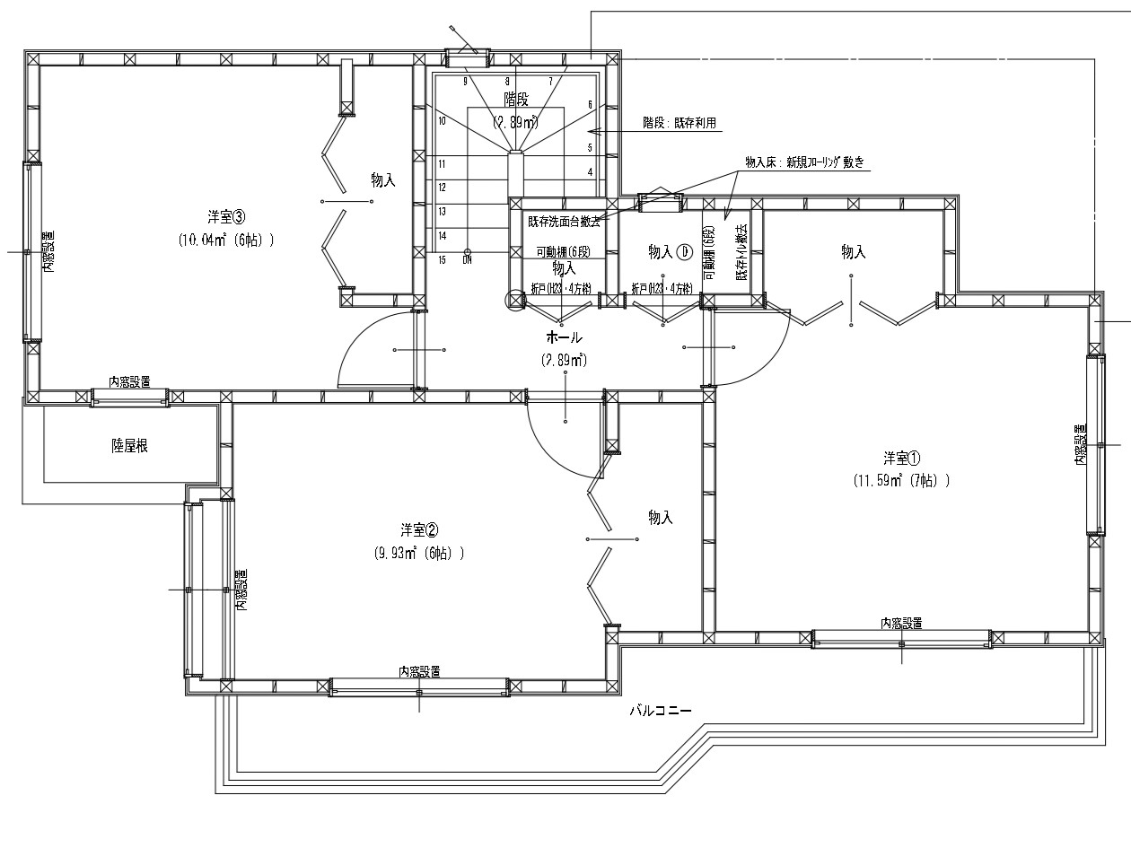
間取り図
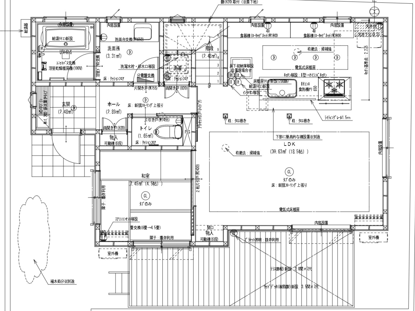
間取り変更で住みやすく
間取り変更で和室のサイズを小さく、LDKを広くしてご家族の憩いの場に。階段下のトイレは天井が低く使いづらいため、位置移動をして背の高いご主人も利用しやすいよう工夫しました。
施工前
担当者より
関連施工事例
-
“木・水・石”をテーマにデザインしたこだわりのセカンドハウスリノベーション
稲城市 A様 費用:約2060万円
A様はスーモカウンターよりお問い合わせいただきました。セカン…

-
ジャパンディなマンションフルリノベーション
八王子市 A様 費用:約1300万円
A様は当社のInstagramをご覧になり、当社主催の「八王…

-
ハウスメーカー築 軽量鉄骨造の中古戸建てをフルリノベーション!
八王子市 N様 費用:約1880万円
N様は以前ご自宅のリフォーム工事をお任せいただいたお客様です…

-
中古マンションデザインリノベーション
八王子市 T様 費用:約1300万円
T様はスーモカウンターからのご紹介で、中古購入したマンション…




























































M様、この度は当社に工事をお任せいただき誠にありがとうございました。日野支店からお近くのお住まいで、ご縁をいただけたこと感謝申し上げます。ご夫婦ともにお仕事でご多忙なので、お二人がゆっくりとくつろげて、快適に過ごせるお住まいになるようにプランさせていただきました。鴨志田の設計プランを気に入っていただき、イメージパースもご希望にピッタリとお喜びいただけて嬉しかったです。仕様のお打ち合わせでは、センスの良い奥様と一緒に可愛い娘様にも気に入ってもらえるように内装を選んだことが印象的で、また前田さんに全てお任せしますと言っていただけたこと、とても光栄でした。工事スケジュールもしっかり組み、無理のない範囲でリフォームが可能なところをお伝えした際、ご安心いただけて私共もほっといたしました。1階2階と全面的に素敵な仕上がりになりましたね。今後、ウッドデッキやテラスなどの外構工事もされたいとのことでしたので、ぜひお任せいただければ幸いです。今後とも末永くよろしくお願いいたします。
プランナー 前田