一級建築士事務所エンラージ|八王子市・日野市を拠点に価値のあるリノベーション&リフォームをご提案いたします
デザインにこだわった鉄骨造住宅の全面リノベーション
| お名前 | A 様 | 費用 | 約2060万円 |
|---|---|---|---|
| 工事内容 | 中古戸建てリノベーション | ご住所 | 稲城市 |
| 工期 | 約3ヵ月 | 間取り | 4LDK+WIC |
A様はスーモカウンターよりお問い合わせいただきました。セカンドハウスとして中古購入された戸建て住宅を将来的にお子様に相続する可能性も考慮し、水廻り設備交換や内装、エクステリアなど全体的なリノベーションをご計画。ご家族が集まる時やイベント時に使用することを想定しているため、大人が集まってもくつろげる開放的な空間、自然を感じられる空間、デザイン性のある空間、内外共に灯りデザインにこだわった照明計画をご希望されていました。好きな雰囲気・テイストはあるものの、具体的なイメージが難しいとのことだったのでイメージパースで提案したところ「完成が分かりやすい」「こんな空間にしたかった」と喜んでいただけました。仕様のお打ち合わせでは水廻り設備だけではなく、床材や建具、タイルなどの細部までショールームで確認を行い、デザインのこだわりを詰め込みました。
デザインパース
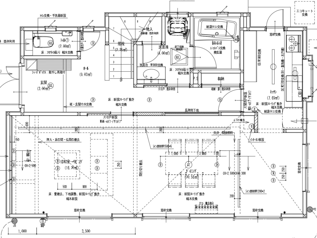
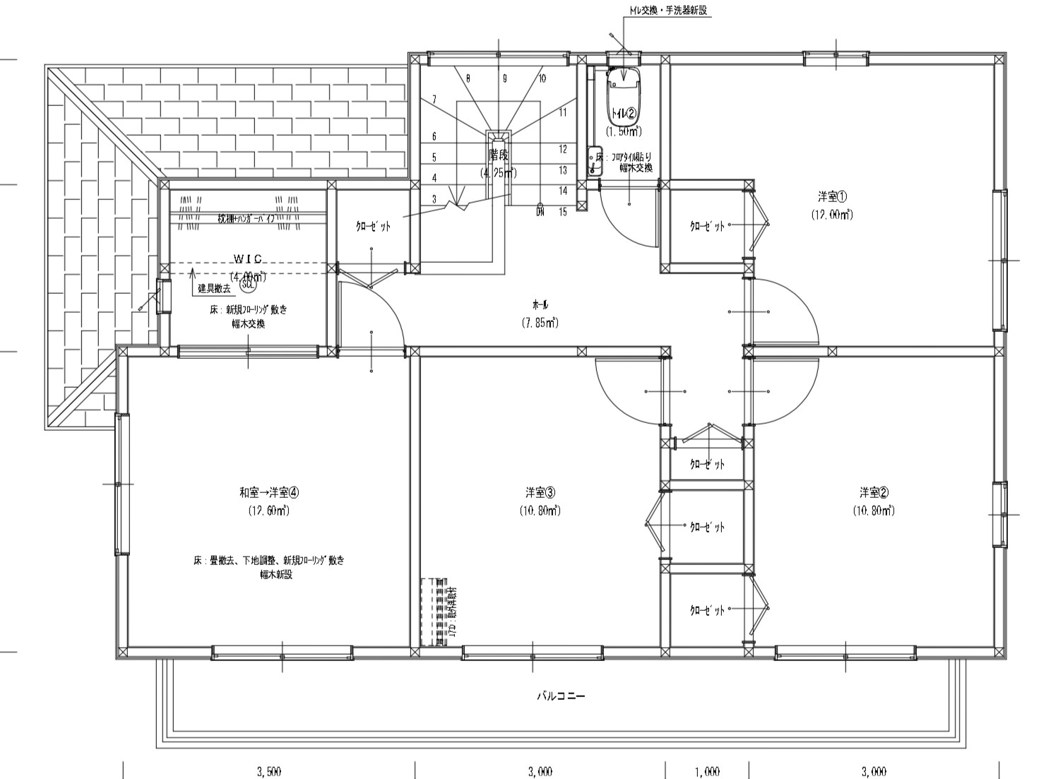
間取り図
“木・水・石”のイメージを取り入れた大人のナチュラルインテリア
それぞれをイメージしたデザインや素材をアクセントに取り入れ、ダークトーンで落ち着きがありつつもナチュラル感のある雰囲気に仕上げました。
開放的なLDK空間
木造と比較すると間取り変更の難易度が高いと言われる軽量鉄骨造ですが、構造の特性を理解している設計士と職人の技術により、広々とした開放的なLDK空間を実現しました。
しっとりと高級感のある挽板フローリング
朝日ウッドテック「ライブナチュラルプレミアム:スタンダード」のブラックウォルナット挽板を採用。挽板のしっとり感が心地よく、クラシックな濃淡とゆらめく縞模様が空間を美しく彩ります。
室内とエクステリアがつながる空間
既存の大開口窓を活かしてお庭の風景が絵画のように見えるよう工夫し、室内にいながらも四季を感じられるLDKに。また、ウッドデッキ・テラス屋根も新設し、お庭時間を楽しめる空間となりました。
施工前
担当者より
関連施工事例
-
「家事ラク・モノトーン」がテーマのマンションデザインリノベーション
昭島市 K様 費用:約1040万円
K様は、ホームページをご覧になり、週末開催イベント『リノベー…

-
新築を超えた!中古購入リノベーション!
八王子市 I様 費用:非公開
I様は当社ホームページよりお問い合わせいただいたお客様で、中…

-
中古戸建てをライフスタイルにマッチした開放的な間取りにリノベーション
国立市 M様 費用:約1370万円
M様は、購入した中古戸建てを開放的な間取りでお子様やワンちゃ…

-
ジャパンディなマンションフルリノベーション
八王子市 A様 費用:約1300万円
A様は当社のInstagramをご覧になり、当社主催の「八王…


























































A様
この度はセカンドハウスの全面的なリノベーションをお任せいただき、ありがとうございました。初回のご訪問の際、お庭にある立派な枝垂れ桜を拝見した時、「春になったらもっと素敵な雰囲気になるだろうな」と思ったことを今でも覚えています。A様からのご要望に+αとして、ご家族皆様が思い思いにくつろげるリラックス空間・シンボルツリーである枝垂れ桜を楽しめる空間を目指し、プランを作成いたしました。施工の際は、ハウスメーカーの建物ということもあり工事が難しい場所がございましたが、長年リフォームに携わってきた熟練の職人がしっかりと施工をしてくださいました。お打ち合わせ時のイメージ以上のクオリティで完成したのは、職人の技術力、そしてチームワークの賜物だと感じています。先日お伺いした際には、皆様が快適に過ごしてくださっていること、そしてご家族様の人生の節目を祝う場所となったお話しをお聞きし、胸が温かく幸せな気持ちになり、とても嬉しかったです。お住まいのことでお困りのことがございましたら、いつでもご連絡くださいませ。今後ともよろしくお願いいたします。
プランナー川崎