一級建築士事務所エンラージ|八王子市・日野市を拠点に価値のあるリノベーション&リフォームをご提案いたします
中古マンションデザインリノベーション
| お名前 | T 様 | 費用 | 約1300万円 |
|---|---|---|---|
| 工事内容 | マンション フルリノベーション | ご住所 | 八王子市 |
| 工期 | 約2.5ヵ月 | 間取り | 1LDK+W.I.C |
T様はスーモカウンターからのご紹介で、中古購入したマンションを自分好みにリノベーションして住み替えたいとご希望でした。お問い合わせの直後に開催した当社主催のイベント「八王子市民リフォーム祭」にもご来場いただき、会社の雰囲気や担当者の人柄を気に入っていただくことができました。
他社では難しいとされたご要望や、お好みのデザインを反映したプランと施工実績を評価していただいて「この会社なら安心できそう」と納得して当社をお選びくださいました。中古購入後のリノベーションなのでなるべく早くお引越しができるように、現地調査からお見積もりのご提出⇒ご契約、工事の申請⇒着工と、当社自慢のスピード感を持って対応をさせていただきました。仕様選びのお打ち合わせは女子会のような雰囲気でとても楽しく、T様にお会いできるのが毎回楽しみで、担当者にとっても思い入れのあるリノベーションになりました。
デザインパース
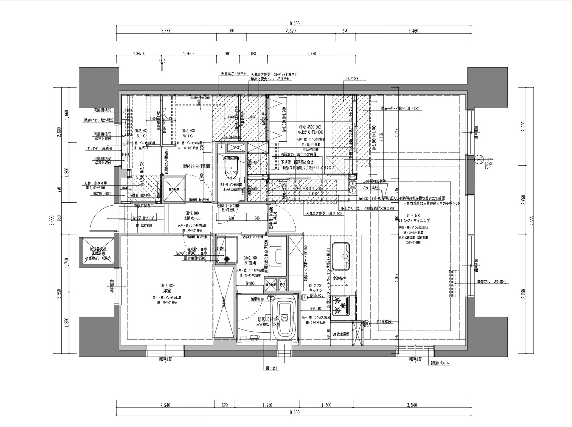
間取り図
家事の時短効率を考えた設備の提案
キッチンの前面壁を取り払い、オープンにすることでリビングダイニングからアクセスしやすく、明るい印象に。トリプルワイドIHやタッチレス水栓、お手入れのしやすいシンク、レンジフードを採用し、使い勝手よく家事効率を上げるキッチンが完成。お風呂やトイレ、その他水廻り設備もお手入れのしやすいものを選びました。
お施主様好みの“落ち着きのあるかっこいい”空間デザイン
落ち着いた雰囲気がお好みのT様に合わせてかっこいいシャープなお部屋になるようプランしました。また、かっこいいだけでなく「くつろげる空間」になるように配慮して、シャープな印象のキッチンに、暗くなりすぎない大人ダークな色味の床材などを合わせてバランス良く仕上げています。
ゲストルームにもなる小上がりスペース
元々和室だったスペースを小上がりスペースに造り替えました。LDKの空間から浮かないよう、畳はモカ色をセレクト。扉を閉めて空間を仕切ることも出来るのでゲストルームにもぴったりです。クローゼットや引き出しを設置し、収納スペースも確保しました。
既存床暖房の再利用
他社で難しいとされている既存の床暖房を再利用したフローリングの貼り替え。当社では多くの施工実績があり、腕の良い大工さんが施工するので安心してお任せいただけます。
暮らしや生活動線を考慮したプラン・大容量の収納スペース
間取りを変更して、ウォークインクローゼット、シューズインクローゼットを新設。玄関まわりに収納スペースをまとめ、効率よく身支度が出来るように設計しました。
各お部屋にも収納場所を設け、無駄なくすっきりとモノが片付くようにプランしています。
施工前
担当者より
関連施工事例
-
“木・水・石”をテーマにデザインしたこだわりのセカンドハウスリノベーション
稲城市 A様 費用:約2060万円
A様はスーモカウンターよりお問い合わせいただきました。セカン…

-
ジャパンディなマンションフルリノベーション
八王子市 A様 費用:約1300万円
A様は当社のInstagramをご覧になり、当社主催の「八王…

-
ハウスメーカー築 軽量鉄骨造の中古戸建てをフルリノベーション!
八王子市 N様 費用:約1880万円
N様は以前ご自宅のリフォーム工事をお任せいただいたお客様です…

-
中古マンションを購入して自分好みにデザインリノベーション
八王子市 O様 費用:約1130万円
O様は中古購入したマンションの間取り変更を伴う全面的なリノベ…


























































T様、この度は数あるリフォーム会社の中から当社に工事をお任せいただき、誠にありがとうございました。T様にとって初めての大きなリフォーム・リノベーションで、ご不安なお気持ちがあったかと思います。しかし、一生に一度あるか否かの大きな工事なので、是非楽しんでいただきたい!居心地の良い新居にしたい!と思い、設計担当の宇津木とともにT様に喜んでいただけるプランを考え、ご提案しました。
工事の際は、その気持ちをそのまま施工管理の鴨志田や職方に伝え、チーム一丸となってT様のために取り組んでまいりました。
工事が終わりお引渡しの際には「みなさんと一緒に打ち合わせで決めてきたことが、想像していたよりもずっと素敵なカタチになって感動した。」と仰っていただけて、とても嬉しかったです。
エンラージでは様々なイベントを開催しておりますので、また機会がありましたら楽しい雰囲気を感じに遊びにいらしてくださいね。
今後ともよろしくお願いいたします。 プランナー 川崎瑞季