一級建築士事務所エンラージ|八王子市・日野市を拠点に価値のあるリノベーション&リフォームをご提案いたします
ライフスタイルに合わせたこだわりの二世帯全面リノベーション
| お名前 | O 様 | 費用 | 約2780万円 |
|---|---|---|---|
| 工事内容 | 全面リフォーム | ご住所 | 八王子市 |
| 工期 | 約4ヵ月半 | 間取り | 3LDK+3LDK |
北野支店のお近くのO様邸。元々1階に息子様ご夫婦・2階にご両親がお住まいの二世帯住宅でしたが「どちらの生活スタイルにもマッチしていなくて住みづらいのでリノベーションをして居住階を入れ替えたい」とご相談をいただきました。
1階は大幅な間取り変更をせず、既存の間取り・造作等を活かしながら生活の質向上に重点をおき、2階は息子様ご夫婦に加え、将来増えるかもしれないご家族との生活もイメージしながら大幅に間取りを変更。
支店から近いこともあって密にコンタクトを取りながらお互いに信頼感をもって工事を進めていくことができ、完成後は大変満足とのご感想をいただきました。
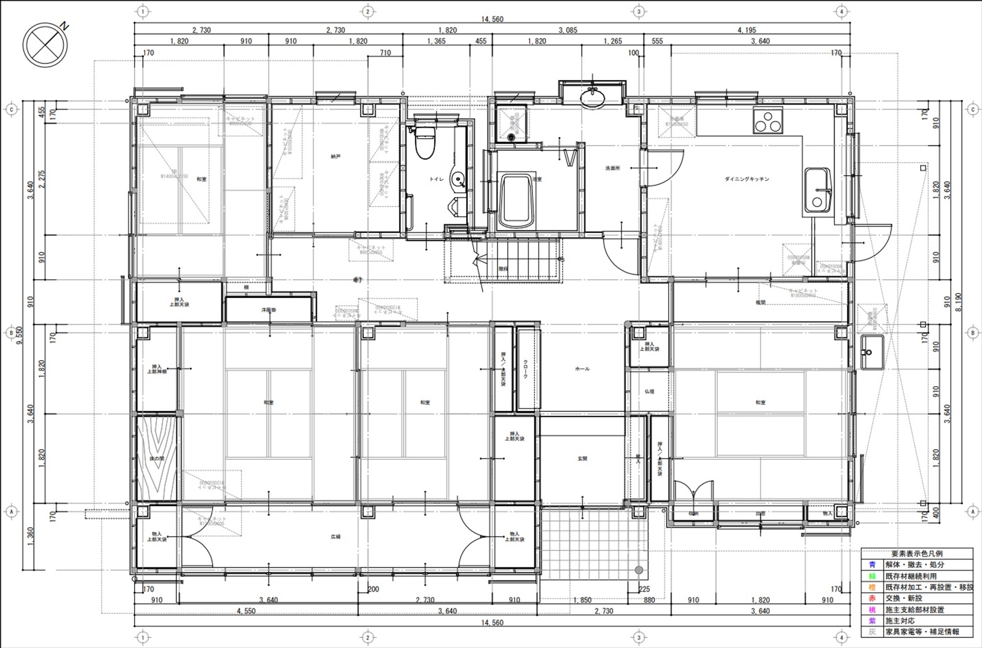
デザインパース
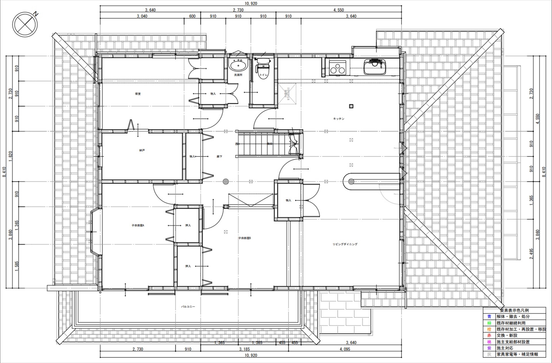
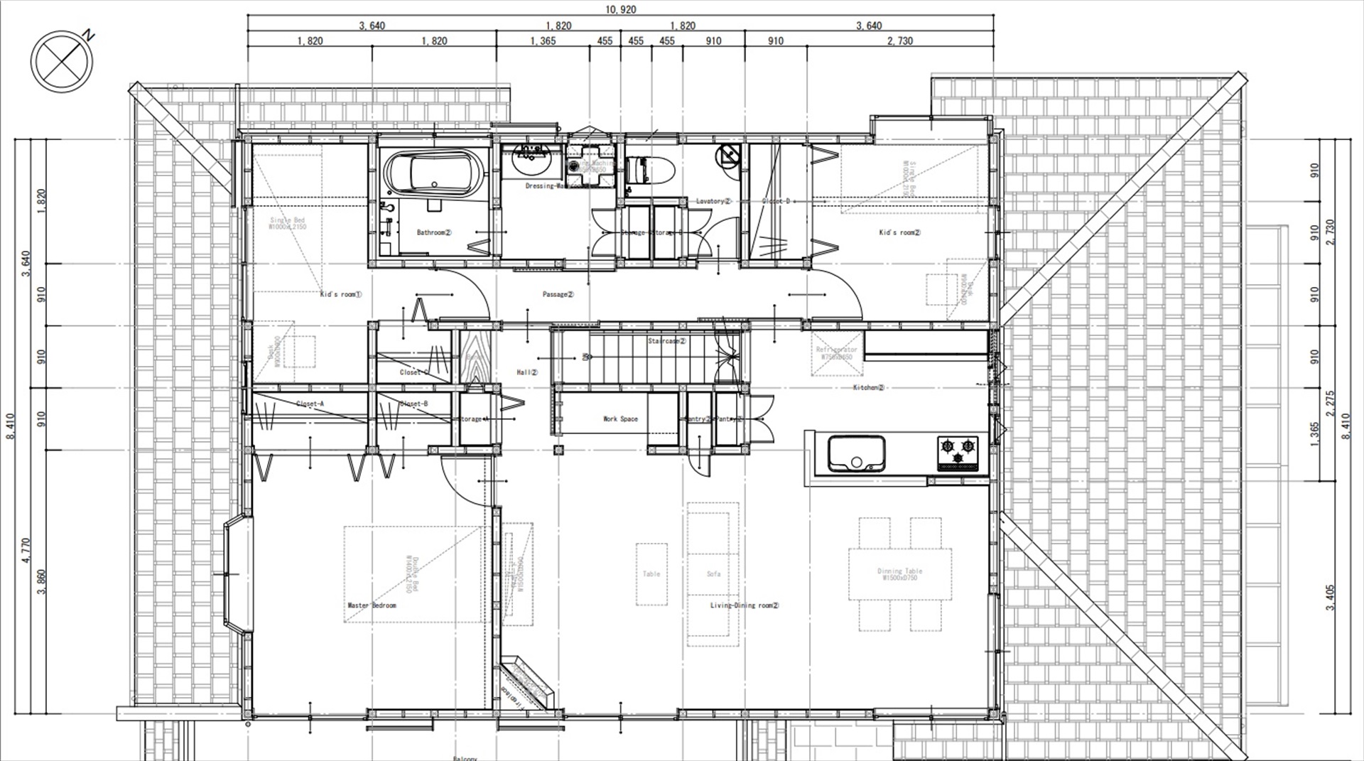
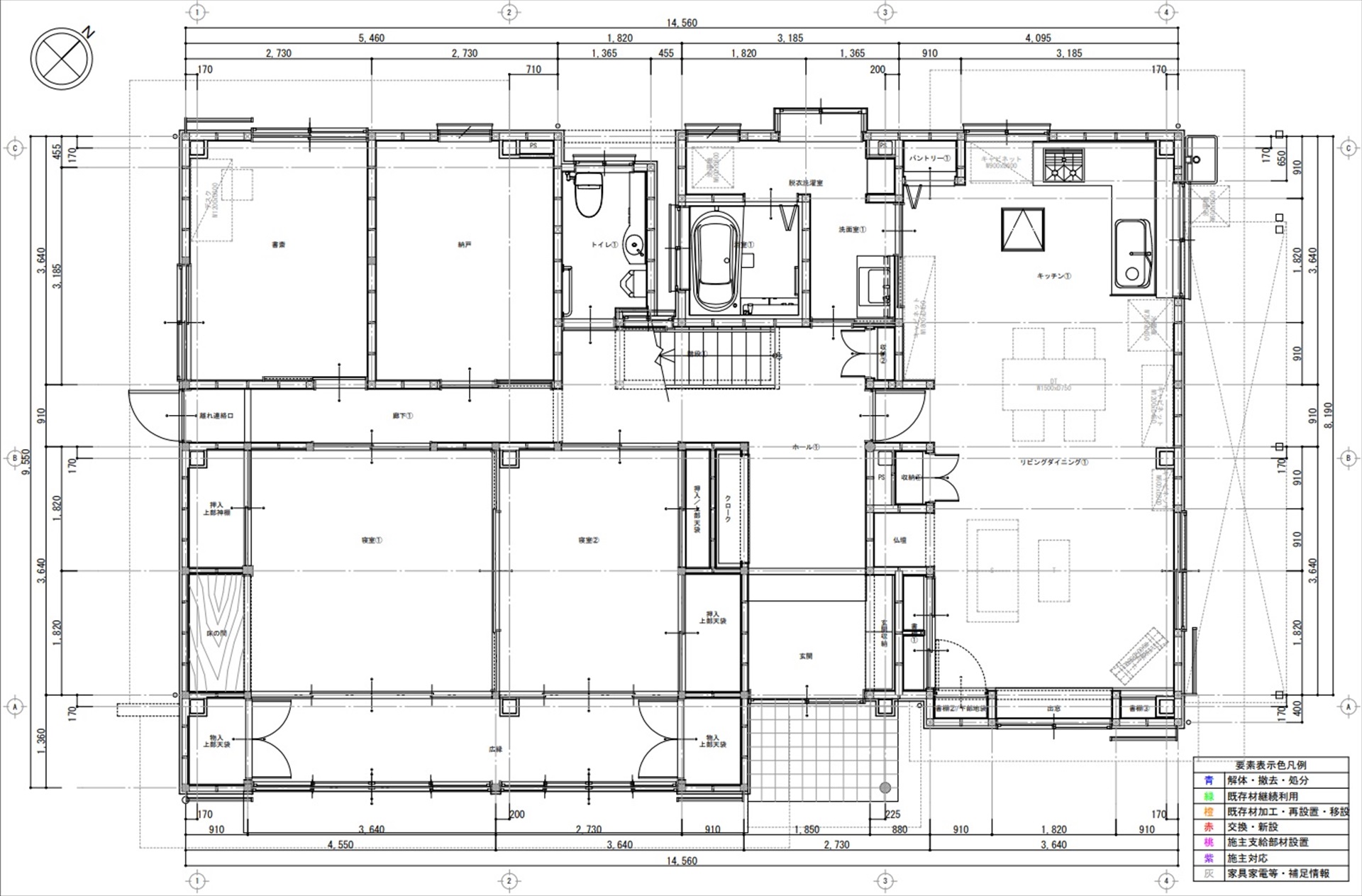
間取り図
家事動線に配慮した間取り変更
2階のキッチンは壁付けの配置でしたが、間取り変更をして対面化。さらに、キッチンを起点としてほぼ全ての部屋にアクセスできる回遊動線を確保し、家事効率がUPする間取り。
こだわりのサニタリールーム
洗面室、トイレは収納を含めた効率的なレイアウトをご提案。内装は奥様がアメリカからご自身で輸入したクロスや金物などお気に入りの内装材を使用してお気に入りの空間が完成。
みんなが集まるLDK
元々1階にはリビングスペースがありませんでしたが、ダイニングキッチンと隣の和室を仕切っていた間仕切り壁と建具を取り払い、LDKとして一体化。大きなダイニングテーブルを置けるスペースを確保し、家族全員で食事が楽しめます。
自然素材を採用したやさしい内装
1階の玄関ホール・書斎・洗面室の壁は自然素材のスイスしっくい『カルクウォール』を塗り、寝室の床には天然木のツキ板フローリングを採用して、快適性をプラス。
施工前
担当者より
関連施工事例
-
二世帯住宅の1階をフルリノベーション
日野市 N様 費用:約1960万円
N様は当社のホームページをご覧になり、お問い合わせくださいま…

-
自然光を採りこんだ明るい住まいへとフルリノベーション
八王子市 N様 費用:約2460万円
N様は弊社ホームページをご覧になり、お問い合わせくださいまし…

-
古き良き時代の面影を遺す、古民家風デザインリノベーション
昭島市 K様 費用:約1960万円
築60年ほどのK様邸。奥様のご実家で経年による老朽化が進んで…

-
劇的に変わるフルリノベーション!耐震強度と断熱性も飛躍的に向上!
八王子市 I様 費用:約2180万円
I様はSUUMOリフォームを通じてお問い合わせいただいたお客…






























































O様
この度は大きなリフォームをお任せいただき、誠にありがとうございました。
O様の御宅は少し特殊な構造であった事、また以前に比較的大掛かりなリフォームをされていたこともあって、想定よりもやや難しい工事ではありました。
しかし今まで私と共に何件もの難しい施工に携わり、お客様から高い評価をいただいてきた職工みんなの力を結集すれば、問題なく工事を完遂できると確信していました。
計画当初より大きなご信頼を寄せていただき、O様ご夫妻を実の兄・姉のように、またご子息のみなさんを本当の甥っ子・姪っ子のように想いながら、設計や施工に携わってきました。その結果、O様に満足していただけたこと、心より嬉しく思うとともに、ホッとしております。
これからもO様ご家族と新しく生まれ変わった御宅を見守らせていただきながら、お付き合いをさせていただければと存じます。
設計・施工管理 荻田義之