一級建築士事務所エンラージ|八王子市・日野市を拠点に価値のあるリノベーション&リフォームをご提案いたします
構造変更を最小限に抑えた大胆リノベーション!<Part3>
最終更新日:2022/12/23 公開日:2022/12/12
エンラージスタッフブログをご覧のみなさまこんにちは。
今回も11月初めより工事を開始した、大型住宅の二世帯化リノベーション・プロジェクトを紹介してゆきます。
<2階リビングダイニング 完成予想3DCGパース>
前回の記事はこちら。
前回は、「構造変更を必要最小限に抑え」ながら、「大幅な間取変更」を実現するために、既存の「構造柱」を極力残し、それをうまく取り込みながら「大幅な間取変更」を実現した平面計画を紹介しました。
今回はその平面計画の中にとり残された難敵「構造的に重要な独立3本柱」をどのように解決してゆくのかについて紹介します。
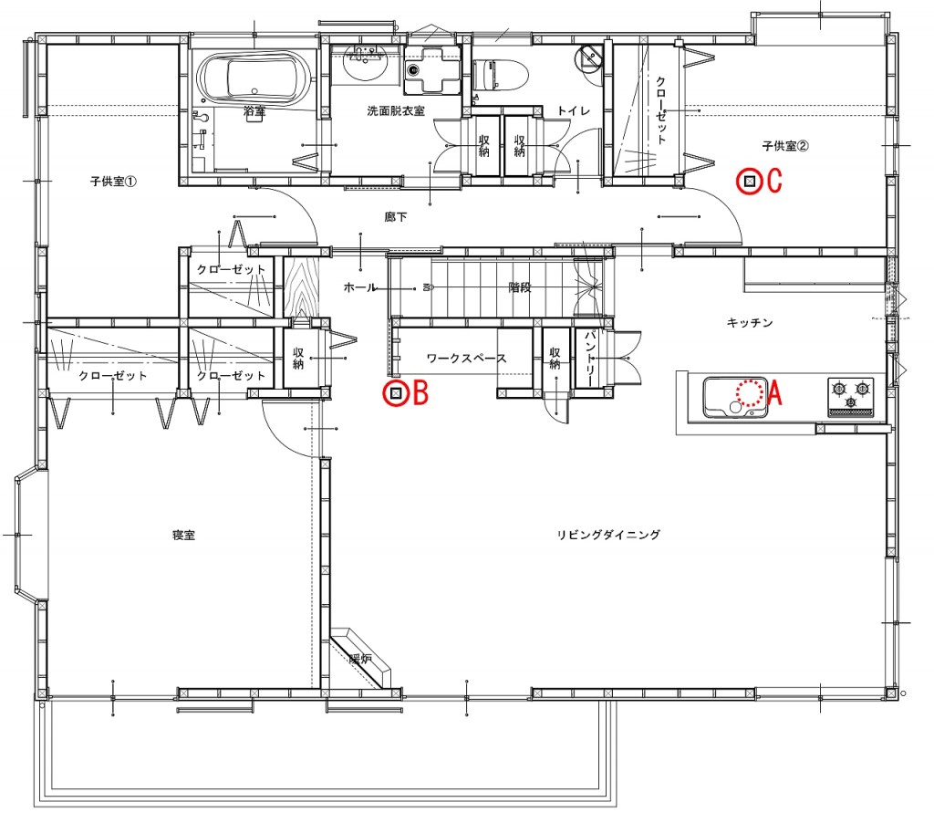
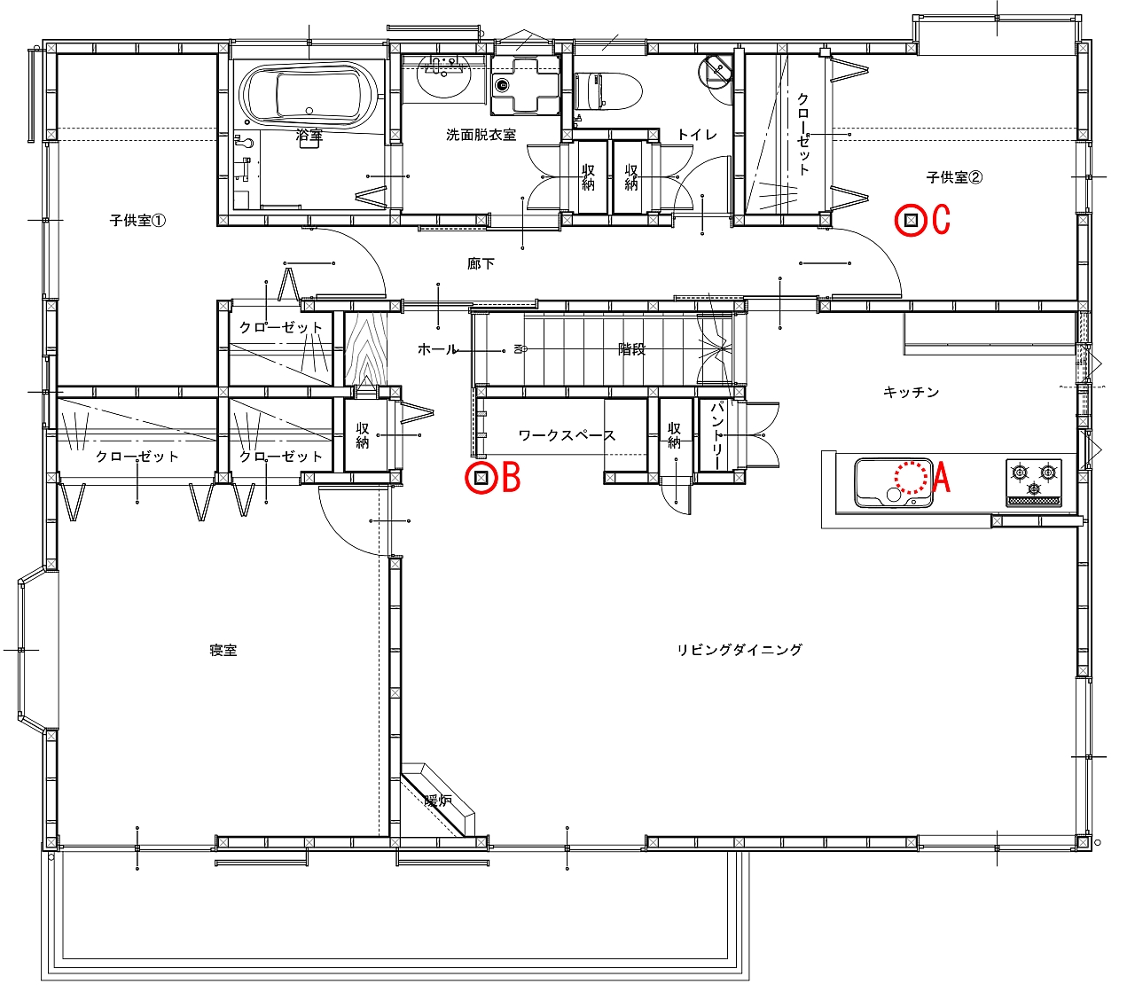
改めてプランを再掲します。
<既存平面図>
<改修平面図>
前回のリフォームで撤去できなかった3本の「構造的に重要な柱」に対して、設計時には下記の方針を立てました。
元リビングの丸柱=新キッチンの柱:A
間取の要になっているので、多少手間がかかっても、上部に架かる梁を補強して柱を抜く。
元廊下の丸柱=新ワークスペース横の柱:B
リビングエリアやホールからの動線と、ワークスペースを緩やかに区切る意味を持たせて柱を残す。
元キッチン=新子供室②の柱:C
前回改修時、この柱の周辺で大幅な変更(柱抜き・梁補強)を施していることは明白だが、実際の補強方法が不明。
したがって今回の工事に着手・解体した結果、比較的軽微な補強で柱を撤去できるようであれば抜く。
そして着工・解体に着手し、撤去する柱付近の壁や天井を剥がしたところ、前回改修時に新設された柱の大半は、私の読み通り元々の構造との関連性が薄い「造作柱」でしたので、予定通り苦も無く撤去できました。
しかし懸案の「3本柱」のうち、キッチンとリビングの真ん中に立つ柱については、やはり予想通り、と言うか予想を覆させられる補強方法が施されていました。
では実際の工事の様子を見ながら状況を説明しましょう。
<元リビングの丸柱:A>
丸柱に見えていた化粧造作材を剥がし、天井を開口したところ、ちょっと特殊な方法で補強がされていました。
奥に見える「元リビングの丸柱」の手前に柱を切り取った残りが見えています。
前回改修時、奥の「元リビングの丸柱」と手前の柱を、「枠組壁工法(2×4工法)」で使用する「2×10材」で両側から挟み込み、その2本の柱で屋根荷重を受けられるようにした上で、その中間にある柱を切断しています。
ところでこの建物は「在来木造工法」で建てられた建物です。
したがって「柱抜き」や「梁補強」をする場合には、一般的には「在来木造」用の「集成材梁」を使用することが多いのですが、前回改修時の施工会社は「枠組壁工法(2×4工法)」を得意とする会社だったようで、この補強方法を採ったようです。
この補強方法が判明した際、予定していた「集成材梁」での補強がかなりやりにくくなることから、私はちょっと頭を抱えました。
しかし現場担当大工とじっくり検討した結果、この「2×10材」の1枚を剥がし、その側面から「集成材梁」を縫い付けることで強度が十分に確保できる見当がつきました。
<元キッチンの柱:C>
写真奥の元のキッチンの真ん中=改修プランの子供室②の一角に立つ柱も、「リビングの元丸柱」周辺同様の補強方法でした。
「元キッチンの柱」と「元リビングの丸柱」を両側から「2×10材」で挟み、その間にある新築時の柱3本を切断しています。
この部分についても、軽微とは言えないまでも「元リビングの丸柱」上部の梁補強と同様の補強によって撤去できる見通しが立ったため、撤去を実施することに。
「構造変更を必要最小限に抑え」ながら、「大幅な間取変更」を実現する手法、また特に前回改修時に「取り残された3本柱」をいかに解決していくかについて、少し難しい話ではありましたがご理解いただけましたでしょうか。
今回はここで区切り、次回は実際の施工状況・結果を紹介します。
次回の記事はこちら。
ではまた近日中に。
「不可能を可能にする」リフォーム・アーキテクト
北野支店 店長:一級建築士 荻田 義之














