一級建築士事務所エンラージ|八王子市・日野市を拠点に価値のあるリノベーション&リフォームをご提案いたします
構造変更を最小限に抑えた大胆リノベーション!<Part2>
最終更新日:2022/12/12 公開日:2022/11/28
エンラージスタッフブログをご覧のみなさまこんにちは。
今回も11月初めより工事を開始した、大型住宅の二世帯化リノベーション・プロジェクトを紹介してゆきます。
<2階リビングダイニング 完成予想3DCGパース>
前回の記事はこちら。
前回は、「大幅な間取変更」をするにも関わらず、「構造変更を最小限に抑える」理由、すなわち「改修費をできるだけ抑える」ことについて紹介しました。
今回はそれをどのように実現していくかを紹介します。
「改修費をできるだけ抑える」ことによるメリットはもちろん大きいものですが、言葉では簡単に言えても、それを実現することはそう簡単ではありません。
また今回のリノベーションでは、以前に施された改修時には解決できなかった問題や、今回の改修を難しくする要素がいくつか残されていました。
この御宅のお客さまにリノベーションプランを提案するにあたり、これらの難しい問題を解決した、優れたプランを考える必要がありました。
そこで設計者である私は考えました。
「構造変更を必要最小限に抑え」ながら、「大幅な間取変更」を実現するために、
①新築時および前回改修時の設計図を元に、現時点で存在している柱の中で、「構造的に重要な柱」「既存構造状況によっては撤去可能な柱」を見分けること。
②「構造的に重要な柱」は極力残し、それをうまく取り込みながら新しい間取りを構成すること。
③「既存構造状況によっては撤去可能な柱」は構造補強を実施せず撤去すること。
このような方針を立て、新築時~前回改修時→今回改修に向け、柱の重要性を分析してみました。
その結果が下記の図です。
(わかりやすくするため、柱の大きさを強調して描いています。)
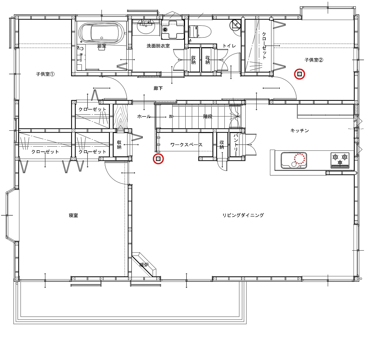
新築時は上図のような柱配置・間取りでした。
これらのうち「青い柱」は、その後の改修時に抜くことになる柱です。
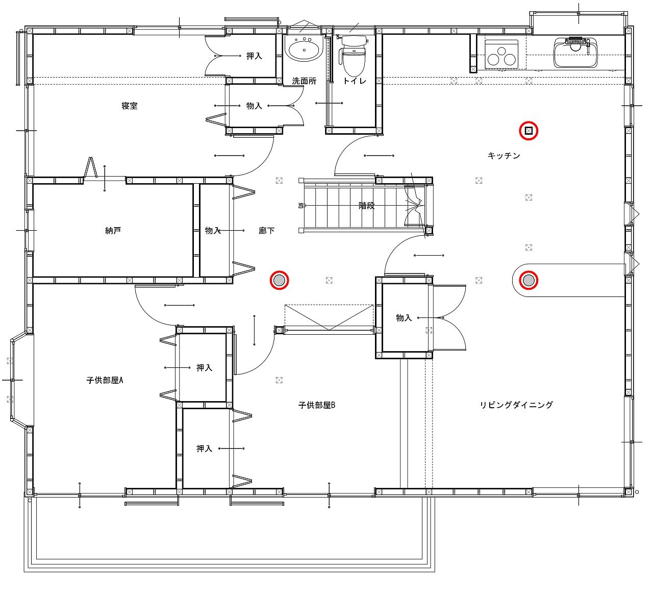
前回改修時には、「青い破線の柱」を撤去し、「赤い柱」を新設しています。
特に南側については、新築時には元々比較的広い2部屋しかなかった範囲の中に、「構造柱」は1本しかなく、前回改修時に柱を数多く立て、部屋数や収納の確保のために間取りを細分化しています。
つまり、これら南側の「赤い新設柱」は、「構造上重要な柱」ではなく、元々の構造との関連性が薄い「造作柱」であること、また、仮にこれらの「赤い新設柱」がなくなったとしても、屋根を支える梁架構は新築時のまま残っているはずで、安全性には問題なし、と見抜きました。
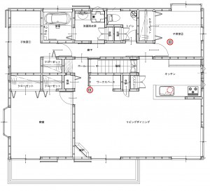
そして下図が今回改修時の柱配置・間取りです。
上図の通り、新築時~前回改修時までに存在した「緑色の柱」を極力残し、それをうまく取り込みながら大幅な間取変更を実現しています。
また前回改修時に追加された、「元々の構造との関連性が薄い造作柱(青い破線の柱)」については躊躇なく撤去しています。
上記の柱の分析の結果、できあがったプランを再掲します。
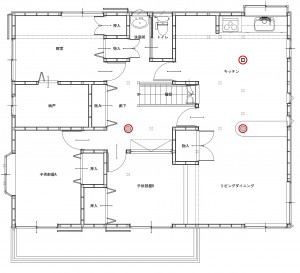
<既存平面図>
<改修平面図>
ただし、赤い丸で囲んだ「3本の柱」は、前回の記事で紹介した通り、前回改修時には「抜きたくても抜けなかった柱」です。
これらの「3本の柱」は、「構造上重要な柱」であることは間違いなく、今回のプランに大きな影響を与えます。
特に改修プラン成立の要となっている「システムキッチンの位置に立つ丸柱」だけは、なにがなんでも抜かなければなりません。
前回改修時の施工会社ができなかった構造上重要な柱を抜く!?
果たしてそんなことはできるのか・・・?
話はまだもう少し続くので、今回はこの辺でいったん区切り、次回は難敵「取り残された3本柱」をどう解決してゆくのかを紹介します。
次回の記事はこちら。
ではまた近日中に。
「不可能を可能にする」リフォーム・アーキテクト
北野支店 店長:一級建築士 荻田 義之














