一級建築士事務所エンラージ|八王子市・日野市を拠点に価値のあるリノベーション&リフォームをご提案いたします
構造変更を最小限に抑えた大胆リノベーション!<Part1>
最終更新日:2023/6/16 公開日:2022/11/22
エンラージスタッフブログをご覧のみなさまこんにちは。
今回は11月初めより工事を開始した、大型住宅の二世帯化リノベーション・プロジェクトを紹介します。
<2階LDK 完成予想3DCGパース>
今回の大規模リノベーションでは、重要なテーマがいくつかあります。
そのうちのひとつが、「構造変更を必要最小限に抑えた大幅な間取変更」です。
なぜ「大幅な間取変更」をするにも関わらず、「構造変更を最小限に抑える」必要があるのでしょうか。
その理由で一番大きいのが、「改修費をできるだけ抑える」こと。
言うまでもなく、リフォーム工事では改修対象が多く・広く・難しくなるほど、改修費がかさみます。
また構造改修には極めて高い知識・技術・経験が必要です。
むやみに費用をケチっていい加減な改修を施してしまうと、元々の構造強度が大幅に低下するおそれもあります。
したがって構造改修が大掛かりになってしまうと、より大きな費用が必要になります。
この構造改修をできるだけコンパクト・効率的にまとめることが、改修費の低減と構造強度の劣化防止への有効な手立てとなります。
今まで私が担当した大規模リノベーションでは、大幅な構造変更を伴うプロジェクトが数多くありました。
しかし今回の工事では、「限られた予算の中で、お客さまの理想にどれだけ近いプランが実現できるか」が、極めて大きなポイントでした。
ではまず2階の平面計画をご覧ください。
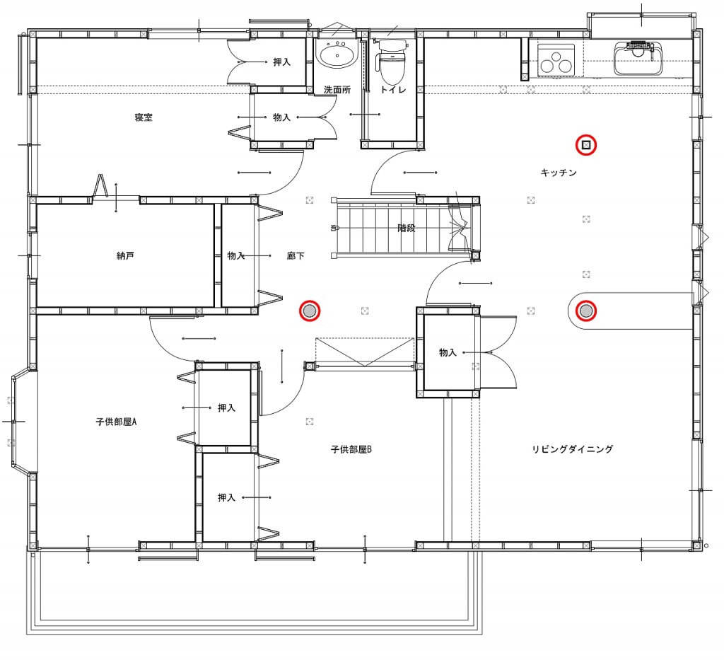
既存平面図
改修平面図
ご覧の通り、大幅な間取変更とともに、水回り設備の配置変更や浴室の新設を実施します。
ところで「構造変更を必要最小限に抑え」ながら、なぜ「大幅な間取変更」が実現できるのでしょうか。
実はこちらの御宅、新築時は上記<既存平面図>の間取りではありませんでした。
約20年前に大規模なリフォームを実施した際、この間取りになっています。
その中で目を引くのが、<既存平面図>でリビングダイニング・キッチン・廊下の真ん中に立つ、赤丸で囲った柱です。
部屋や廊下の真ん中に柱があっては、目障りで邪魔になるのは当然の事。
●リビングダイニングの真ん中に立つ柱(手前の丸柱)とキッチンの真ん中に立つ柱(奥の角柱)
●廊下の真ん中に立つ柱
では前回のリフォーム時、なぜこの3本の柱は残ってしまったのでしょうか。
どうやらこの柱が構造上重要な柱だったようで、当時の施工会社では柱を抜くことができなかったようです・・・。
さて今回のリノベーション・プロジェクトの紹介は、少し話が難しく・長くなりそうなので、今回はここまでとさせていただきます。
工事の進行に伴って数回にわたり、どのようにして「構造変更を必要最小限に抑えた大幅な間取変更」が実現できるのかを紹介して参ります。
次回の記事はこちら。
ではまた近日中に。
「不可能を可能にする」リフォーム・アーキテクト
北野支店 店長:一級建築士 荻田 義之
*=======*========*=======*=======*=======*=======*
【 一級建築士事務所ENLARGE 】
八王子本店:0120-512-355 (中央線西八王子駅より徒歩5分)
北野支店 :0120-186-202 (京王線北野駅より徒歩4分)
日野支店 :0120-186-203 (中央線日野駅より徒歩3分)
お問い合わせフォーム:https://www.enlarge.tokyo/contact
来店予約:https://www.enlarge.tokyo/raiten
資料請求:https://www.enlarge.tokyo/book
*========*========*=======*=======*=======*=======*













