一級建築士事務所エンラージ|八王子市・日野市を拠点に価値のあるリノベーション&リフォームをご提案いたします
構造変更を最小限に抑えた大胆リノベーション!<Part4>(最終回)
公開日:2022/12/23
エンラージスタッフブログをご覧のみなさまこんにちは。
今回も11月初めより工事を開始した、大型住宅の二世帯化リノベーション・プロジェクトを紹介してゆきます。
<2階プラン 完成予想3D俯瞰CG>
前回の記事はこちら。
前回の記事では、前回改修時に「取り残された3本柱」をどのように解決するかについての具体的な方針や手法を紹介しました。
今回はそのうちの最も難しい2本の柱を撤去する様子を、実際の作業状況写真を使って紹介します。
<解体前>
前回改修時に残ってしまった2本の柱。
手前の柱には丸柱に見せる化粧材が巻いてあります。
<解体後>
柱付近の天井と丸柱の化粧材を剥ぎ取った状態。
前回の改修で手前の柱と奥の柱を両側から2×10材で挟み込んで補強。
2×10材の間に挟まっている、途中にあった柱を3本切断した残りが見えます。
ところで手前の柱は新築時から前回改修時を経て、長年この家の屋根を支えてきた、言わば「大黒柱」。
新しく生まれ変わるこの家にその記憶を残すため、抜き取った後は古材として再利用、後に造ることになる造作部材に生まれ変わります。
<柱撤去後>
2本の柱を切断しても天井や屋根が落ちないよう仮の支柱を立て、手前・奥の柱を2本とも撤去したところ。
<既存補強材除去>
手前の柱と奥の柱を挟み込んでいた2×10材の1枚を除去し、在来木造用の「集成梁」を入れる準備をします。
<集成梁取付>
2本取り付ける「集成梁」のうち、1本目の取り付けが終わったところ。
この梁の先端(写真奥)を支えるために、この梁に直行するようにさらに「集成梁」を入れます。
上の写真を反対側から見たところ。
この梁の先端を支えるよう、写真左右に渡る「集成梁」を追加します。
その上部に新築時の「小屋梁」が見えていますが、この梁は細いため、これだけでは屋根の重さを支えきれません。
<集成梁取付>
新築時の細い「小屋梁」を支える「集成梁」を設置。
梁の両端を新築時からある「構造柱」にくくりつけ、金物でしっかり固定しました。
<梁補強完了>
全ての工程が終わった状態。
新しく造るキッチンや部屋の真ん中にあった「2本の柱」はきれいさっぱりなくなりました。
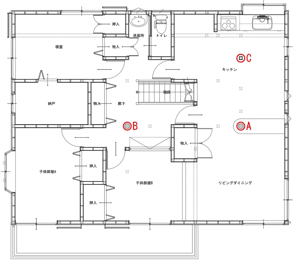
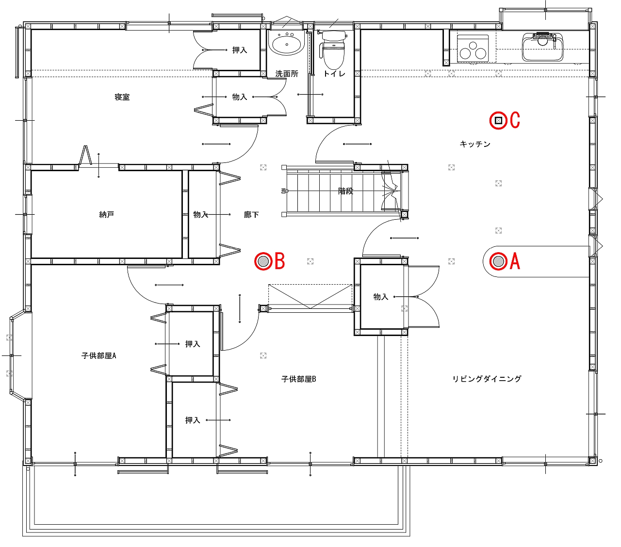
ここで改めて実行可能となったプランを掲げます。
ご覧の通り、「3本柱」のうち1本は巧くプランに取り込み、懸念されていた残りの2本の柱も無事抜き去ることができました。
いかがだったでしょう、4回にわたってお伝えしてきた「構造変更を最小限に抑えた大胆リノベーション!」
少し難しい話で恐縮でしたが、これからリフォームをお考えになる方にとって、もし興味や希望を持っていただけたなら、うれしく思います。
工事は現在も引き続き進行中!
難関だった柱抜き・梁補強を乗り越えた後、実はまた別の大きな難題が立ちはだかりましたが、それもなんとか解決!
来年3月末の完成に向け、折に触れ施工の状況をお伝えできればと考えています。
今回のプロジェクトでは、新築時や前回改修時の事情によって、助けられた部分も、余計に苦労させられた部分もありました。
しかし既存状態の「状況証拠」を的確に把握・分析し、きちんと方針・対策を立てれば、それまで「不可能」と思われていたことが「可能」になることも多いのです。
もちろん、そのためには言うまでもなく充分な知識・技術・経験が必要です。
私たちエンラージスタッフと、お客さまの希望を「実際のカタチ」にしてくれる施工スタッフは、それらを持ち合わせています。
「他のリフォーム会社では『無理!』と言われてしまったこんな希望、やっぱり実現は不可能なのだろうか・・・」
そんなお悩みをお持ちのみなさん、どうぞ諦めることなく、私たちエンラージにご相談ください。
あなたの希望を「最善・最適なカタチ」で必ず実現してみせます!
「不可能を可能にする」リフォーム・アーキテクト
北野支店 店長:一級建築士 荻田 義之





















