一級建築士事務所エンラージ|八王子市・日野市を拠点に価値のあるリノベーション&リフォームをご提案いたします
車いすでもアクセスフリーな優しさ溢れるリノベーション
| お名前 | Y 様 | 費用 | 約1960万円 |
|---|---|---|---|
| 工事内容 | フルリノベーション | ご住所 | 八王子市 |
| 工期 | 3か月半 | 間取り | 3LDK+WIC |
実家に通いながら、ひとり暮らしのお母様の介護をされていたY様。実家をお母様ご自身も住みやすく・介護もしやすいようにリノベーションして一緒に住もうと決意され、「八王子市民リフォーム祭」にご来場下さいました。住み慣れたご実家の風合いを残しつつ、車椅子のお母様が暮らしやすい間取りへと一新。介護をなさるご夫婦も、お母様も、快適に暮らせる住まいに生まれ変わりました。
デザインパース
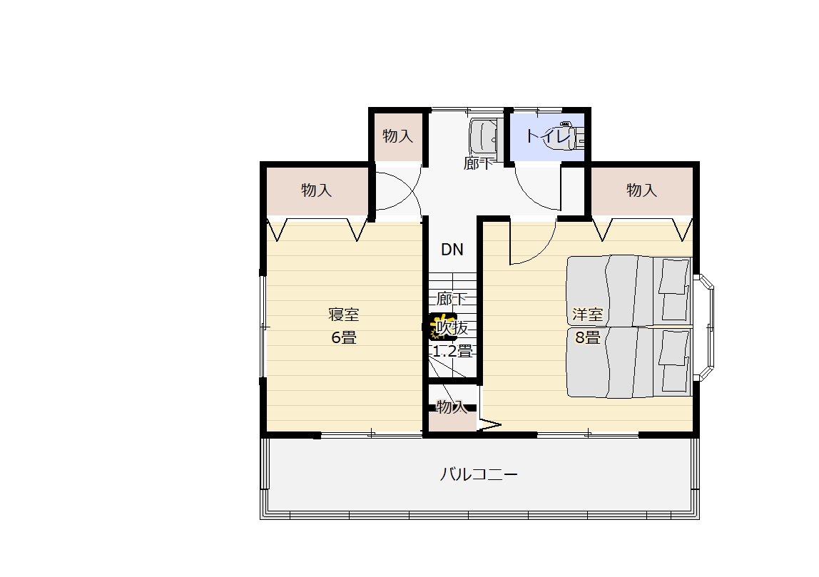
間取り図
ゆとりのあるリビング
車いすのお母さんが一人でも動き回りやすい、ゆとりのあるリビング。もともと和室だった位置にキッチンを移動させ、広々としたリビングを実現しました。
安全・安心の間取り
キッチンで作業をしながら、リビングもお母様のお部屋も見渡せるように各室を配置。キッチンの袖壁には開口を設け、お母様のお部屋が見やすくなるように工夫しました。
和室の雰囲気は残しつつ使いやすい洋室に変更
お母様のお部屋には専用のトイレを新設。収納は、使いやすい高さに合わせて棚の位置などを調整。元の和室の印象を残すため、床柱を既存のまま活かしています。
調理家電もたくさん置ける大きなキッチン
お料理が大好きな奥様のためにキッチンはスペースを広めに確保。カップボードも調理家電などがたくさん置けるタイプを採用しています。
施工前
担当者より
関連施工事例
-
自然光を採りこんだ明るい住まいへとフルリノベーション
八王子市 N様 費用:約2460万円
N様は弊社ホームページをご覧になり、お問い合わせくださいまし…

-
古き良き時代の面影を遺す、古民家風デザインリノベーション
昭島市 K様 費用:約1960万円
築60年ほどのK様邸。奥様のご実家で経年による老朽化が進んで…

-
劇的に変わるフルリノベーション!耐震強度と断熱性も飛躍的に向上!
八王子市 I様 費用:約2180万円
I様はSUUMOリフォームを通じてお問い合わせいただいたお客…

-
実家の二階を“ときめき”を感じる素材でリノベーション!
日野市 K様 費用:約1200万円
ご主人のご実家に移り住むことをきっかけにリフォームを計画され…






























































初めてお会いした時に、車いすのお母さんが自由に動き回れるようにしたいというお話しをされていていたので、とても心優しい奥様の力になりたいと強く思いました。慣れ親しんだお家の印象がガラッと変わってしまわないようお母様のお部屋のイメージは変えず、他の場所は使いやすいよう機能性を重視したプランをご提案させていただきました。プラン提出の際には「ご提案いただいた形で進めたい。」と、そのままのプランでお任せいただきましたね。設計をした鴨志田も自慢のプランを気に入っていただけて喜んでいました。キッチンの仕様を選んでいる時の奥様はとてもキラキラした目で楽しんでいて、私もとても楽しい時間を過ごさせていただきました。工事が終わった際には「エンラージさんにお願いして本当に良かった。」と仰っていただき嬉しかったです。今後もよろしくお願いいたします。 プランナー 森松