一級建築士事務所エンラージ|八王子市・日野市を拠点に価値のあるリノベーション&リフォームをご提案いたします
ハウスメーカー築 鉄骨造・3階建てのご実家をナチュラルにリノベーション!
| お名前 | K 様 | 費用 | 約1820万円 |
|---|---|---|---|
| 工事内容 | フルリノベーション | ご住所 | 立川市 |
| 工期 | 約4ヶ月 | 間取り | 5LDK |
お爺様がハウスメーカーで建てられた、重量鉄骨造3階建てのお家を引き継いだK様。お子さんの幼稚園入園を前に「余裕をもってリフォームして住みたい。」とリノベーションを決意されました。重量鉄骨造の建物のため、建築したハウスメーカーへのリフォームの依頼も考えましたが「費用が高額になる上に設計の自由度があまりなさそうだった。」とエンラージへ。「希望に一番近い形で自由度の高いリフォームができそう!」と当社にお任せいただきました。在宅ワーク中のご主人様は「より仕事がはかどる書斎」を、奥様は「まだ小さいお子さんを十分にケアしながら、効率的に家事とデスクワークを両立できるキッチン廻りの空間」を、ご夫婦それぞれのこだわりたいポイントを大切にしながら、快適に暮らせる住まいを実現しました。
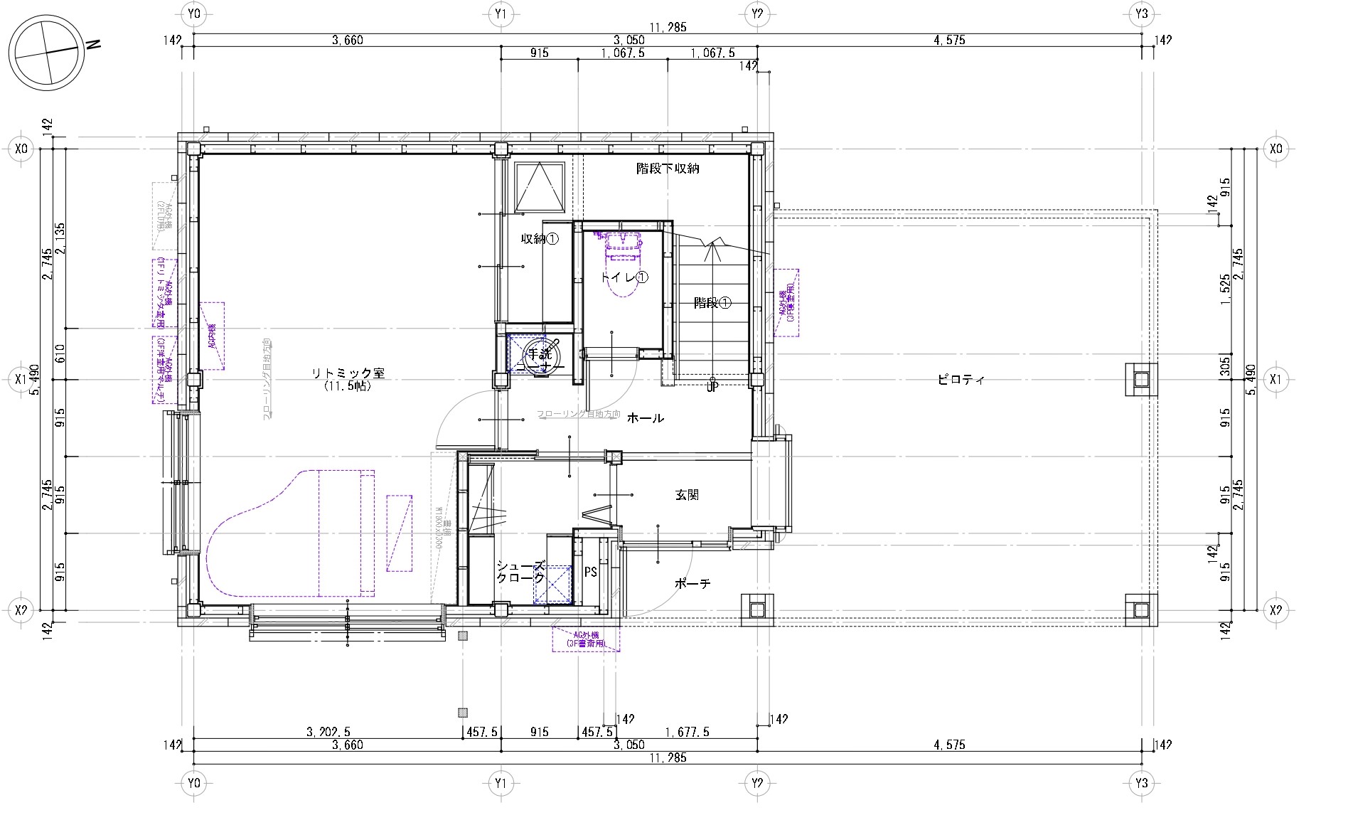
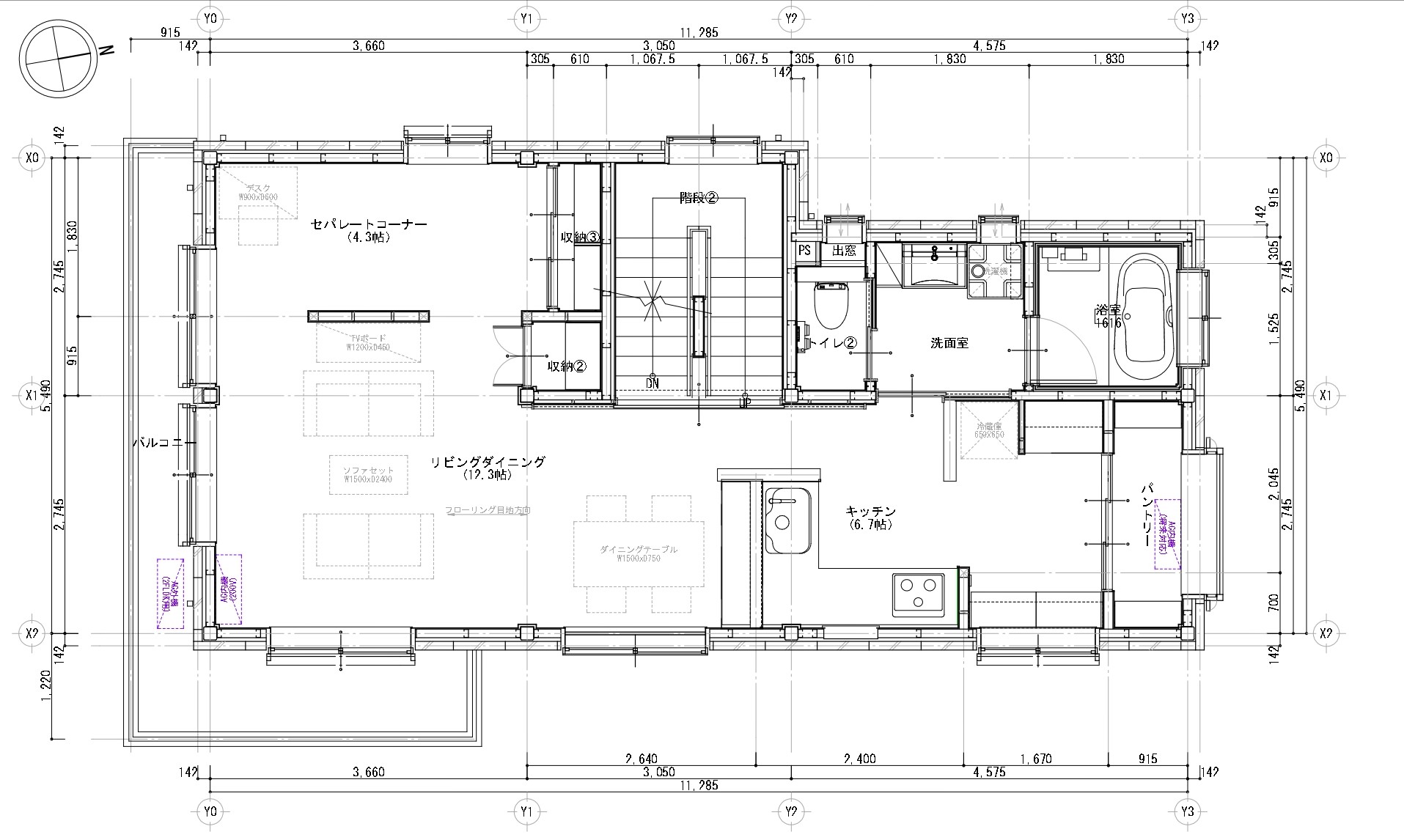
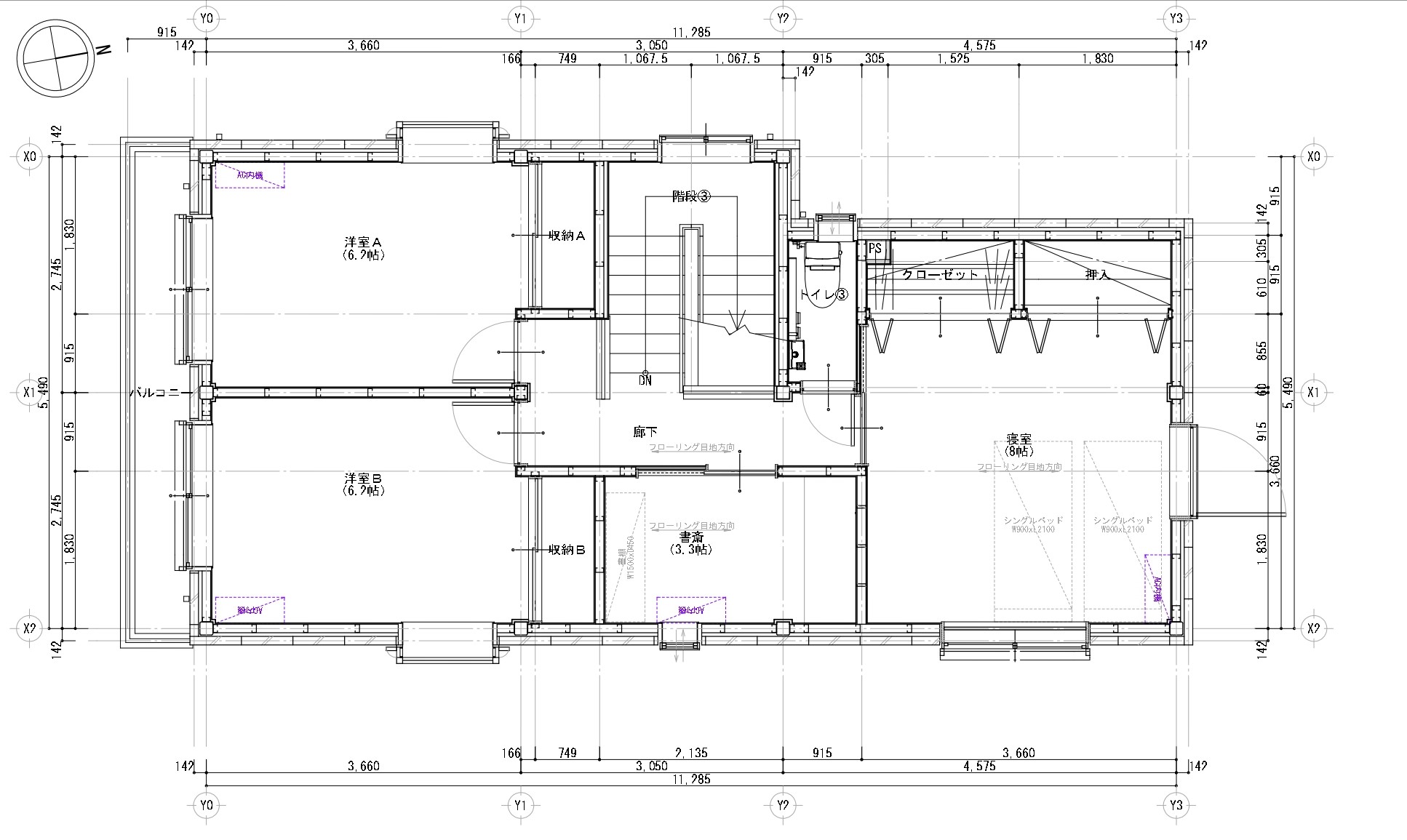
間取り図
リビングをTV置き壁で柔らかく目隠し。裏側は家事、キッズスペースとして。
広々としたリビング中央の一部に壁を設けてテレビを置く場所を確保。リビング全体が一体空間でありながら、壁の裏側はプライバシーも守られるよう配慮されています。
高めに設定、Tの字型のキッチンカウンター。
キッチンカウンターの高さをを少し高めに設定。ダイニング側の作り付け収納との間にスペースを確保し、ティッシュや携帯電話など日頃身近に置いておきたい小物の指定席として。
タイル貼りのキッチン、スパイスニッチ。
キッチンの正面の壁はタイルで仕上げ、調理中に手を伸ばしやすい位置には、ニッチを設けてスパイスラックとして便利に使えます。タイルのデザインや質感・目地の色まで大切に素材選びをして、おしゃれ感と清潔感が際立つキッチンに。
施工前
担当者より
関連施工事例
-
自然光を採りこんだ明るい住まいへとフルリノベーション
八王子市 N様 費用:約2460万円
N様は弊社ホームページをご覧になり、お問い合わせくださいまし…

-
古き良き時代の面影を遺す、古民家風デザインリノベーション
昭島市 K様 費用:約1960万円
築60年ほどのK様邸。奥様のご実家で経年による老朽化が進んで…

-
劇的に変わるフルリノベーション!耐震強度と断熱性も飛躍的に向上!
八王子市 I様 費用:約2180万円
I様はSUUMOリフォームを通じてお問い合わせいただいたお客…

-
実家の二階を“ときめき”を感じる素材でリノベーション!
日野市 K様 費用:約1200万円
ご主人のご実家に移り住むことをきっかけにリフォームを計画され…





















































1・2階のインテリアイメージはナチュラルモダンで、家に着くと思わずホッとする優しいお色味を奥様と一緒に選ばせていただき、3階のご主人様のワークスペースは落ち着いたシックな色合いで、お仕事に集中できる環境づくりを心掛けご提案させていただきました。リノベーション完成後には「とても満足のいく仕上がりになりました。」とのお言葉をいただき、建物を建築したハウスメーカーではなく当社でのリフォームということに対して初めは懐疑的な印象をお持ちであったお父様が完成後にユニークなプランを褒めて下さったこともとても嬉しかったです。そして、初めてのお打ち合わせから、完成・ご入居までの間、会うたびにみるみる成長していく息子さんの姿に驚くとともに、家づくりを進めながらお子様の成長も感じられることができて幸せな時間でした。生まれ変わった住まいで、ご家族皆様が快適にお過ごしいただけることを祈っております。
日野支店 鈴木・荻田