一級建築士事務所エンラージ|八王子市・日野市を拠点に価値のあるリノベーション&リフォームをご提案いたします
フルリノベーションのメリットを最大活用!暮らしに合う理想の家
| お名前 | T 様 | 費用 | 約1720万円 |
|---|---|---|---|
| 工事内容 | フルリノベーション | ご住所 | 日野市 |
| 工期 | 約4ヵ月 | 間取り | 3LDK |
「妻や子どもたちが楽しく暮らしやすく、家族団欒できるような家にして欲しい。」というご主人様からのご依頼を伺い、ご家族皆様にとっての理想の家になるようご提案。現地調査の際には、いまの住環境ではご家族のライフスタイルや理想の暮らしとマッチしていないと感じたため、これからさらに成長するお子様たちのためにもより良い環境をご提供したい!と強く思い、隅々にまで配慮したプランを考えました。フルリノベーションのメリットを最大限に活かして、閉鎖感を感じていた間取りを「開放的に」・暮らしにくさを感じていた部分をすべて一新して「使いやすく好みの空間に」そして、「今後も快適に安心して暮らせる環境」へとリニューアルしました。
デザインパース
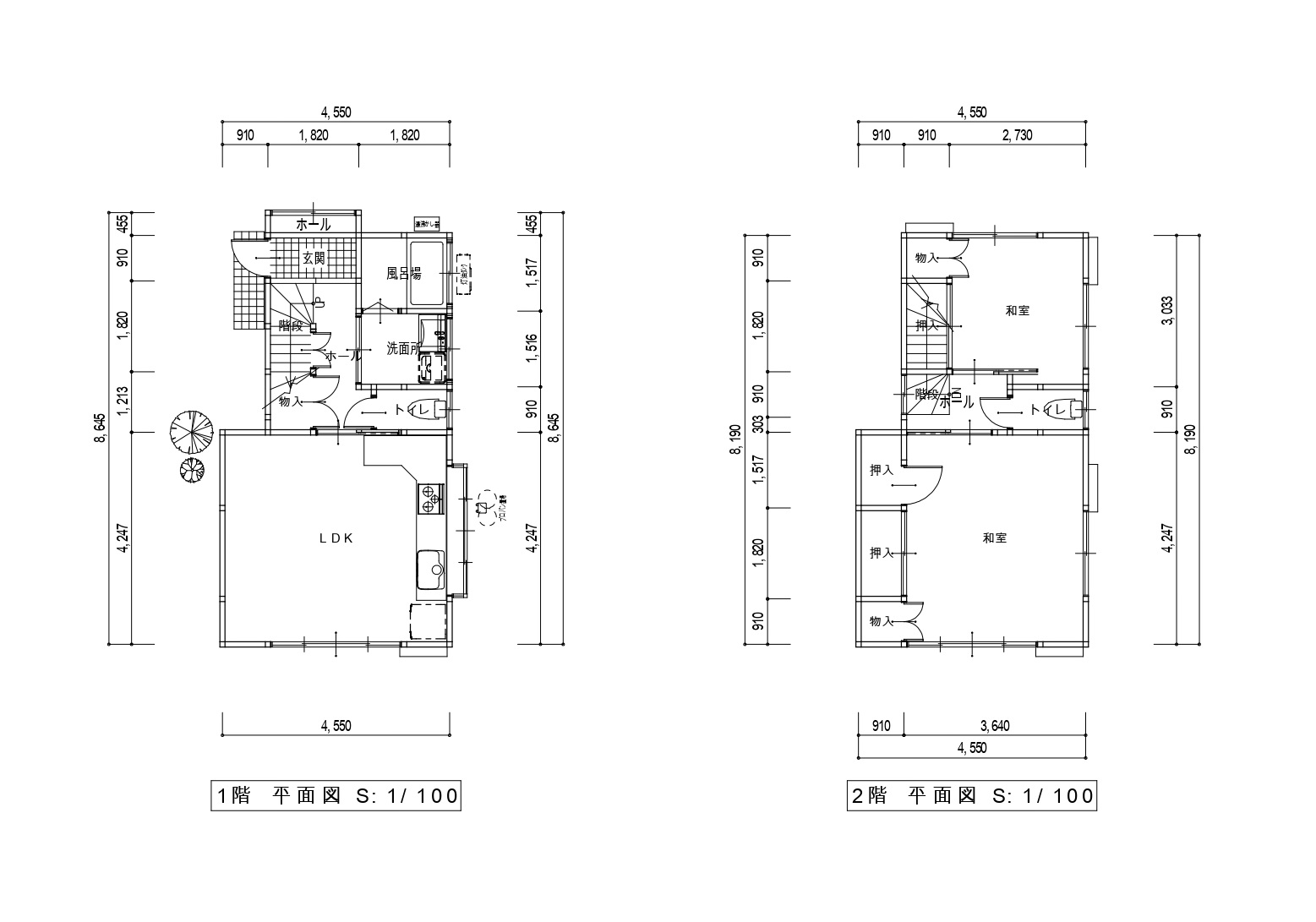
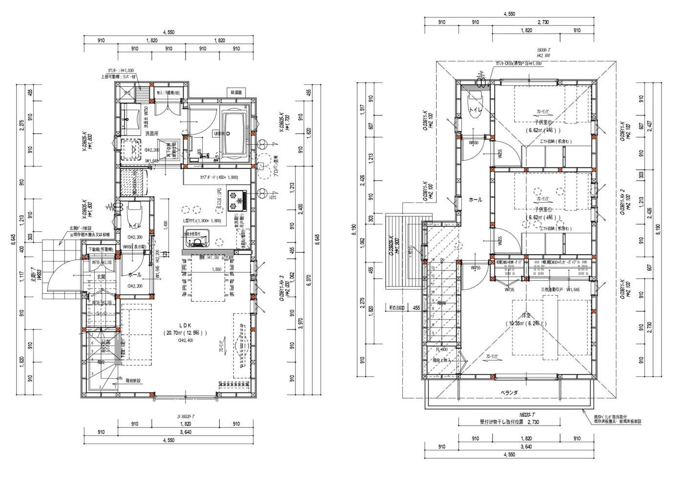
間取り図
大胆な間取変更で「開放感」を実現
玄関の位置から水廻りの配置など、ガラッと間取りを変えることで開放的な住まいに。コの字型のキッチンで、LDの様子を見渡せることでも開放感を味わえます。家族の様子を見ながら家事がしたい奥様のご希望も叶えた対面キッチンです。
それぞれの空間と家事動線の確保
開放的な広々LDKのなかでも、食事をする空間・くつろぐ空間のスペース分けが自然とできるように空間の形状などにも配慮。水廻り設備を一ヵ所に集中させ、家事のしやすい動線も確保しました。
家族と必ず顔を合わせられるリビングイン階段
家族みんなが自然と顔を合わせられるよう、リビングを通って2階へと上がれる位置に階段を配置。急だった階段も架け替えによって安全になりました。階段下のスペースは収納として活かし、空間を無駄なく活用できます。
断熱性能UP&バリアフリーな空間
サッシ交換や断熱材の充填(床下から壁・屋根裏まで)を行ない、断熱性能が格段にUP!LDには床暖房も設置し辛い寒さも軽減。玄関や水廻りの段差も無くしてバリアフリーに。
施工前
担当者より
関連施工事例
-
古き良き時代の面影を遺す、古民家風デザインリノベーション
昭島市 K様 費用:約1960万円
築60年ほどのK様邸。奥様のご実家で経年による老朽化が進んで…

-
劇的に変わるフルリノベーション!耐震強度と断熱性も飛躍的に向上!
八王子市 I様 費用:約2180万円
I様はSUUMOリフォームを通じてお問い合わせいただいたお客…

-
2階建てを平屋にリフォーム!減築で末永く快適に暮らせるお住まいが完成!
八王子市 S様 費用:約2780万円
S様はSUUMOリフォームを通じてお問合せをいただいたお客様…

-
明治時代から受け継がれてきた築120年の古民家再生リノベーション
福生市 M様 費用:約2200万円
地方から東京への転勤をきっかけに、ご祖父母様から引き継いだ古…






























































T様へ
この度はご自宅のフルリノベーション工事をお任せ下さり、ありがとうございました。初めて皆様にお会いした際に、お困りの点や叶えたい事などたくさんお聞きかせ頂き、お子様達のためにも是非皆様のお力になりたいと強く思ったのを、今でも鮮明に思い出します。今回の工事では住まいの問題点を解決するための全面的な間取り変更はもちろんのこと、断熱材の充填や窓交換などの断熱工事も行い、T様にとって暮らしやすくなる空間・家で過ごす時間が好きになる空間となるよう、プランのご提案から工事完了まで精一杯努めさせて頂きました。完成時には「提案通りの、イメージ通りの家に生まれ変わりました」と仰って頂くことができ、大変嬉しく思います。新しくなったお住まいで、皆様の思い出をたくさん増やしていってくださいね。皆様が健康で笑顔が絶えない日々を過ごせますよう、心から願っております。 プランナー 川崎