一級建築士事務所エンラージ|八王子市・日野市を拠点に価値のあるリノベーション&リフォームをご提案いたします
受け継いだご実家をお好みのデザインにリノベーション!
| お名前 | K 様 | 費用 | 約1500万円 |
|---|---|---|---|
| 工事内容 | 戸建て全面リフォーム・外構工事 | ご住所 | 八王子市 |
| 工期 | 4ヶ月 | 間取り | 4LDK+N |
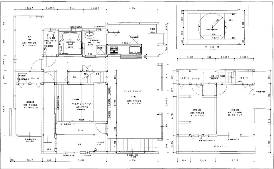
K様は受け継いだご実家にご家族で移り住む事になり「家族みんなで和気藹々と暮らせるお家にしたい」というご依頼でした。リフォーム前のご実家は、ご両親が2人で暮らしやすい間取りでしたので、K様ご家族4人とワンちゃん1匹が快適に過ごせるよう、玄関の位置を移動して、間取りも大きく変更しました。また車も2台駐車できるよう外構のリフォームも併せてご提案させていただきました。
現在美容室を経営されているご主人様が、将来ご自宅でも美容室ができるようフレキシブルな間取りに配慮しています。
デザインパース
間取り図
大胆に移動した玄関は、スタイリッシュな空間に!
玄関の位置を大胆に変更し各部屋の繋がりを持たせることにより開放感のあるお住まいになりました。特に玄関のデザインにこだわり、帰ってきたご家族やお客様を出迎える素敵なスペースに。
また、間口の広い上がり框は将来的に介護が必要になったときや、美容室のお客様がどんな方でも利用できるように考慮したプランとなっております。
ご家族とペットがくつろげるリビング
リフォーム前の面影はそのままに、キッチンを対面化して家事をしながらリビングの様子を見渡せるようにしました。リビング南側の床をタイル貼りにして、ご家族同様のワンちゃんが一緒に過ごせるようにしています。小上がりの和室はちょっと腰を掛けるのに丁度良い高さに。
畳の下は引き出し収納と床下収納になっているので、未利用空間を有効に利用しています。
水まわりの位置変更で家事動線をスムーズに!
リフォーム前の間取りは、水まわりが隣り合っているのにそれぞれ孤立していてもったいない間取りでしたが、洗面室とお風呂の位置を入れ替えることによって、浴室⇔洗面室⇔キッチンの動線が一直線となり家事のしやすい動線になりました。
リビングイン階段に掛け替え
2階は以前広い1部屋だけでしたが、2室に分けてそれぞれのお子様に一人部屋をお作りしました。また階段の位置をリビングインに変更する事で、ご家族が必ず顔を合わせて過ごせる間取りになりました。
古き良きものは再利用
リビングの化粧梁や、玄関横の飾り棚で照明の役割をしている障子、階段と和室を繋ぐ障子等はとても良いものだったので、少し手を加えて新居でも再利用しています。思い出はそのままに、サステナブルなリフォームになりました。
施工前
担当者より
関連施工事例
-
自然光を採りこんだ明るい住まいへとフルリノベーション
八王子市 N様 費用:約2460万円
N様は弊社ホームページをご覧になり、お問い合わせくださいまし…

-
古き良き時代の面影を遺す、古民家風デザインリノベーション
昭島市 K様 費用:約1960万円
築60年ほどのK様邸。奥様のご実家で経年による老朽化が進んで…

-
劇的に変わるフルリノベーション!耐震強度と断熱性も飛躍的に向上!
八王子市 I様 費用:約2180万円
I様はSUUMOリフォームを通じてお問い合わせいただいたお客…

-
実家の二階を“ときめき”を感じる素材でリノベーション!
日野市 K様 費用:約1200万円
ご主人のご実家に移り住むことをきっかけにリフォームを計画され…






































































K様 この度は大切なご実家の全面リフォーム工事をお任せ頂きありがとうございました。最初にご来店いただいた時にお人柄から「絶対にK様ご家族の為に力になりたい!」と強く決意しました。設計の鈴木や施工管理の成川と共に、できる限りの事をさせて頂いたつもりです。
ご家族の皆様が和気藹々と暮らしていただけるような素敵なお家になりましたね。
K様とのお打ち合わせはいつも和やかでとても楽しい時間でした。本当にありがとうございました。また何かございましたらいつでもご連絡くださいね。これからも末長いおつきあいをよろしくお願いいたします。 プランナー 松村