一級建築士事務所エンラージ|八王子市・日野市を拠点に価値のあるリノベーション&リフォームをご提案いたします
ご両親から受け継いだ大切なご実家を、ライフスタイルに合わせてリノベーション!
| お名前 | S 様 | 費用 | 約800万円 |
|---|---|---|---|
| 工事内容 | 実家のフルリノベーション | ご住所 | 立川市 |
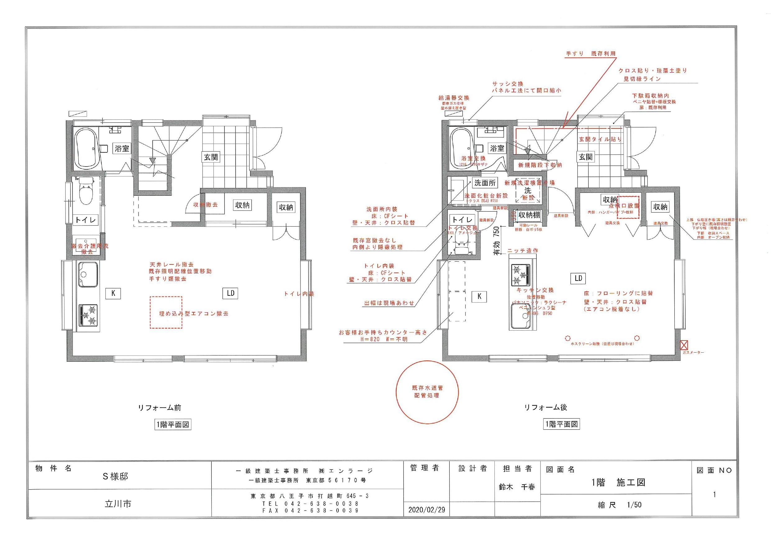
| 工期 | 約2か月 | 間取り |
S様は「ご両親から受け継いだ築45年の実家を使いやすくリフォームしたい」とご希望でした。ご実家を拝見すると、高齢者向けのリフォームがされていてご家族の優しさを感じる仕様でしたが、若いご夫婦の生活スタイルには合わない点が多く、全体的に傷みも見られました。S様ご夫婦が住みやすくなるように間取り変更を行い、傷んだところはリニューアルをしていきました。約2ヶ月の工事を経て、ご両親の思い出は残しつつ、S様ご夫婦にとって使いやすく・おしゃれな住まいへと生まれ変わりました。
デザインパース
間取り図
家事同線を考慮した『アイランドキッチン』
壁付けだったキッチンの位置を変更し、廻りをグルっと一周出来るような「アイランド型」に配置しました。
ガスコンロの横には壁を作り、入口ドアからの視線を遮るよう配慮しています。
高断熱のユニットバスと窓交換
以前は在来浴室と呼ばれるタイルが貼ってあるお風呂でしたが、ユニットバスに交換することで、暖かくきれいな浴室へと変わりました。
古い大きな窓もカバー工法で外壁を痛めることなくサイズダウンし、高断熱サッシに入れ替え、暖かいお風呂になりました。
洗面脱衣所を新設
トイレの空間を整理することで、これまで無かった洗面・脱衣室を新設、洗面台を設置し、以前は外にあった洗濯機置き場も室内に取り込むことが出来ました。
自然素材を使った内装
内装の壁には、自然素材の珪藻土を使用しました。
左官職人が丁寧にパターン(模様)付けをしながらコテでひと塗りずつ仕上げています。
珪藻土には調湿作用があり、部屋に入った瞬間に空気感の違いを感じるほどの効果です。
施工前
担当者より
関連施工事例
-
自然光を採りこんだ明るい住まいへとフルリノベーション
八王子市 N様 費用:約2460万円
N様は弊社ホームページをご覧になり、お問い合わせくださいまし…

-
古き良き時代の面影を遺す、古民家風デザインリノベーション
昭島市 K様 費用:約1960万円
築60年ほどのK様邸。奥様のご実家で経年による老朽化が進んで…

-
劇的に変わるフルリノベーション!耐震強度と断熱性も飛躍的に向上!
八王子市 I様 費用:約2180万円
I様はSUUMOリフォームを通じてお問い合わせいただいたお客…

-
2階建てを平屋にリフォーム!減築で末永く快適に暮らせるお住まいが完成!
八王子市 S様 費用:約2780万円
S様はSUUMOリフォームを通じてお問合せをいただいたお客様…













































この度は当社に工事をお任せいただきありがとうございました。
今回、ご両親から受け継いだ建物を共働きのご夫婦の生活スタイルに合わせ
家事動線の短縮、効率化、そして何よりお忙しいご夫婦が心からくつろげる家づくりを目指し
スタッフ、職人が連携し工事を進めてさせていただきました。
LDKはアクティブな内装に、リラックス空間への入口のとなる階段室や寝室には
珪藻土をふんだんに使うことで自然と安らぎを感じるお家を実現せていただきました。
完工時、『こんなに素敵になって、これからの生活が楽しみ』と言っていただけた時はとても嬉しかったです。
これから始まるご夫妻の新生活がお幸せになりますよう、心よりお祈り申し上げます。
北野支店 プランナー 鈴木千春