一級建築士事務所エンラージ|八王子市・日野市を拠点に価値のあるリノベーション&リフォームをご提案いたします
築40年・新築を超えるスケルトンリフォーム!
| お名前 | M 様 | 費用 | 約2150万円 |
|---|---|---|---|
| 工事内容 | 耐震補強を含むスケルトンリフォーム | ご住所 | 立川市 |
| 工期 | 約3ヶ月 | 間取り |
M様はリフォームサイト「ホームプロ」を通じてお問合せを頂いたお客様で、「奥様のご実家を全面的にリノベーションして移り住みたい」というご要望でした。当社の一級建築士が耐震補強設計を行い、間取り変更を含めた全面リノベーションプランをご提案。数社合い見積りがありましたが、最終的に当社のプランをお選び頂き、設計と施工を全面的にお任せ下さいました。
デザインパース
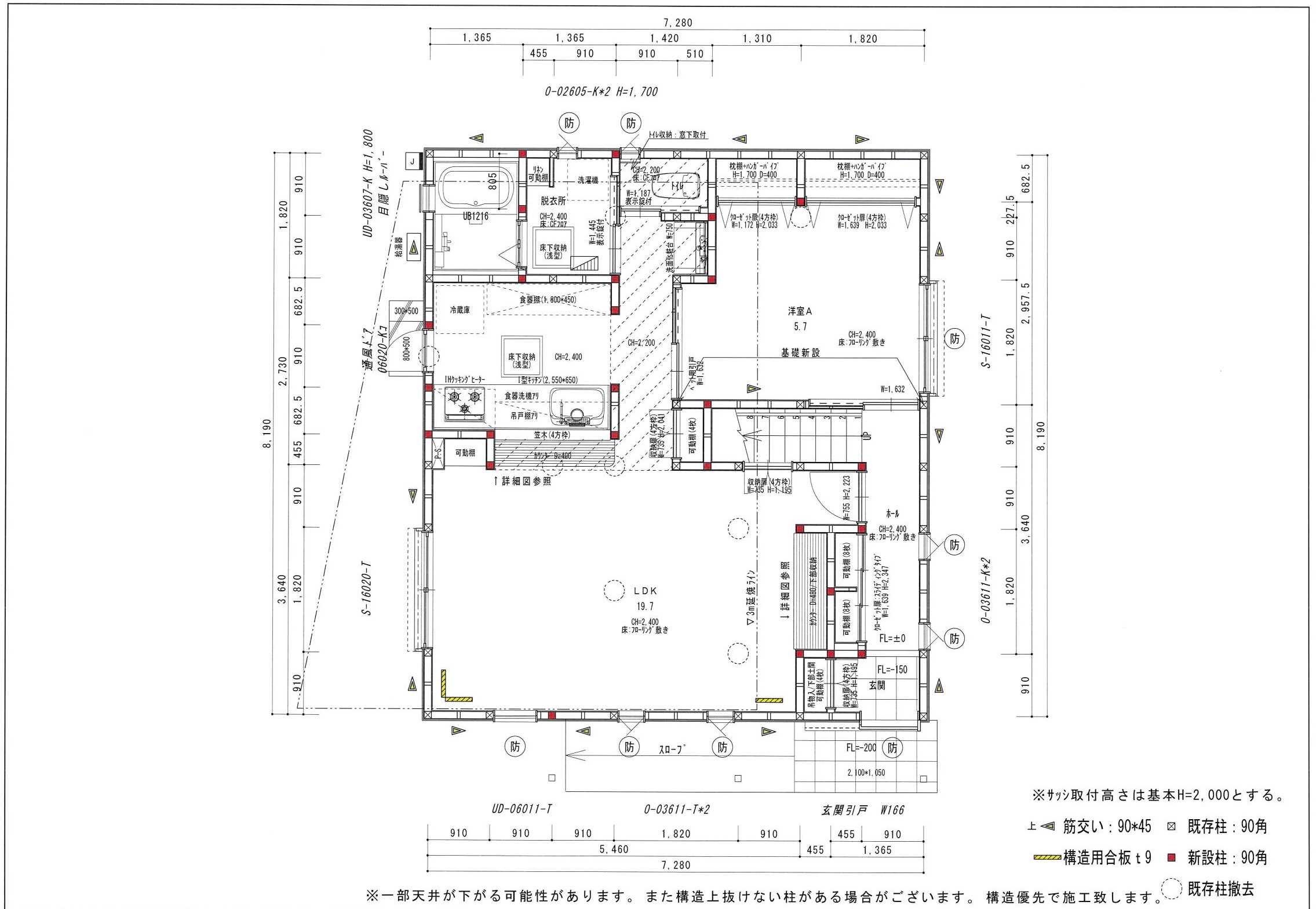
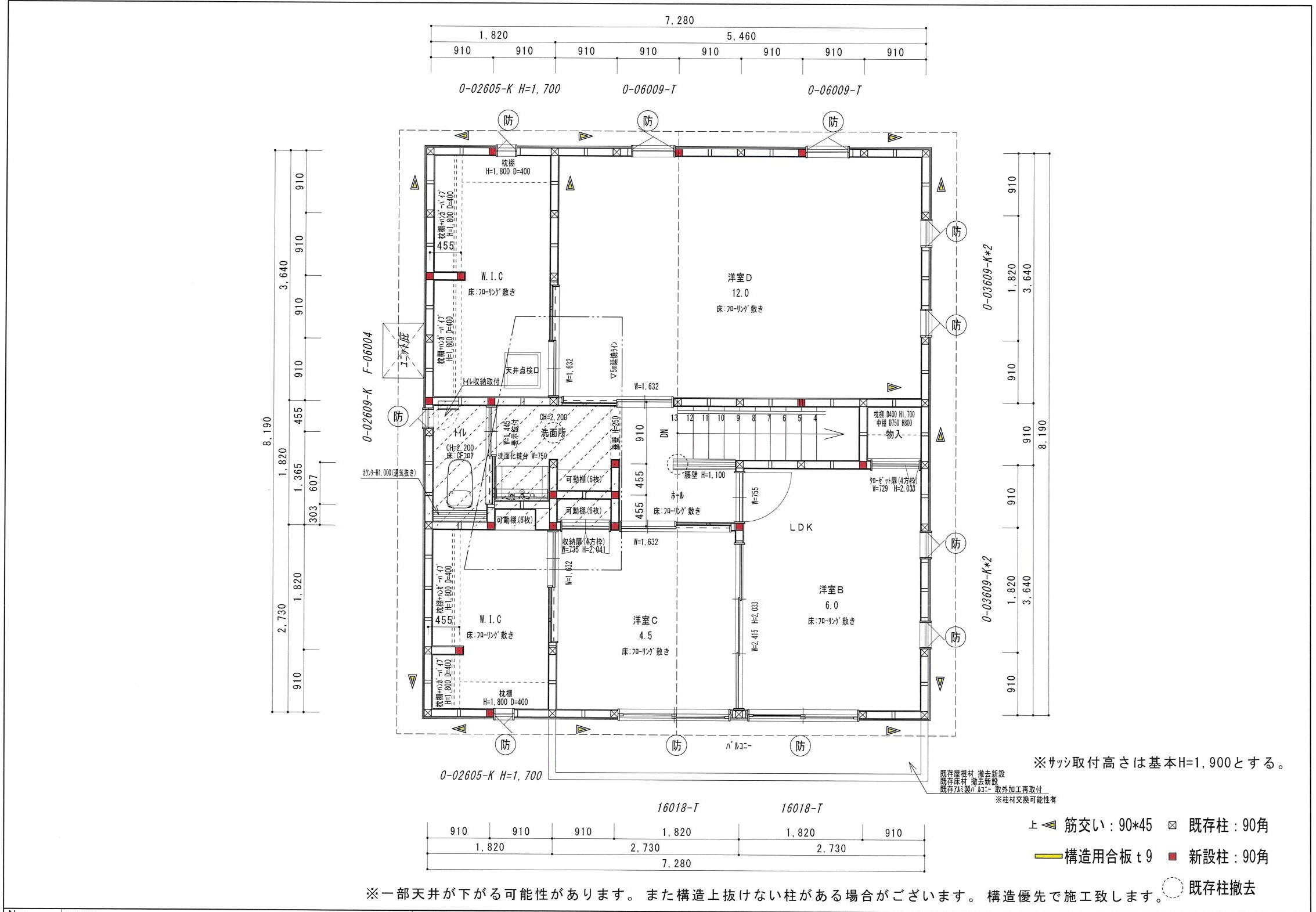
間取り図

完全スケルトンリフォーム
既存建物の内部と外部を完全に解体し、一旦スケルトン(骨組み)の状態にしてから工事をスタート。基礎の補強や全面的な耐震補強を伴う大規模なリノベーションに最適な工法です。
1階・2階ともに間取りを全面的に変更
築40年を超える建物でお部屋のほとんどが和室でしたが、なるべく開放的な大空間を確保するため、耐震強度を確保しながら、大規模な間取変更を行いました。
お好みのデザインにリニューアル
水まわり設備の選定や、内・外装の仕様決めは、インテリアコーディネーターの資格を持った女性プランナーが担当。奥様やお嬢様のお好みにピッタリなインテリアに。
新築並みのリノベーション
建物構造を現行の建築基準法に適合する強度に補強し、水廻り全交換・サッシ全交換・外壁サイディング貼り・屋根葺き替え・建具(ドア)全交換・内装全面リフォーム等の工事を行い、内部も外部もまるで新築のよう。

ご自宅マンションの売却までワンストップで対応
リフォームが完成してお引越し後、それまで住んでいたマンションのご売却も当社にお任せ下さいました。不動産取引に強い2名の宅建士がご売却を担当し、早期にご契約する事ができました。
施工前
担当者より
関連施工事例
-
自然光を採りこんだ明るい住まいへとフルリノベーション
八王子市 N様 費用:約2460万円
N様は弊社ホームページをご覧になり、お問い合わせくださいまし…

-
古き良き時代の面影を遺す、古民家風デザインリノベーション
昭島市 K様 費用:約1960万円
築60年ほどのK様邸。奥様のご実家で経年による老朽化が進んで…

-
劇的に変わるフルリノベーション!耐震強度と断熱性も飛躍的に向上!
八王子市 I様 費用:約2180万円
I様はSUUMOリフォームを通じてお問い合わせいただいたお客…

-
2階建てを平屋にリフォーム!減築で末永く快適に暮らせるお住まいが完成!
八王子市 S様 費用:約2780万円
S様はSUUMOリフォームを通じてお問合せをいただいたお客様…

































































M様 このたびは大規模なリフォームを当社にお任せ頂き本当にありがとうございました。奥様のご実家のリフォームという事でしたので、お打合せは奥様を中心にご家族皆様と楽しく進めさせて頂きました。また、ご主人様の「家族皆が安心して安全に暮らせる家にしたい」という想いが伝わってきましたので、スタッフ一同そのお気持ちにお応えするため尽力いたしました。大規模な工事でしたが、前職での新築住宅のコーディネーター経験が役に立ち、最後まで務める事ができました。完成・お引渡しの際には私自身とても感動し、本当に嬉しかったです。今回の工事は私にとっても忘れられない体験となりました。これからもご新居でご家族仲良くお過ごしくださいますよう、心よりお祈り申し上げます。 プランナー 川崎