一級建築士事務所エンラージ|八王子市・日野市を拠点に価値のあるリノベーション&リフォームをご提案いたします
築35年のご実家を二世帯住宅にフルリノベーション!LDKを移動して明るいお住まいに大改装!
| お名前 | M 様 | 費用 | 約1780万円 |
|---|---|---|---|
| 工事内容 | フルリノベーション | ご住所 | 国立市 |
| 工期 | 約3ヶ月 | 間取り | 4LDK |
ご主人様のご実家を全面的にリフォームしたいと、リフォーム紹介サイト・ホームプロを通じてお問い合わせをいただいたM様。寒さや使い勝手の点でお住まいに不満を感じており、間取りも設備もすべて一新したい!とご希望でした。
大胆な間取り変更を行ない、LDKを1階から2階に移動して屋根裏にロフトを新設。更に他社では難しいと言われたルーフバルコニーを設けてセカンドリビングとして使える空間を実現!住みやすさや機能性が大幅に向上し、外観デザインも一新した建替え並みのリノベーションです。生まれ変わったご新居は、ご近所様から「新築したみたい!」と大好評です。
デザインパース
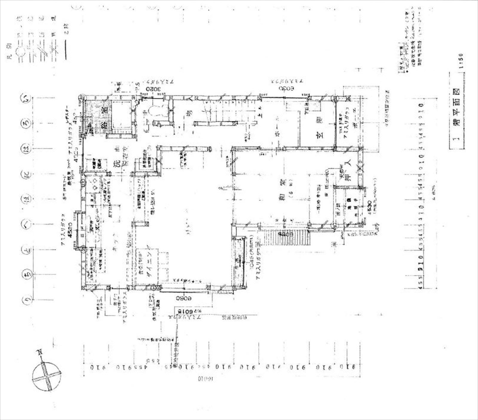
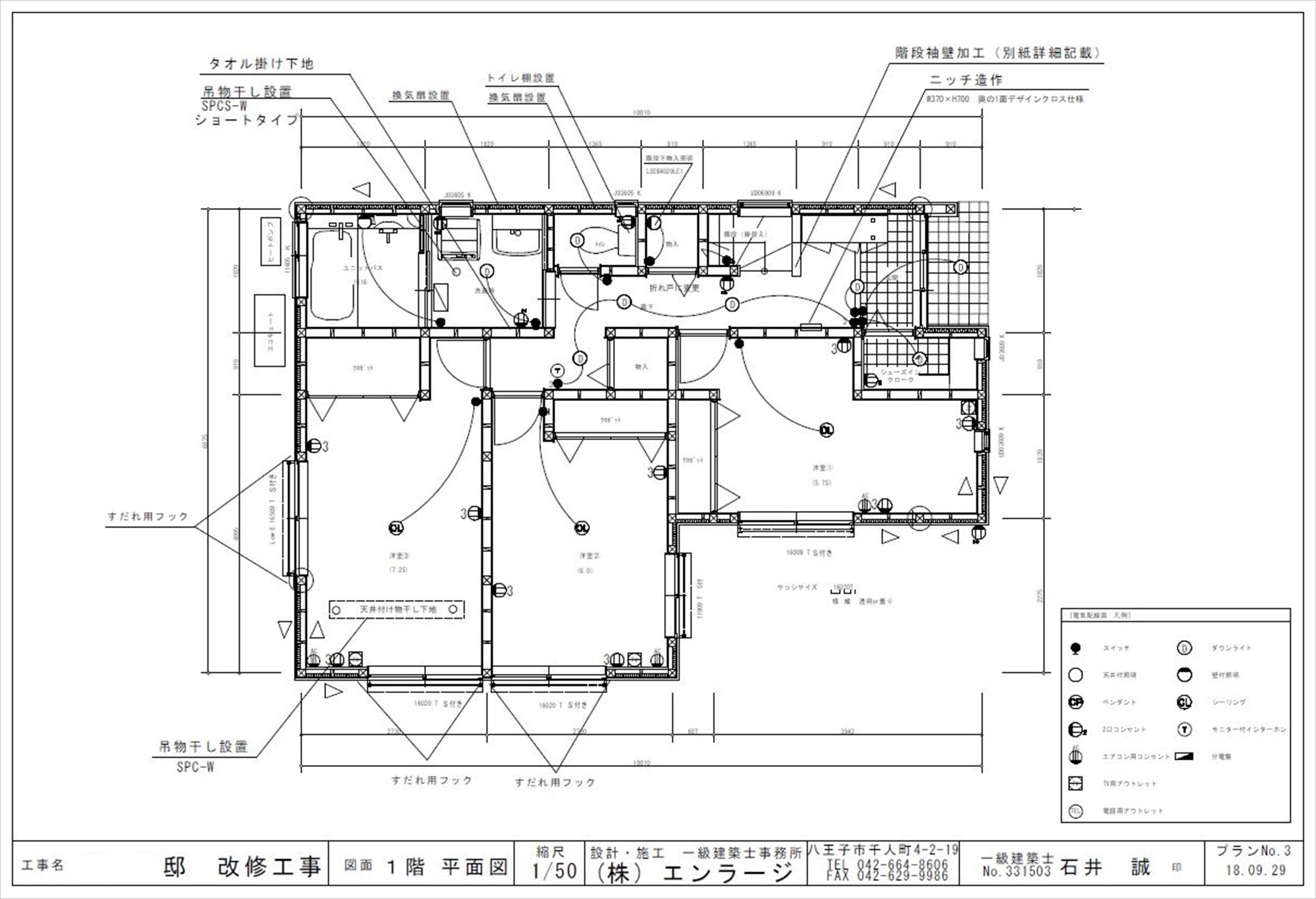
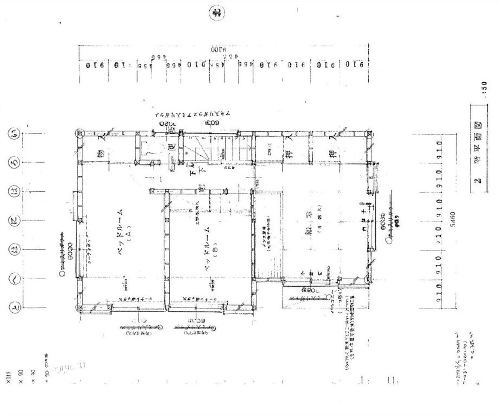
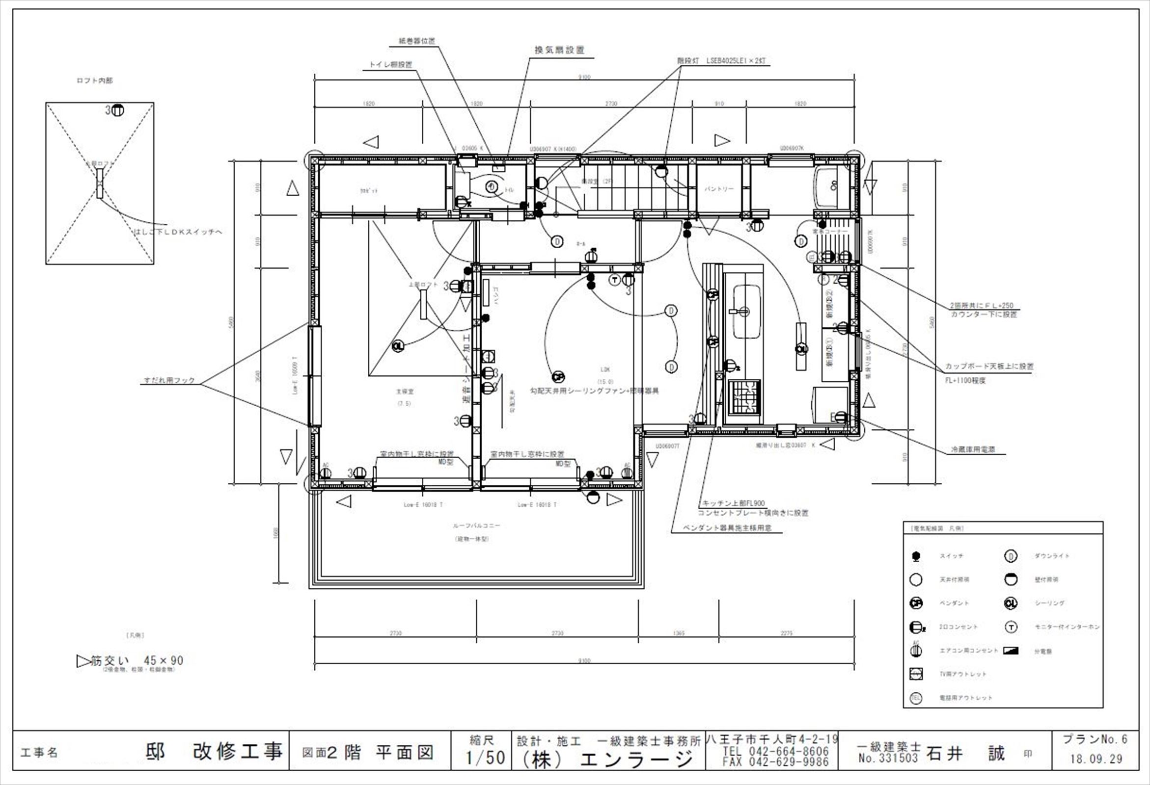
間取り図
3世代が集う2階LDK
LDKを2階に移したことで陽当たりのよい明るい空間に。キッチンは奥様待望の対面キッチンです。
空間に広がりを持たせるため、天井を取り払って勾配天井にしています。未利用の小屋裏空間にロフトを新設し、古い梁を移設して見せるなど、遊び心も満載です。
建物一体型のルーフバルコニー
リフォーム前は柱建ての狭いアルミベランダでしたが、当社が得意とする造作の建物一体型バルコニーに作り替えました。幅や奥行が広がり、3世代5名分の洗濯物も楽々干せます。LDKからアクセスできる家事動線も嬉しいですね。
充実した収納プラン
各部屋に機能的な収納を設け、収納する物に合わせて使い勝手を考慮した収納計画です。玄関には野球好きのご主人とお子様のために、土足で入れるシューズインクロークを新設しています。
こだわりの外観デザイン
屋根は瓦からガルバリウム鋼板に葺き替え、外壁はサイディングの貼り分けプランでご提案。
3Dパースで細かなところまで作成し、それを見ながら打ち合わせを進めます。その場で全体のイメージを掴めるので気に入って頂けるまでじっくり打合せができました。
外構もスライド式の門扉やオリジナル色で塗装した門塀、花壇の石張りなど、デザインと色合いにこだわったスタイリッシュな外観になりました。
施工前
担当者より
関連施工事例
-
自然光を採りこんだ明るい住まいへとフルリノベーション
八王子市 N様 費用:約2460万円
N様は弊社ホームページをご覧になり、お問い合わせくださいまし…

-
古き良き時代の面影を遺す、古民家風デザインリノベーション
昭島市 K様 費用:約1960万円
築60年ほどのK様邸。奥様のご実家で経年による老朽化が進んで…

-
劇的に変わるフルリノベーション!耐震強度と断熱性も飛躍的に向上!
八王子市 I様 費用:約2180万円
I様はSUUMOリフォームを通じてお問い合わせいただいたお客…

-
実家の二階を“ときめき”を感じる素材でリノベーション!
日野市 K様 費用:約1200万円
ご主人のご実家に移り住むことをきっかけにリフォームを計画され…


































































M様
この度は全面リフォームの設計と施工をお任せ頂きありがとうございました。様々な家の悩みを奥様からお聞きした際に、大変な状態で暮らされているなと感じました。ご主人と息子さんは野球に夢中で、リフォームのお打合せは、主に奥様とお母様そして娘様と女性のみでしたが、皆様にご満足頂けて嬉しかったです。収納の内部や物干しスペース、家事導線など女性に優しいお家が出来ましたね!
完了立会の際に、打合せにはあまり参加されていなかったご主人にもお喜び頂けて良かったです。今回は大胆な間取り変更と造作のルーフバルコニーが決め手だったと伺いましたが、耐震性や断熱性もしっかり確保できております。これからもご家族で仲良くお過ごしくださいね。 プランナー 小宮