スタッフブログ

Staff Blog

閲覧数:52

戸建全面フルリノベーション④

2021年5月31日(月)

戸建全面フルリノベーション④

皆様こんにちは   以前よりご紹介しておりました『戸建全面フルリノベーション』。 先日、ついに完工&お引渡しをいたしました   全体的に間取り変更を行い、まるで新築のように生まれ変わりました。 本日は完工後の建物内部の様子をご紹介いたします ……
北野店

閲覧数:62

マンションのスケルトンリフォーム!

2021年5月30日(日)

マンションのスケルトンリフォーム!

マンションのリフォームで一番楽しいのは“スケルトンリフォーム”です コンクリートの躯体が見えるまで解体して、すべて造り替えるので 本当に新築のようになります           八王子内で施工さ……
八王子店

閲覧数:41

二世帯化リフォーム進行中!

2021年5月29日(土)

二世帯化リフォーム進行中!

早いもので、5月も残り数日となりました。 お陰様で大型リフォームをたくさん担当させて頂いているので 1日があっという間に終わってしまいます。           こちらは現在施工中の八王子市H様……
八王子店

閲覧数:78

カフェ💛エンラージ*暑い日におすすめのオードブルが登場!

2021年5月28日(金)

カフェ💛エンラージ*暑い日におすすめのオードブルが登場!

  皆様こんにちは   ちょっと蒸し暑くなってきた時期にぴったり さっぱりとしたオードブルが登場しました     『北海道産ホタテ貝と塩レモンとアボカドのタルタル』   ぷりぷりのホタテ貝……
カフェ

閲覧数:75

生まれ変わったカッコいい外観のお披露目!

2021年5月27日(木)

生まれ変わったカッコいい外観のお披露目!

梅雨入り前の晴れ間はとても貴重になりました 八王子市で全面リフォームを施工中のY様邸は、サイディング貼りや雨樋交換等の 外装工事が終わり、無事に足場を外す事ができました。         リフォーム前はモルタル……
八王子店

閲覧数:49

八王子市の補助金を活用した耐震診断 今年度第二弾!

2021年5月26日(水)

八王子市の補助金を活用した耐震診断 今年度第二弾!

先日八王子市I様邸で、市の補助金を活用した耐震診断を行いました。 I様邸は築56年の平屋建て木造住宅で、ほぼ古民家のような日本家屋でした。         こちらは小屋裏の写真です。 今では珍しい本格的な土壁の……
北野店

閲覧数:143

RC造戸建ての全面リノベーション

2021年5月25日(火)

RC造戸建ての全面リノベーション

みなさま、こんにちは   早速ですが、本日は日野支店で施工させていただいた、 戸建て全面リノベーションの事例をご紹介いたします   鉄筋コンクリート造の一戸建て住宅で、 内装デザインから外構工事まで、 全て当社にお任せいただきました。 ……
日野店

閲覧数:61

サイディング貼り工事完成!

2021年5月24日(月)

サイディング貼り工事完成!

日野市内で増築+全面リフォーム工事中のS様邸は 外壁のサイディング工事が完成しました         S様邸はリフォーム前もサイディング貼りの外壁でしたが、 今回の工事で1階を増築して、その上をバルコニーにした……
日野店

閲覧数:28

戸建全面フルリノベーション③

2021年5月23日(日)

戸建全面フルリノベーション③

皆様こんにちは   今週は雨の日が多く、ジメッとした日が続きましたね 私は高校まで日本海側の地域で過ごしたためか、湿度が高い日はなんだか懐かしく感じます。 来週はお天気が良いらしいので、今週溜め込んだお洗濯ものをやっつけようと思います   &n……
北野店

閲覧数:63

カフェ💛エンラージ*焼き菓子販売中です!

2021年5月22日(土)

カフェ💛エンラージ*焼き菓子販売中です!

  皆様こんにちは   少しでもおうち時間に癒しをお届けしたいという想いで、 久しぶりにテイクアウト用のお菓子をご用意しました       『珈琲マドレーヌ』   ……
カフェ

閲覧数:96

マンション全面リフォーム進行中!

2021年5月21日(金)

マンション全面リフォーム進行中!

エンラージではトイレやお風呂の部分交換工事ではなく マンションや一戸建ての全面リフォームを数多く手掛けております。 5月から着工した八王子市のY様邸もマンション全面リフォームの現場です。         &nb……
八王子店

閲覧数:53

カフェ💛エンラージ*清流鶏のビネガー煮

2021年5月21日(金)

カフェ💛エンラージ*清流鶏のビネガー煮

  皆様こんにちは   もう梅雨?のようなスッキリしない天気が続いていますね そんな時は美味しいものを食べるに限ります   ということで、カフェのおすすめメニューのご紹介です その日イチオシ!のメニューをスタッフのあやかさんが教……
カフェ

閲覧数:261

階段の掛け替え工事!

2021年5月20日(木)

階段の掛け替え工事!

八王子市で全面リフォームを施工中のY様邸では 階段の掛け替え工事を行っています。         こちらの吹き抜けになっているスペースに新しい階段を作っています。     ……
八王子店

閲覧数:122

LIXILショールームの見学&打合せ!!

2021年5月19日(水)

LIXILショールームの見学&打合せ!!

こんにちは八王子店プランナーのいとうです   だんだん、湿度と気温が上がってきたような気がして 冷え性&寒がりのわたしがついにニット卒業です ついでにコートも卒業しました   気候も良くなってきたところで・・・ 戸建住宅もマンションも全面……
八王子店

閲覧数:58

造作キッチンのある暮らし

2021年5月18日(火)

造作キッチンのある暮らし

皆様こんにちは   本日は、先日工事が完了したT様邸のご紹介をさせて頂きます         T様は住み替えのため、ご新居のリフォームをご希望でした。   主な工事内容は、和室の……
北野店

閲覧数:56

増築&1階全面リフォーム

2021年5月17日(月)

増築&1階全面リフォーム

今週は曇りや雨の日が多く、梅雨入りが例年より早まりそうですね 外部の工事はどんどん進めておきたいです。           日野市で増改築工事中のS様邸は、外壁のサイディング工事に入りました。 ……
日野店

閲覧数:117

基礎にひび割れはありませんか?

2021年5月16日(日)

基礎にひび割れはありませんか?

みなさん、こんにちは   さて、突然ですが             お宅の基礎に、このようなひび割れはありませんか      ……
八王子店

閲覧数:68

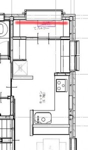
マンション全面リフォーム着工しました!

2021年5月16日(日)

マンション全面リフォーム着工しました!

GWが明け、エンラージでは大規模リフォームが次々と着工しています         こちらは担当の松村プランナーが作成した八王子市Y様邸 マンション全面リフォームの完成予想パース図です   &nb……
八王子店

閲覧数:198

カフェ💛エンラージ*ラム酒を使ったスイーツが登場しました!

2021年5月15日(土)

カフェ💛エンラージ*ラム酒を使ったスイーツが登場しました!

  皆様こんにちは   タイトル通り、ラム酒の効いたスイーツが登場しました~       『ババオラム』というスイーツです   ババオラムとは、ブリオッシュ(ふわふわとしたパン)……
カフェ

閲覧数:40

八王子市 令和3年度の耐震診断 第一号

2021年5月14日(金)

八王子市 令和3年度の耐震診断 第一号

八王子市令和3年度の耐震診断補助金の申込みが、4/14(水)から開始されましたが エンラージではさっそく3件のご依頼があり、先日1件目の診断が終わりました。       北野支店の鈴木店長と八王子店の成川監督が現地調査を行いました。……
北野店