一級建築士事務所エンラージ|八王子市・日野市を拠点に価値のあるリノベーション&リフォームをご提案いたします
戸建全面フルリノベーション④
公開日:2021/5/31
皆様こんにちは![]()
以前よりご紹介しておりました『戸建全面フルリノベーション』。
先日、ついに完工&お引渡しをいたしました![]()
全体的に間取り変更を行い、まるで新築のように生まれ変わりました。
本日は完工後の建物内部の様子をご紹介いたします![]()
(前回までの投稿はこちら
⇒ 戸建全面フルリノベーション①・②・③)
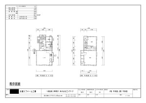
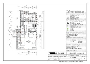
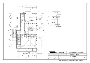
まずは工事前の間取りと、工事後の間取りのご紹介です。
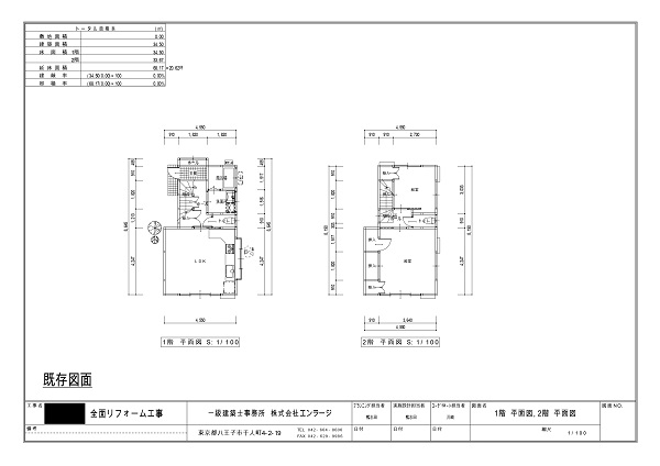
【工事前 既存図面】
【工事後 1階図面】
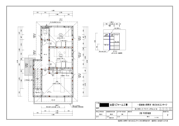
【工事後 2階図面】
図面からだけでも、大きく変わったことが分かりますね![]()
そして、ここからが完成後の様子です。
アクセントクロスでおしゃれな内装にしつつ、視覚効果で広く感じられるようにしました。
そして、照明器具にアイストップの機能を持たせることでリズム感のある空間となっております![]()
3Dパースを用いて内装や照明計画のご提案をしたのですが、
「このパース通りなるようにしてください」と、奥様から嬉しいお言葉を頂きました。
「その空間でどのように過ごしたいか・どんな暮らしをしたいか」を考えながらプランをしておりますので、
ご提案内容をご採用頂けるのはとっても嬉しいです![]()
T様、この度は全面リノベーション工事をお任せ下さり、ありがとうございました![]()
また、工事中は何かとお気遣い頂き、重ねてお礼申し上げます。
初めて皆様にお会いした際に、お困りの点や叶えたい事などたくさんお聞きかせ頂き、
お子様達のためにも是非お力になりたいと強く思ったのを今でも鮮明に思い出します![]()
今回の工事では断熱材の充填や窓交換などの断熱工事も行っているので、夏・冬の室内への外気の影響が軽減されます。
例年と比べて過ごしやすくなるかと思いますので、これからはおうち時間がより快適になりますね![]()
しばらくはお引越しやお片付けでお忙しいかと思いますが、落ち着かれた頃にまたお邪魔させてください。
今後ともよろしくお願い致します。
*========*========*=======*=======*=======*=======*========*========*
【 一級建築士事務所ENLARGE 】
八王子本店:0120-512-355 (中央線西八王子駅より徒歩5分)
北野支店 :0120-186-202 (京王線北野駅より徒歩4分)
日野支店 :0120-186-203 (中央線日野駅より徒歩3分)
お問い合わせフォーム:https://www.enlarge.tokyo/contact
来店予約:https://www.enlarge.tokyo/raiten
資料請求:https://www.enlarge.tokyo/book
*========*========*=======*=======*=======*=======*========*========*
北野支店:かわさき🐰
























