一級建築士事務所エンラージ|八王子市・日野市を拠点に価値のあるリノベーション&リフォームをご提案いたします
造作キッチンのある暮らし
公開日:2021/5/18
皆様こんにちは![]()
本日は、先日工事が完了したT様邸のご紹介をさせて頂きます![]()
![]()
T様は住み替えのため、ご新居のリフォームをご希望でした。
主な工事内容は、和室の洋室化、LDK・玄関ホールのフローリングの上貼り、内装工事です。
キッチンは交換時に位置移動をする予定でお打合せを進めました。
新しいキッチンはⅡ型キッチンなのですが、シンク側はT様のお好みのデザイン・利便性を重視し、造作します![]()
お打合せでは0からのスタートなので、完成するまでは私自身ドキドキわくわくでした![]()
(※Ⅱ型キッチン…コンロとシンクのキャビネットが2つに分かれていて、並列しているキッチン)
キッチンのイメージパースがこちらです。
家事導線が良く、時短や効率化ができるⅡ型キッチン。
シンク横はダイニングテーブルも兼ねており、省スペースで無駄なく動ける設計となっています![]()
また、羽目板デザインになっており、近くでみるとほんのり木目が見えるように塗装します![]()
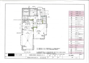
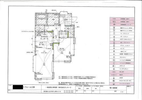
工事前の様子がこちら![]()
ここから、こちらの図面の内容で施工いたします。
工事中の様子です。
大工さんによる施工メインに、電気屋さん、水道屋さん、造作家具屋さんの連携作業で、
見えないところもしっかりと施工していきます![]()
施工中、工事範囲外の部分で不具合を発見したので、そこも併せて手直し頂いております。
既存再利用する窓枠やドア枠は、ご選定頂いた壁紙に合わせて白く塗装しました。
内装工事ももちろんしっかりと施工頂いています![]()
壁紙の仕上がりに大きく影響する下地処理の作業も丁寧に行ってくださっています。
キッチンは造作家具屋さんの工房で製作頂き、現地で組み立て・調整・設置となります。
完成前ですが、もうすでに素敵です~![]()
キッチン横の窓は、曇りガラスを透明ガラスに変え、縦格子を撤去します。
透明ガラスに変えたことで、新緑の美しい景色が広がりました![]()
ここからが完成後です。
白を基調としたT様好みの空間に生まれ変わりました![]()
キッチン・照明・ドアなど、それぞれ主役級の存在感ですが、色の数を絞りデザインの方向性を合わせることで、統一感を持たせました。
これから家具やファブリック、インテリア小物を設置されるので、どのように変わっていくか楽しみです![]()
T様、この度はご新居の工事をお任せ頂き、誠にありがとうございます![]()
お打合せ前から完成後、家具を置いた時のイメージをお持ちでしたので、その雰囲気に合うように床や扉などご提案させて頂きました。
床に関して、イメージと合うかご心配されていましたが、完成時に「提案内容を採用してよかった
」と仰って頂けて嬉しかったです![]()
キッチンは世界で1つだけの、T様だけのオリジナルキッチンなので、きっと愛着の湧く空間になると思います。
キッチンも含めて、どのようなインテリア小物や家具を置かれるのか、とても楽しみです。
今後ともよろしくお願い致します![]()
*========*========*=======*=======*=======*=======*========*========*
【 一級建築士事務所ENLARGE 】
八王子本店:0120-512-355 (中央線西八王子駅より徒歩5分)
北野支店 :0120-186-202 (京王線北野駅より徒歩4分)
日野支店 :0120-186-203 (中央線日野駅より徒歩3分)
お問い合わせフォーム:https://www.enlarge.tokyo/contact
来店予約:https://www.enlarge.tokyo/raiten
資料請求:https://www.enlarge.tokyo/book
*========*========*=======*=======*=======*=======*========*========*
北野支店:かわさき🐰































