一級建築士事務所エンラージ|八王子市・日野市を拠点に価値のあるリノベーション&リフォームをご提案いたします
中古マンションを購入して自分好みにデザインリノベーション
| お名前 | O 様 | 費用 | 約1130万円 |
|---|---|---|---|
| 工事内容 | 中古マンションのフルリノベーション | ご住所 | 八王子市 |
| 工期 | 約2か月 | 間取り | 3LDK+W.I.C |
O様は中古購入したマンションの間取り変更を伴う全面的なリノベーションをご希望され、当社ホームページよりお問い合わせをいただきました。ご新居での暮らしをイメージされていたO様。その夢を実現すべく、趣味室兼書斎やW.I.C、和室をLDKの一部として洋室化してキッチンを対面にするなど、理想とするお暮らしに合わせたプランをご提案させていただきました。
ナチュラルな雰囲気がありつつグレージュな空間がご希望でしたので、お打合せ時は3Dパースやサンプルを用いながら細部のお話しを進めていきました。
キッチンをはじめとした水回り設備、造作デスク、内装窓やくつろぎの照明計画などにもこだわり、O様お好みの空間に生まれ変わっています。
デザインパース
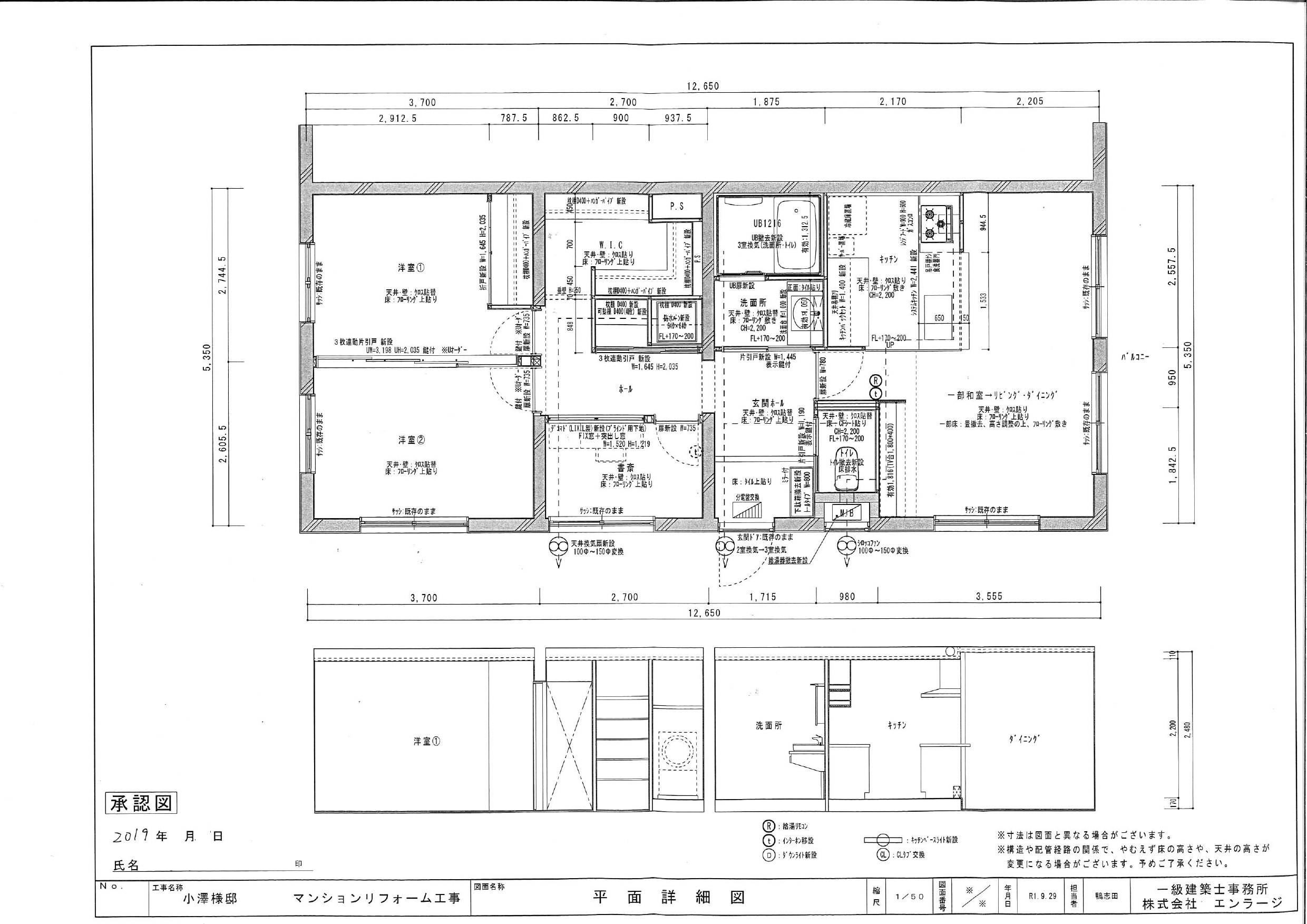
間取り図
眺めの良いLDKとこだわりのキッチン
施工前はキッチン・ダイニング・リビングはそれぞ別の空間として細かく区切られていました。広々としたLDKを実現するために、キッチンの位置を大胆に移動し、和室を洋室化して間取りを変更する事で、大空間を作り出す事が出来ました。
キッチンはキッチンハウスの“グラフテクト”という商品を採用。
対面キッチンにすることで外の景色を楽しみながら、お料理が出来るようになりました。
くつろぎの照明計画
キッチンの手元灯やトイレのブラケット灯は、照明メーカーのショールームまで赴きお選びいただいた、こだわりのデザインです。
器具色や照明光は内装の雰囲気に合わせ、一部特注オーダーいたしました。
LDKとトイレには壁面を照らす間接照明を採用。光が空間のアクセントになりつつもふんわりと広がり、優しく照らしてくれます。
書斎を兼ねた趣味の部屋
趣味室兼書斎にあるPCデスクは、O様と担当者で一緒に作り上げた完全オーダーメイド品です。
デスクの足は片側をアイアンにし、天板にはオークの無垢板を使用しています。引出の内部はグレーにしたりと、細部までこだわりました。
廊下に面する壁面はLIXILのデコマドという内装窓を設置し、デザイン性のみならず採光と通気にも配慮しています。内装窓があることにより、空間が広く感じられます。
ホテルライクな浴室・洗面空間
背の高いO様が浴槽でゆったりくつろげるよう、浴室はサイズアップしました。浴室は全体的に落ち着いたダークトーンで統一し、ホテルライクな雰囲気を演出しています。
洗面室のタイルと洗面台は、ショールームでO様が一目惚れしご採用頂いた組み合わせです。ガラスタイルが高級感を出し良いアクセントになっています。
施工前
担当者より
関連施工事例
-
いつまでも美しい自然素材を使用したマンションのフルリノベーション
府中市 K様 費用:約1800万円
K様はホームプロからのお問い合わせをいただき、ご親族が住んで…

-
新築を超えた!中古購入リノベーション!
八王子市 I様 費用:非公開
I様は当社ホームページよりお問い合わせいただいたお客様で、中…

-
中古戸建てをライフスタイルにマッチした開放的な間取りにリノベーション
国立市 M様 費用:約1370万円
M様は、購入した中古戸建てを開放的な間取りでお子様やワンちゃ…

-
“木・水・石”をテーマにデザインしたこだわりのセカンドハウスリノベーション
稲城市 A様 費用:約2060万円
A様はスーモカウンターよりお問い合わせいただきました。セカン…





























































O様
この度は私共に、中古購入したご新居の全面リノベーションをお任せいただき、誠にありがとうございます。
「こんな部屋にしたい」「こういう暮らしをしたい」というO様のイメージや夢を実現するために、チーム一丸となってお打合せから完工まで尽力してまいりました。
お打合せはいつも楽しく、私自身初めてご提案する内容もあり、とても新鮮でした。工事後のお引渡しの時には「想像していたよりもずっと素敵な家になった!」というお言葉を頂くことができ、大変嬉しく思います。
O様にお喜び頂くため、職人さん達含め工事に係わったすべて人が一生懸命に取り組んだ結果、このような感想を頂戴できたのだと思います。
ご新居での生活が落ち着かれましたら、是非またお伺いしたいと思っております。
今後ともよろしくお願い致します。
プランナー 川崎