一級建築士事務所エンラージ|八王子市・日野市を拠点に価値のあるリノベーション&リフォームをご提案いたします
ご両親から引き継いだご実家を全面リノベーション!
| お名前 | T 様 | 費用 | 約2630万円 (外構工事含む) |
|---|---|---|---|
| 工事内容 | フルリノベーション+外構工事 | ご住所 | 福生市 |
| 工期 | 約3ヶ月 | 間取り | 5LDK |
T様はリフォームサイト「ホームプロ」を通じてお問合せを頂いたお客様です。福生市にあるご実家を全面的にリフォームして、ご家族で移り住みたいというご要望でした。現地を拝見した所、とても立派な和風住宅でしたが、「和のイメージを一新したい」というご希望をお伺いしました。当社の一級建築士と一緒にリノベーションのプランを考え、3Dパースを作ってご提案した所とても気に入って下さり、合い見積もりもなくその場で当社にお決め頂きました。遠方にお住いのため、何度もお打合せにお越し頂くのは心苦しかったのですが、いつも楽しそうに仕様決めをして頂けました。完成してしばらくお住まいになってからご訪問したのですが、笑顔でお迎え下さりとても嬉しかったです。
デザインパース
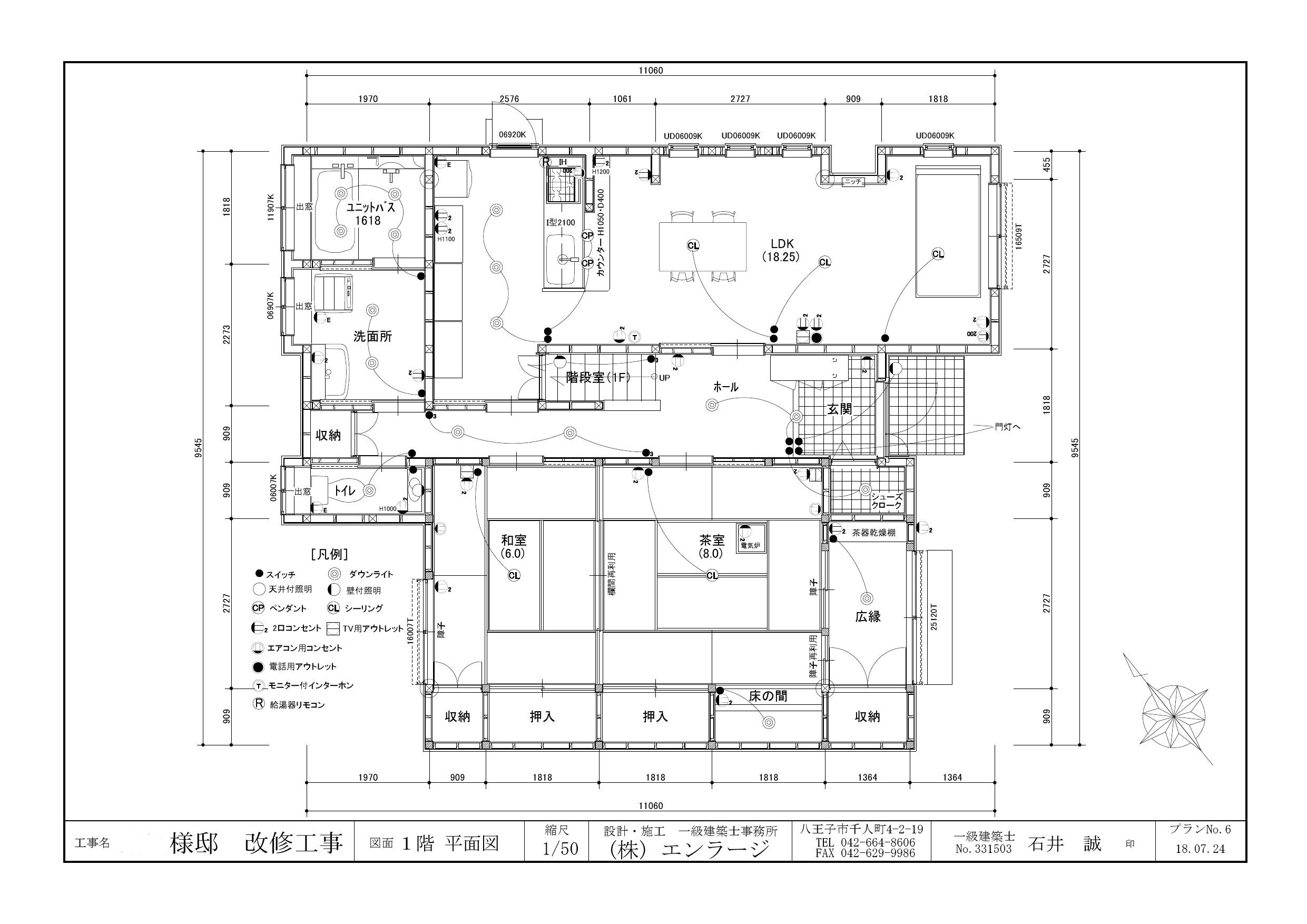
間取り図
20帖の広々LDKを実現
間取りを大幅に変更し、約20帖の広々LDKを実現しました。床はメープルのフローリング、壁は自然素材の「スイス漆喰」塗りで、明るくナチュラルな仕上がりです。キッチンは対面式に変更して、キッチンカウンターを新設しました。簡単なお食事はカフェ気分で楽しめます。
カラフルなキッチンとカップボード
キッチンとカップボードはトクラスの「ベリー」を採用。自社工場で生産している人造大理石が機能的で美しい、国内有数のメーカー(旧ヤマハ)です。グリーンとイエローのカラフルな色使いで、お料理が楽しくなります。
広々としたユニットバスと洗面・脱衣所
浴室はTOTOの「サザナ」1618サイズを採用。1坪サイズより1回り大きくゆったりとしたバスタイムが楽しめます。また、間取りを変更して、洗面・脱衣スペースを1.25坪確保。洗面台は人造大理石カウンターが美しいトクラスの「EJ」900サイズを採用。洗濯機をセットしても余りあるスペースです。
念願の茶室を新設!
T様のご趣味は長年習っていらっしゃる「茶道」です。今回のリフォームで以前からご希望されていたお茶室を新設しました。縁側付きのゆったりとした8帖間に炉を切り、お客様を接待できる立派なお茶室が完成しました。
屋根と外壁を一新して新築のような外観に!
瓦屋根をガルバリウム鋼板屋根に葺き替え、外壁にはデザイン性のあるサイディングを貼りました。これまでの「和」のイメージを一新し、重厚感のある“洋館”に生まれ変わりました。植木が育ち過ぎたお庭も整備し、3台分のカースペースを確保する事ができました。どこから見ても立派な“新築”です。
施工前
担当者より
関連施工事例
-
自然光を採りこんだ明るい住まいへとフルリノベーション
八王子市 N様 費用:約2460万円
N様は弊社ホームページをご覧になり、お問い合わせくださいまし…

-
古き良き時代の面影を遺す、古民家風デザインリノベーション
昭島市 K様 費用:約1960万円
築60年ほどのK様邸。奥様のご実家で経年による老朽化が進んで…

-
劇的に変わるフルリノベーション!耐震強度と断熱性も飛躍的に向上!
八王子市 I様 費用:約2180万円
I様はSUUMOリフォームを通じてお問い合わせいただいたお客…

-
実家の二階を“ときめき”を感じる素材でリノベーション!
日野市 K様 費用:約1200万円
ご主人のご実家に移り住むことをきっかけにリフォームを計画され…
























































T様 この度は全面リフォームと外構工事を当社にお任せ下さりありがとうございました。T様のご家族とワンちゃんが快適に暮らせる素敵なお家になりましたね。当社日野支店ショールームで「スイス漆喰」や「珪藻土」をご覧になり、LDKや和室に使って頂き本当に嬉しいです。先日お伺いした際も優しくお迎え下さり、T様と私そしてワンちゃんの3人(?)で記念撮影をさせて頂きました。本当に嬉しそうなお顔を拝見し、私も心からホッと安心致しました。これからも何か気になる事がございましたら、お気軽にご連絡下さい。いつでもすぐにお伺い致します。ご家族の皆様がお幸せに暮らせますよう、心よりお祈り申し上げます。 プランナー・日野支店店長 小宮 佑実