一級建築士事務所エンラージ|八王子市・日野市を拠点に価値のあるリノベーション&リフォームをご提案いたします
“昭和の家”をおしゃれに “up to date”!
| お名前 | B 様 | 費用 | 約1130万円 |
|---|---|---|---|
| 工事内容 | 耐震補強を含むフルリノベーション | ご住所 | 八王子市 |
| 工期 | 約2.5ヵ月 | 間取り | 1LDK+WIC |
長年空き家だったご主人様の実家をご夫婦で住めるように全面リフォームしたいというご希望でした。築40年を超えていた建物は耐震性も不安の一つだったため、今回のリフォームを機に内部スケルトンまで解体して必要な箇所に耐震補強を施しながら、B様が希望する間取りに変更。また耐震補強工事は八王子市の居住環境整備補助金も利用することができました。建物の外も中も見違えるほどきれいに生まれ変わりました。
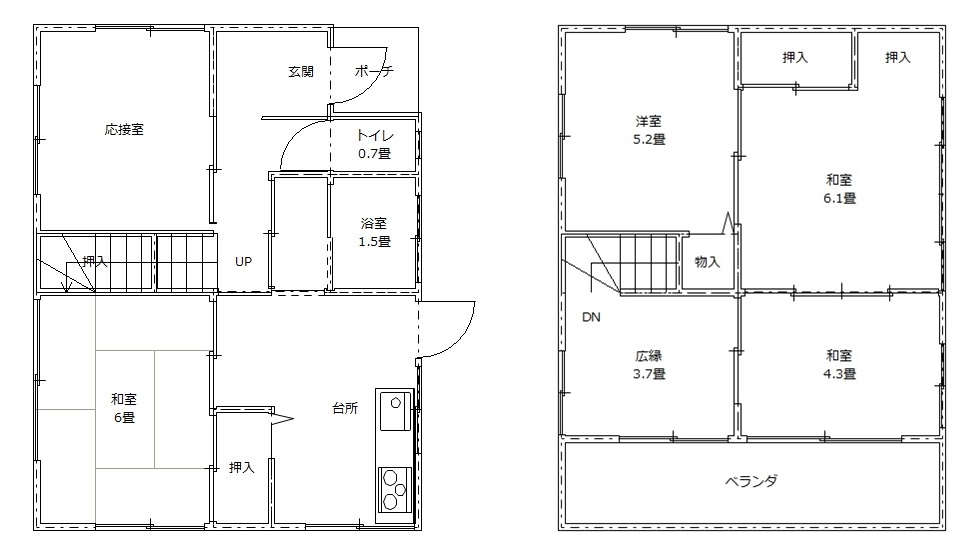
間取り図
1階は和室とキッチンの間の壁を取り除き、LDKとして広い空間にしました。耐震上どうしても抜けない柱と新しく加えた筋交いは、黒く塗装して空間のアクセントに仕上げました。光が差し込まない1階のLDKのため、2階の部屋をひとつなくして吹き抜けにしました。
洋室をWICに作り替えました。季節物や洋服などあらゆる物が収納できます。透湿と防カビ効果のある黒い機能性クロスとロック風の壁クロスで仕上げました。WICでも大胆なクロスを採用したところがB様らしいです。
担当者より
関連施工事例
-
自然光を採りこんだ明るい住まいへとフルリノベーション
八王子市 N様 費用:約2460万円
N様は弊社ホームページをご覧になり、お問い合わせくださいまし…

-
古き良き時代の面影を遺す、古民家風デザインリノベーション
昭島市 K様 費用:約1960万円
築60年ほどのK様邸。奥様のご実家で経年による老朽化が進んで…

-
劇的に変わるフルリノベーション!耐震強度と断熱性も飛躍的に向上!
八王子市 I様 費用:約2180万円
I様はSUUMOリフォームを通じてお問い合わせいただいたお客…

-
2階建てを平屋にリフォーム!減築で末永く快適に暮らせるお住まいが完成!
八王子市 S様 費用:約2780万円
S様はSUUMOリフォームを通じてお問合せをいただいたお客様…















































好みがはっきりされていたB様。自分たちの好きなインテリアに囲まれて生活したいという想いが形となり実現した今回のリフォーム。完成した現場を見たときには、想像以上の仕上がりに感動しました。色彩センスが抜群なB様との内装の打合せはとても楽しかったです。先日お邪魔させていただきましたが、家具や小物が飾られて、さらに素敵な家になっていました。さすが!を連呼してしまいました。B様に大変喜んでいただけた事は工事に係わってきたチーム全員にとってもこの上ない喜びです。ありがとうございました! プランナー伊藤