一級建築士事務所エンラージ|八王子市・日野市を拠点に価値のあるリノベーション&リフォームをご提案いたします
イギリス人のご主人が絶賛!“和”を生かしたフルリノベーション
| お名前 | M 様 | 費用 | 約1930万円 |
|---|---|---|---|
| 工事内容 | フルリノベーション | ご住所 | 国立市 |
| 工期 | 約3ヵ月 | 間取り | 4LDK+WIC |
M様はご主人がイギリス出身の方で、お国柄もあり家に対してとても強いこだわりがありました。当社の一級建築士、女性プランナー、現場監督、各分野の職人が、何度も打合せを重ねながら、M様のご要望にお応えできるよう精一杯努力しました。コミュニケーションの難しさから行き違いもありましたが、最後はご夫婦とも大満足の出来栄えで、笑顔のお引渡しとなりました。
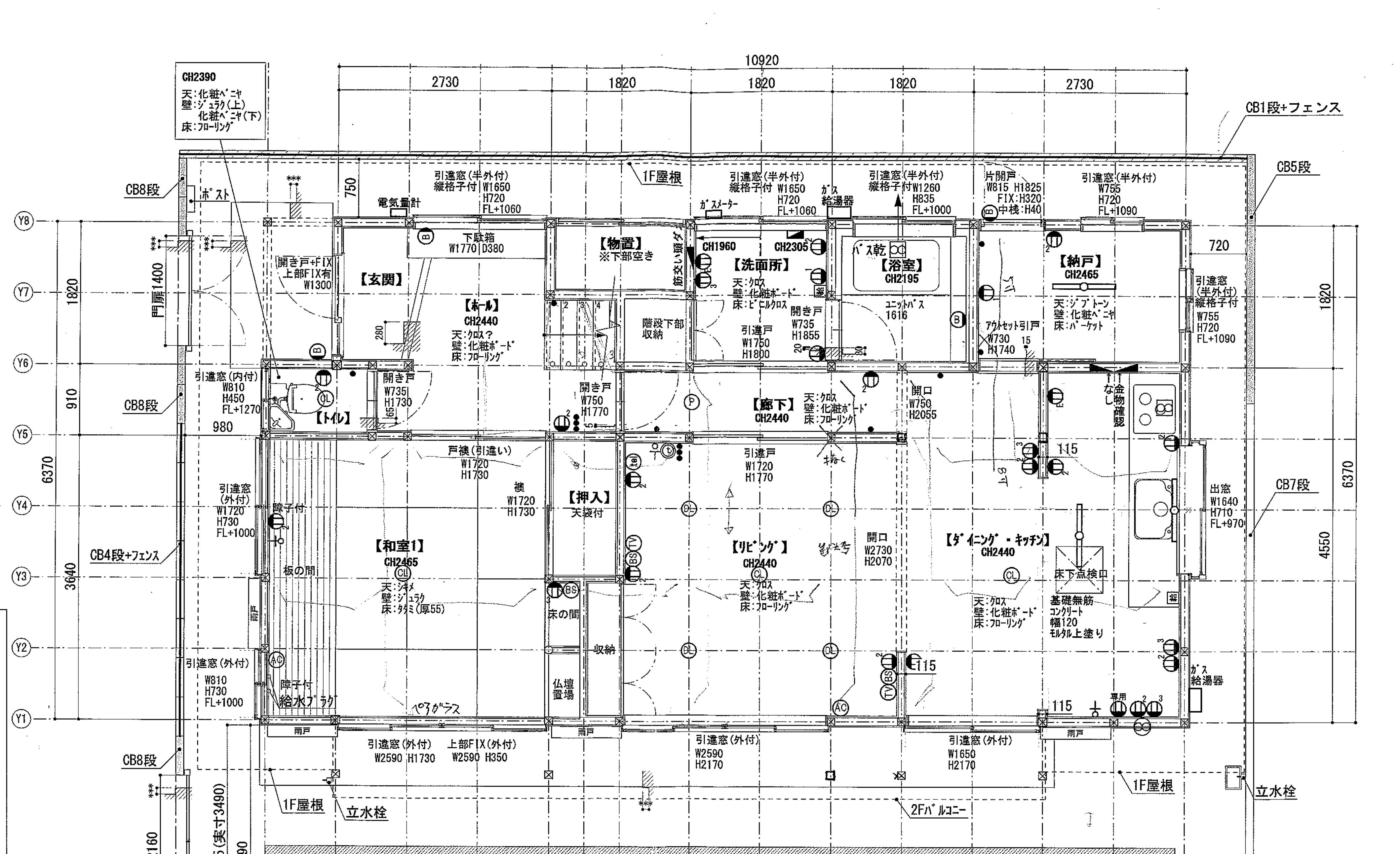
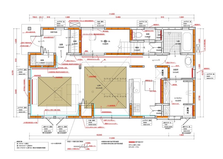
間取り図
木の温もりに溢れるリビングダイニング
床はチェリーの突板フローリング、壁はスイス漆喰のクリーム色で仕上げました。キッチンは壁付けから対面キッチンに変更し、リビングと隣接したワーキングスペースも作りました。
和の雰囲気は生かしつつ、畳からフローリングに変更
“和”に対する強いこだわりをお持ちのK様。壁も真壁のまま残しました。天井を高く上げ、既存の梁や火打ちをあらわしにしてアクセントにしています。扉もフローリングと同じチェリー柄で揃えました。
無垢の扉のキッチン
水廻りメーカーのキッチンを全て見比べてM様の理想に一番近かったのは、ウッドワンの無垢の扉のキッチン“スイージー”でした!キッチンの間口は2.7m、さらにシンク横に作業スペースを造作しました。
担当者より
関連施工事例
-
新築を超えた!中古購入リノベーション!
八王子市 I様 費用:非公開
I様は当社ホームページよりお問い合わせいただいたお客様で、中…

-
中古戸建てをライフスタイルにマッチした開放的な間取りにリノベーション
国立市 M様 費用:約1370万円
M様は、購入した中古戸建てを開放的な間取りでお子様やワンちゃ…

-
“木・水・石”をテーマにデザインしたこだわりのセカンドハウスリノベーション
稲城市 A様 費用:約2060万円
A様はスーモカウンターよりお問い合わせいただきました。セカン…

-
ジャパンディなマンションフルリノベーション
八王子市 A様 費用:約1300万円
A様は当社のInstagramをご覧になり、当社主催の「八王…












































M様、とても感動的なアンケートをいただきましてありがとうございました。エンラージのスタッフ、職人、仕事すべてを高く評価して下さり、『難題に対してもこれまでの経験から不可能を可能にしてくれました』と感謝のお気持ちを書いていただきました。当社の各職人の名前まで上げて感謝のお気持ちを書いていただき、大変嬉しく思いました。当社の強みはやはり、この職人までを含めたチーム力だなと実感した現場でした。このチーム力が不可能なことを可能にするのだと思います。 プランナー二重作