一級建築士事務所エンラージ|八王子市・日野市を拠点に価値のあるリノベーション&リフォームをご提案いたします
鉄骨造(S造)のリフォームもエンラージにおまかせください!
公開日:2025/4/8
こんにちは!
八王子市のリフォーム&リノベーションの専門店、エンラージ北野支店の山下です![]()
📖 北野支店の詳細はこちら 📖
今日は「 軽量鉄骨 リフォーム 」について、当社で施工した事例も交えてご紹介します!
目次
軽量鉄骨造とは?
鉄骨造とは、建物の構造部(柱や梁)に鋼製の部材を用いてつくる工法のこと。
一般的に、厚みが6mm以上の鋼材を重量鉄骨、それ以下のものを軽量鉄骨と呼びます。
大手のハウスメーカーのなどで鉄骨造を採用しているケースも多く、鉄骨造は木造などに比べて材料や接合部分の強度が安定しているため、広いスパンに梁をかけられるのでお部屋などのスペースを広くをとることができるという特徴もあります。
軽量鉄骨リフォームの特徴
鉄骨造の建物は構造部の柱や梁は移動することや取り払うことができないので、木造の住宅に比べてリフォームをするときの制約が多いことに加えて、
大手のハウスメーカーなどの住宅は、独自工法で建てられているため難易度が高い場合があります。
また、建てたハウスメーカーにリフォームを依頼する場合には、費用が高額になるとこも多いようです![]()
当社では、非木造の施工実績も豊富なので、他社では「できない」と言われた工事でも実現が可能なことが多くあります!
もし希望通りにできないことがあった場合でも、お客様のご希望に近いかたちでご提案をさせていただいております![]()
さらに、当社では定型のプランやパック料金などは設けていないので、お客様それぞれの暮らしとライフスタイルに寄り添ったオリジナルのプランを実現できます。
それでは、当社で施工した事例をご紹介していきます!
軽量鉄骨リフォームの施工事例
ハウスメーカー築 軽量鉄骨造の中古戸建を全面リノベーション!
| お名前 | N 様 | 費用 | 約1880万円 |
|---|---|---|---|
| 工事内容 | 戸建全面リノベーション | ご住所 | 八王子市 |
| 工期 | 約3ヵ月 | 間取り | 3LDK+S |
N様は、お子様の成長に伴いお住まいだったマンションが手狭になったため、中古の一戸建てを購入したので全面リフォームをしたいとご希望で、軽量鉄骨造の間取り変更を伴う全面リフォームのため難しい工事ではありましたが、一級建築士が作成したプランや女性プランナーによるデザイン提案・当社の施工力を全面的にご信頼いただき、お任せいただきました。
間取り変更で生活スタイルに合わせた住まいを実現!「いまどき風」をテーマにデザインにもこだわり、ご家族が安心して暮らせる心地よい住まいが完成しました!
間取り変更でオンリーワンの住まいを実現
キッチンの位置移動や洗面室の拡張など、暮らしに合う間取りへと変更。
和室も洋室化や、使用頻度の少ない勝手口は上げ下げ窓に交換なども行なっています。
なにかと制約の多い鉄骨造でしたが、一級建築士のプランでご家族の生活スタイルに合うお家に生まれ変わりました。
こだわりのLDK
LDKは、『ひろびろ』『開放的』『いまどき風』をテーマにデザインをご提案。
キッチンはペニンシュラタイプを採用して開放的に。ダイニング側は収納になっているので便利に使えます。
内装は、ナチュラルな空間にブルーのアクセントクロスとタイルをあわせて、おしゃれに仕上げました。
充実した収納スペース
キッチン背面のパントリーは、調理器具や食品を大容量に収納できるようにスペースを拡張。
1階の洋室にはウォークインクローゼットを新設しています。
2ウェイの洗面脱衣室
洗面室には、玄関ホール・1階洋室のどちらからもアクセスできるように入口を2ヵ所設けました。
可動棚や作業カウンターも設置して、使い勝手のよい洗面室です。
今風のシャープな外観
外壁は、グレー系のカラーで塗装し、「いまどき風」の外観に。玄関ドアとの相性もばっちりです!
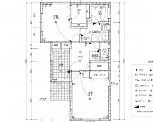
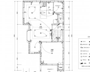
間取り図
Before
After
After写真
施工前
≪ その他の軽量鉄骨リフォームの関連BLOGはこちら ≫
ご相談はこちらから
軽量鉄骨リフォームについての見積り依頼、ご相談は下記のリンクから![]()
★自宅で現地調査を兼ねての ご相談はこちら![]()
★まずは、店舗で相談する![]()
ぜひ、お気軽にお問い合わせください!
☆★☆★☆★☆★☆★☆★☆★☆★☆★☆★☆★
【 一級建築士事務所 ENLARGE 】
八王子本店:0120-512-355
.(中央線西八王子駅より徒歩5分)
北野支店 :0120-186-202
.(京王線北野駅より徒歩4分)
日野支店 :0120-186-203
.(中央線日野駅より徒歩3分)
お問合せ:https://www.enlarge.tokyo/contact
来店予約:https://www.enlarge.tokyo/raiten
資料請求:https://www.enlarge.tokyo/book
☆★☆★☆★☆★☆★☆★☆★☆★☆★☆★☆★
北野店
やました









二松学舎大学出身、八王子市在住。実家が屋根屋を営んでいたため子供の頃から建築の仕事に興味を持ち、2016年12月エンラージ北野支店に入社。できる事は何でもやるという姿勢で、積極的に様々な仕事に取組み急成長。常に明るい笑顔で、広報とショールームアドバイザーを担当。入社3年目に電気屋さんと電撃結婚して、翌年には男の子を出産。その後、産休や育児休暇を経て復職し、子育てと仕事の両立を図っている。会社の広報責任者として、SNSを中心に会社の方針や取り組みを発信中。ホームページは常に新鮮なので、お客様のほとんどはホームページを見ての反響。時短勤務ながら、貢献度がとても高いエンラージの看板娘。