一級建築士事務所エンラージ|八王子市・日野市を拠点に価値のあるリノベーション&リフォームをご提案いたします
間取り変更&フルリノベーション!
公開日:2023/12/14
こんにちは!![]()
八王子市のリフォーム&リノベーションの専門店、エンラージ北野支店の山下です![]()
![]()
📖 北野支店の店舗紹介はこちら 📖
今日は、間取り変更で理想の暮らしを実現した
フルリノベーション実例について、ポイント毎にご紹介します![]()
![]()
目次
間取りを大きく変更!理想の暮らしを実現するフルリノベーション
日野市のT様邸![]()
「妻や子どもたちが楽しく暮らしやすく、
家族団欒できるような家にしてほしい!」
というご主人様からのご依頼で
ご家族皆様にとっての理想の家になるよう、
フルリノベーションを行ないました!![]()
![]()
これからさらに成長するお子様たちのことも考え、
閉鎖感を感じていた間取りを「開放的に」
暮らしにくさを感じていた部分をすべて一新して
「使いやすく好みの空間に」
そして、「今後も快適に安心して暮らせる環境」へと
リニューアルしました![]()
![]()
≪リノベーション概要≫
●工事内容:一戸建てのフルリノベーション
●費用:約1720万円
●工期:約4ヵ月
●間取り:3LDK
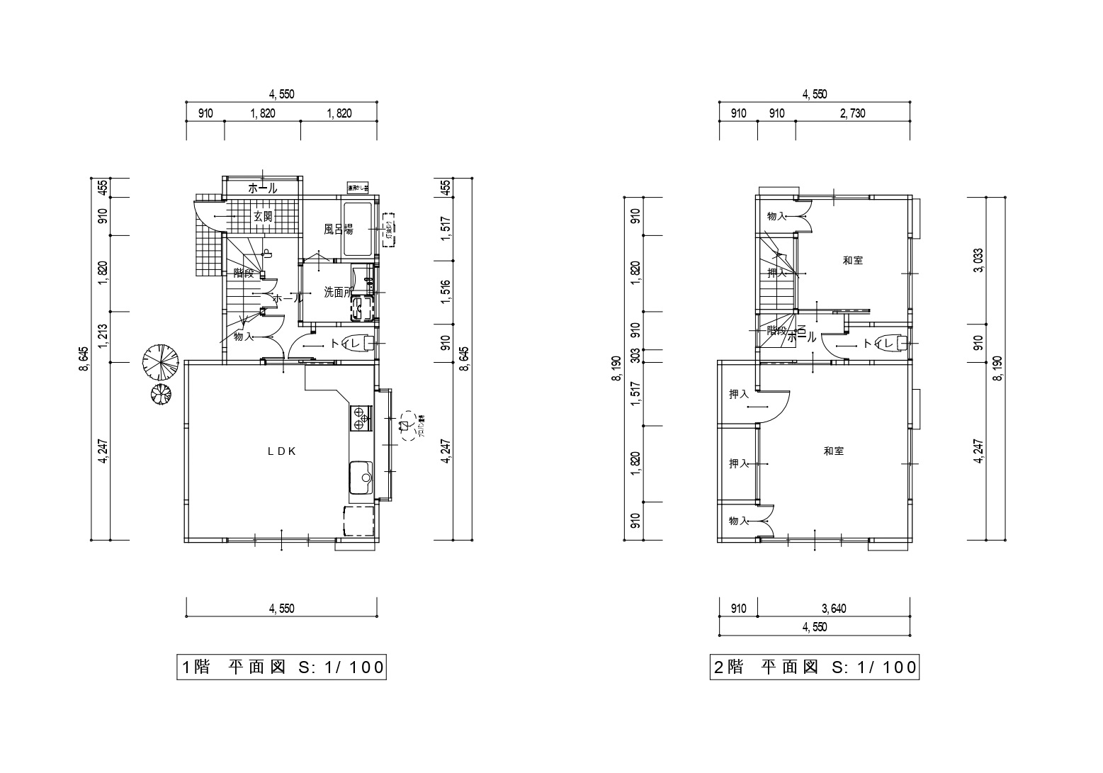
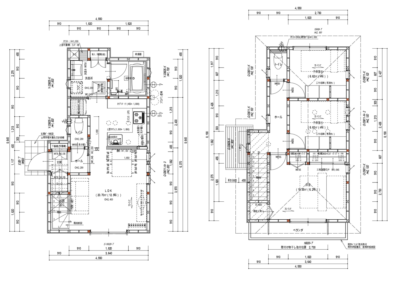
大胆な間取り変更
玄関の位置から水廻りの配置などを大胆に変え、
閉鎖的だった間取りを開放的な間取りへと変更しました![]()
Before 図面![]()
After 図面![]()
LDK Before![]()
LDK After![]()
キッチン Before![]()
キッチン After![]()
キッチンは、TOTO「ザ・クラッソ」![]()
コの字型のタイプを採用し、
家族の様子を見ながら家事がしたい奥様のご希望も叶えた対面キッチンです![]()
それぞれの空間と家事動線の確保
広々としたLDKのなかでも、
「食事をする空間」・「くつろぐ空間」のスペース分けが
自然とできるように空間の形状などにも配慮![]()
![]()
水廻り設備を一ヵ所に集中させ、家事のしやすい動線も確保しました!![]()
家族と必ず顔を合わせられるリビングイン階段
家族みんなが自然と顔を合わせられるよう、
階段は、リビングを通って2階へと上がれる位置に配置!![]()
階段下のスペースは収納として活かし、空間を無駄なく活用できます。
急だった階段も架け替えによって安全になりました![]()
![]()
階段 Before![]()
階段 After![]()
断熱性能UP&バリアフリーな空間
サッシ交換や断熱材の充填(床下から壁・屋根裏まで)を行ない
断熱性能が格段にUP!
LDには床暖房も設置し辛い寒さも軽減します!
玄関や水廻りの段差も解消してバリアフリーで安全性もUP!![]()
![]()
水まわりのBefore&After
水まわりは、当社のプランナーと一緒に
メーカーショールームをまわり、お気に入りの設備に入れ替えました![]()
浴室 Before![]()
浴室 After![]()
浴室は、TOTOの「サザナ」1616(1坪)サイズ
トイレ Before![]()
トイレ After![]()
トイレは、LIXIL「アメージュZ」![]()
洗面台 Before![]()
洗面台 After![]()
洗面台は、トクラスの「EJ」![]()
暮らしづらさを感じていた点を解消し、T様ご家族の暮らしにあった住まいが完成!!![]()
詳しい実例紹介は、下記のページをご覧ください![]()
![]()
リノベーション実例はこちら
『 フルリノベーションのメリットを最大活用!暮らしに合う理想の家 』
家族の状況の変化や、生活スタイルが変わった・・・等で
暮らしづらくなってしまったお家でも、
間取り変更で暮らしやすいお家にリニューアルが可能です!!![]()
![]()
ぜひ、お気軽にお問い合わせください!![]()
![]()
[前回の記事]ツーバイフォー住宅(2×4住宅)のリノベーション!
今後も、エンラージだからできるリノベーションの実例について
ご紹介していきます!!
おたのしみに!![]()
![]()
☆★☆★☆★☆★☆★☆★☆★☆★☆★☆★☆★
【 一級建築士事務所 ENLARGE 】
八王子本店:0120-512-355
.(中央線西八王子駅より徒歩5分)
北野支店 :0120-186-202
.(京王線北野駅より徒歩4分)
日野支店 :0120-186-203
.(中央線日野駅より徒歩3分)
お問合せ:https://www.enlarge.tokyo/contact
来店予約:https://www.enlarge.tokyo/raiten
資料請求:https://www.enlarge.tokyo/book
☆★☆★☆★☆★☆★☆★☆★☆★☆★☆★☆★
北野店
やました




























