一級建築士事務所エンラージ|八王子市・日野市を拠点に価値のあるリノベーション&リフォームをご提案いたします
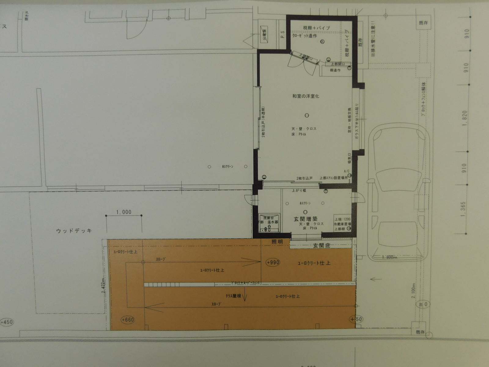
玄関増築とスロープ外構
公開日:2023/12/13
こんにちはー!
本日は、先日完工致しました八王子市:J様邸の
玄関増築とスロープ外構をご紹介します。
リビングに接する和室を洋室化して
庭先に専用玄関を増築しました。
3.7㎡程の小規模な増築では有りますが、
建築確認を要する準防火地域でした。
そのため、建築確認の申請から完了検査まで
様々な手続きが必要な現場でしたが
滞りなく完了しました。
玄関扉は、YKKapのアウトセットスライドドアを採用しました。
雨の日でも濡れずに部屋から車まで
車いすが移動できることがテーマです。
スロープの仕上には、デザイン性とスリップ防止のため
ユーロクリートを施しました。
他にも色々盛り込みましたが、
次の機会に・・・ 八王子店:すずきでした。
余談ですが、J様邸の近くの公園でキジを見つけました。
初対面でしたのでとても感動しました。
思い出に残る良い現場となりました。
*=======*========*=======*=======*=======*=======*
【 一級建築士事務所ENLARGE 】
八王子本店:0120-512-355 (中央線西八王子駅より徒歩5分)
北野支店 :0120-186-202 (京王線北野駅より徒歩4分)
日野支店 :0120-186-203 (中央線日野駅より徒歩3分)
お問い合わせフォーム:https://www.enlarge.tokyo/contact
来店予約:https://www.enlarge.tokyo/raiten
資料請求:https://www.enlarge.tokyo/book
*========*========*=======*=======*=======*=======*
















