一級建築士事務所エンラージ|八王子市・日野市を拠点に価値のあるリノベーション&リフォームをご提案いたします
いつまでも美しい自然素材を使用したマンションのフルリノベーション
| お名前 | K 様 | 費用 | 約1800万円 |
|---|---|---|---|
| 工事内容 | マンション全面リノベーション | ご住所 | 府中市 |
| 工期 | 約4ヵ月 | 間取り | 2LDK+ウォークインクローゼット |
K様はホームプロからのお問い合わせをいただき、ご親族が住んでいたマンションに移り住むため、全面的なリフォームをお任せ下さいました。築41年で空き家の状態が長いことから劣化や老朽化を心配されていましたが、フルリノベーションで新築のモデルルームのように生まれ変わりました。ご新居での生活をどのようにしたいのか、どんな空間で過ごしたいかを丁寧にヒアリングし、プランに反映させていただきました。K様からのご要望に+αで家事動線を考慮した間取りやライフスタイルに合った収納計画、自然素材などのご提案をしたところ、「伝えていない要望まで汲み取ってくれた」と大変お喜びいただきました。
デザインパース
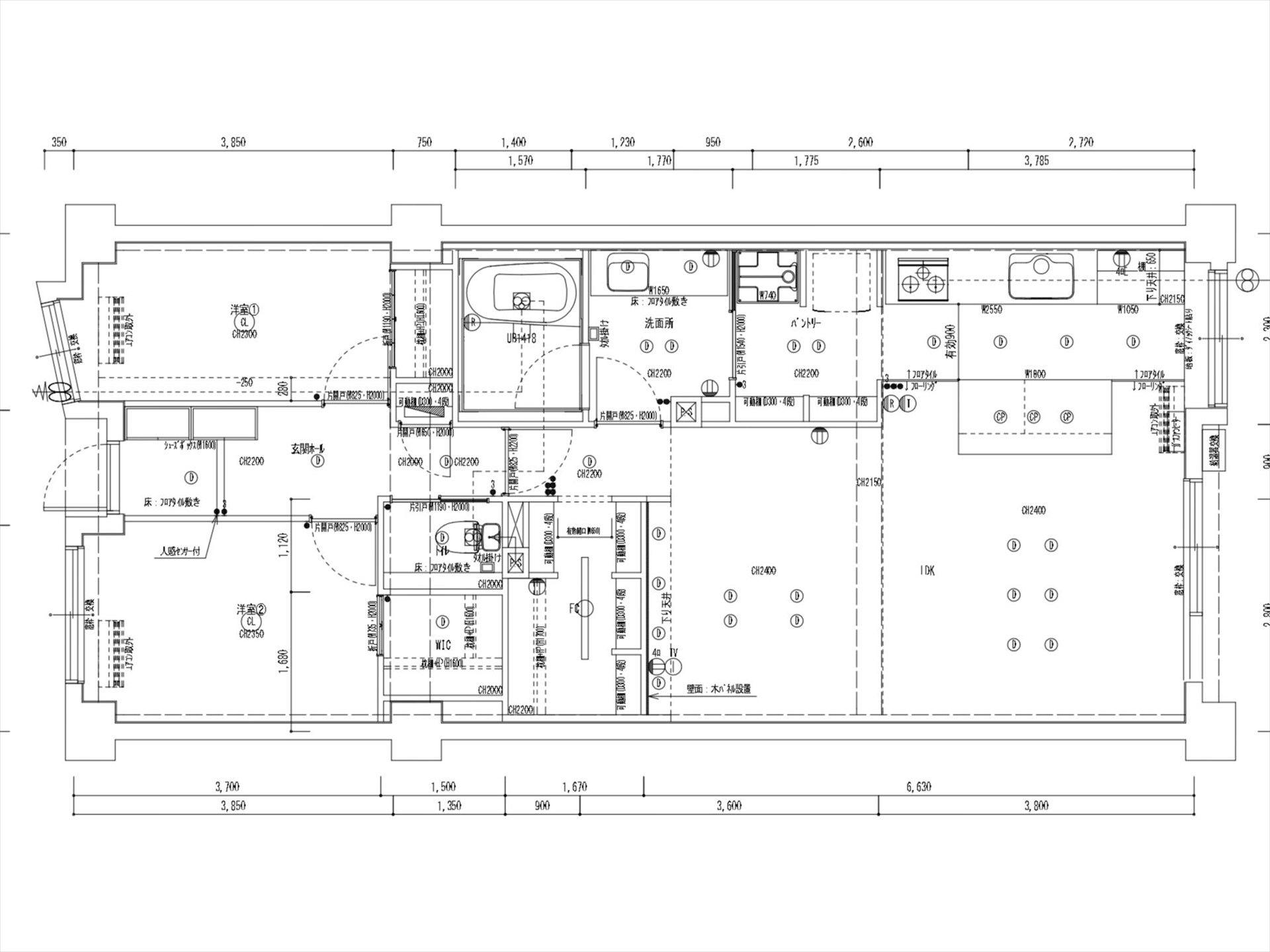
間取り図
ミディアムカラーの内装
床やアクセントウォールにはチェリー、内装ドアにはチェリーの風合いに近いミディアムカラーを使い、温かみのある落ち着いた大人の空間に仕上げました。
家事が楽になる回遊動線
キッチン・洗面脱衣所・パントリー間を行き来できる回遊動線を実現。家事効率がグッと向上します。キッチンのアイランド収納もぐるっと回ることができ、ダイニングからのキッチンアクセスがしやすくなりました。
施工前
担当者より
関連施工事例
-
ジャパンディなマンションフルリノベーション
八王子市 A様 費用:約1300万円
A様は当社のInstagramをご覧になり、当社主催の「八王…

-
中古マンションデザインリノベーション
八王子市 T様 費用:約1300万円
T様はスーモカウンターからのご紹介で、中古購入したマンション…

-
中古マンションを購入して自分好みにデザインリノベーション
八王子市 O様 費用:約1130万円
O様は中古購入したマンションの間取り変更を伴う全面的なリノベ…

-
動線を重視した間取りを実現!理想の暮らしを叶えるマンションリノベーション
日野市 T様 費用:1120万円
お子様の独立や定年退職後の生活を見据えて、ご自宅のリフォーム…

































































K様
この度はご新居の工事をお任せいただき誠にありがとうございます。快適な新生活のスタートがきれるよう、初回のプラン作成からご提案、施工とチーム一丸となって努めてまいりました。ファーストプランご提案の際に「どうしてこういう間取りにしたいと考えていたのが分かったのですか?」と、プランを喜んでいただけて、とても嬉しかったです。
LDKではチェリーの床・アクセントパネル、漆喰、キッチンのオーク無垢扉などの自然素材を重ねることで、時代に流されない上質な空間を実現。これまでの面影とは打って変わって、明るく開放的な雰囲気に包まれた空間に生まれ変わりましたね。間取りにつきましては、くつろげる空間の実現はもちろんのこと、家事の効率性と収納のしやすさを考えてご提案・施工いたしましたので、日々の生活がより過ごしやすくなるかと思います。
装いも新たに生まれ変わったお住まいで、木の温もりに癒やされる、穏やかなひとときを心ゆくまでお楽しみください。今後ともどうぞよろしくお願いいたします。
プランナー川崎