一級建築士事務所エンラージ|八王子市・日野市を拠点に価値のあるリノベーション&リフォームをご提案いたします
昭和のアパートを素敵なご自宅にリノベーション
| お名前 | M 様 | 費用 | 約670万円 |
|---|---|---|---|
| 工事内容 | アパートを自宅にリノベーション | ご住所 | 府中市 |
| 工期 | 約2ヶ月 | 間取り | 1K+1K → 2LDK |
M様はホームプロを通じてお問合せ頂いたお客様です。お父様が所有するアパートを改装して、ご夫婦の新居としてリノベーションしたいというご希望でした。ワンルームの賃貸用アパートの2室を1室にするプランを気に入って頂き、さっそく工事をご依頼下さいました。それほど広くはない限られた空間を、いかに暮らしやすく改装するか。そこをお客様と共に考えて作り上げたお家です。LDKと和室の間仕切り戸は、天井までの特注サイズで作り、キッチンの吊り戸棚の高さ等、細部にわたって工夫しました。完成後は、実際の広さより空間の広がりを感じられるようにしています。奥様とご主人様の共通の趣味であるアニメキャラクターのフィギュアが映える、素敵な新居に生まれ変わりました。
デザインパース
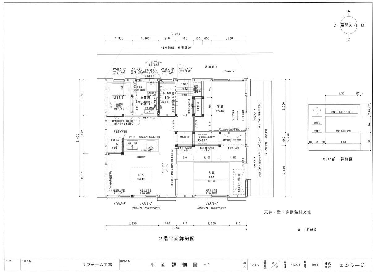
間取り図

アパートの2部屋を繋げて住居に改装
2階の2部屋を1つの住居に間取り変更しました。内部をスケルトン状態に解体してから、全面的にリノベーションしました。

解放感を感じる空間づくり
LD空間に制限がある中で、解放感を感じる空間づくりを心掛けました。この家具をどうしても使用したい、などお客様によるご希望はそれぞれです。ご希望にできるだけ添いながら、最大限の工夫をこれからもしていきたいと思います。

趣味嗜好に合わせたデザイン
お手持ちのフィギュアを飾ったときに、素敵な空間になるようコーディネート提案をしていきました。西海岸風と海賊的な要素のミックスを意識しています。

窓、外壁部にも工夫
窓はペアガラスに全て交換しました。サッシ屋さんの提案で外壁の補修がいらないカバー工法を採用し、価格を抑えています。窓を新設した所は外壁をモルタルで補修して、現況と同じ色の塗装で仕上げています。
施工前
担当者より
関連施工事例
-
「家事ラク・モノトーン」がテーマのマンションデザインリノベーション
昭島市 K様 費用:約1040万円
K様は、ホームページをご覧になり、週末開催イベント『リノベー…

-
新築を超えた!中古購入リノベーション!
八王子市 I様 費用:非公開
I様は当社ホームページよりお問い合わせいただいたお客様で、中…

-
二世帯住宅の1階をフルリノベーション
日野市 N様 費用:約1960万円
N様は当社のホームページをご覧になり、お問い合わせくださいま…

-
住みやすさと非日常感をテーマにしたデザインフルリノベーション
相模原市 A様 費用:約2940万円
A様はホームプロを通じてお問い合わせいただいたお客様でした。…











































この度は弊社にアパートのリノベーション工事をご依頼下さり、ありがとうございます。完工時にとてもお喜び頂けて、心から嬉しく思いました。打ち合わせ日の調整や職人さんへのご配慮など、奥様にはとてもお気遣い頂きました。ご夫婦ともお仕事をされている中でのお打合せや引っ越しは、とてもご苦労が多かった事と思います。これから新しいお家で、ゆっくり年末年始を過ごせるといいですね。エンラージ日野支店 田中 萌乃