一級建築士事務所エンラージ|八王子市・日野市を拠点に価値のあるリノベーション&リフォームをご提案いたします
憧れの平屋を自然素材の注文住宅で!
| お名前 | H 様 | 費用 | 約2580万円 |
|---|---|---|---|
| 工事内容 | 平屋の新築工事 | ご住所 | 青梅市 |
| 工期 | 約3ヵ月 | 間取り | 3LDK |
青梅市の自然豊かな広大な敷地に、平屋を新築することになったH様。設計から建築確認申請、内外装のコーディネート、もちろん施工に至るまですべてを当社にお任せいただき、フルオーダーの注文住宅が完成しました。
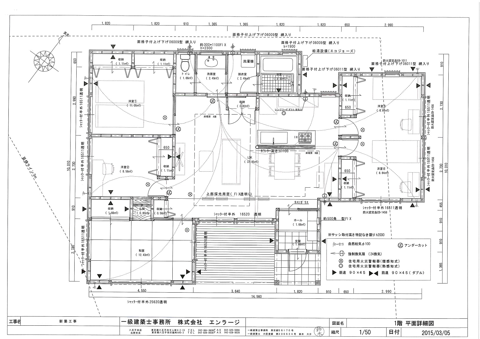
間取り図
勾配天井で開放感あふれるLDK
温かみのある無垢のパインフローリングに、壁は調湿効果のある珪藻土で仕上げたLDK。家族みんなで囲めるアイランド型キッチンは、トクラスの「Bb」I型・2550サイズ。
内装はとことん自然素材
内装には自然素材をふんだんに使用。将来2つに分けられる設計の子ども部屋や、デザインクロスでアクセントを効かせた寝室も、建具やフローリングは無垢のものを使用しています。
外観はシンプルにコーディネート
外壁材は木質素材と調和するシンプルなサイディングを貼って、スタイリッシュにコーディネートしました。デザイン性の高いおしゃれな平屋が完成しました。
施工前
担当者より
関連施工事例
-
女性プランナーの“夢”がたくさん詰まった“ドリームハウス”♪
立川市 M様 費用:約2000万円
私の家“立川ドリームハウス”が完成しました! 今から4年前、…

-
延床面積202㎡(61坪)の大型二世帯住宅新築(建て替え)工事
八王子市 U様 費用:約4670万円 (外構工事含む)
U様は当社のHPを見てご来店頂いたお客様です。当初はご両親と…

-
ナチュラルでかわいい新築(注文)住宅
八王子市 F様 費用:2280万円
F様は、お子様の出産をきっかけに奥様のご実家の隣に新築を建て…

-
ご家族の夢が詰まったこだわりの注文住宅
八王子市 F様 費用:約2900万円
2番目のお子様の出産を機に、ご実家の敷地内に新築を建てること…












































自然が豊かな周辺環境にマッチする平屋の注文住宅をお任せ頂き、本当にありがとうございました。お引き渡し後しばらくしてご訪問した際の、ご家族の笑顔が忘れられません。いつまでもお幸せに暮らせますよう、心よりお祈り申し上げます。