一級建築士事務所エンラージ|八王子市・日野市を拠点に価値のあるリノベーション&リフォームをご提案いたします
自然素材にこだわった中古のデザインリノベーション
| お名前 | U 様 | 費用 | 約1200万円 |
|---|---|---|---|
| 工事内容 | 1階のフルリフォーム | ご住所 | 八王子市 |
| 工期 | 約2.5ヵ月 | 間取り |
築35年の中古住宅をご購入されたU様。1階のフルリフォームがご希望でした。現場が当社の北野支店とお近くだったというご縁もあり信頼してお任せいただきました。間取りを大幅に変更してレイアウトを一新。さらに自然素材にこだわりが強かったU様のために、無垢の床やスイス漆喰などご提案し、心地よい上質な空間を実現することができました。
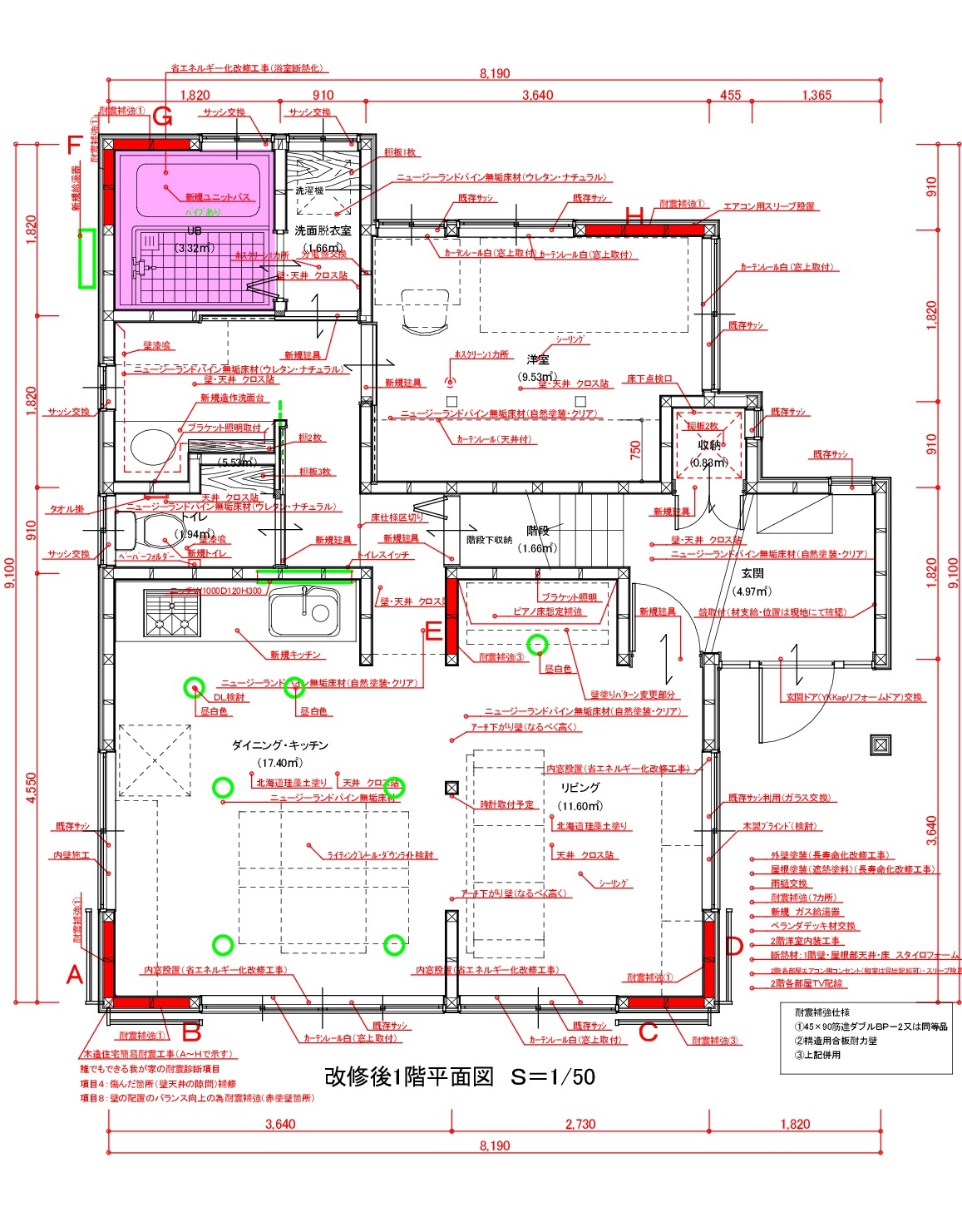
間取り図
自然素材にとことんこだわったLDK
もともと二部屋だったDKと和室の隔たりをなくし、ゆったりとくつろげる広さのLDKに大変身!床は触り心地のよい無垢のパインフローリング、壁には調湿効果のあるスイス漆喰、さらに天井にはオガファーザー(ウッドチップの入ったクロス)で自然素材にとことんこだわりました。
担当者より
関連施工事例
-
ジャパンディなマンションフルリノベーション
八王子市 A様 費用:約1300万円
A様は当社のInstagramをご覧になり、当社主催の「八王…

-
古き良き時代の面影を遺す、古民家風デザインリノベーション
昭島市 K様 費用:約1960万円
築60年ほどのK様邸。奥様のご実家で経年による老朽化が進んで…

-
劇的に変わるフルリノベーション!耐震強度と断熱性も飛躍的に向上!
八王子市 I様 費用:約2180万円
I様はSUUMOリフォームを通じてお問い合わせいただいたお客…

-
2階建てを平屋にリフォーム!減築で末永く快適に暮らせるお住まいが完成!
八王子市 S様 費用:約2780万円
S様はSUUMOリフォームを通じてお問合せをいただいたお客様…


































この度は中古購入後の1階全面リノベーションを当社にお任せいただき、ありがとうございました。U様が完成をとても楽しみにして下さり、そして完成を心から喜んで下さり、チーム一同とても嬉しく思います。こんな素敵なおうちは他にはないわね!と笑顔で言って下さったU様のお言葉が忘れられません。自然素材の心地よさを感じながら毎日の暮らしを楽しんでくださいね。