一級建築士事務所エンラージ|八王子市・日野市を拠点に価値のあるリノベーション&リフォームをご提案いたします
デザインにこだわったご実家全面リノベーション~水廻り編~
公開日:2026/2/19
みなさまこんにちは![]()
八王子市・日野市のリフォーム店
一級建築士事務所エンラージ日野支店の村松です🍒
先日ご紹介した『築45年の戸建て住宅全面リノベーション』
の続きの記事です!
前回のブログはこちらからどうぞ☺
本日は水廻り空間のご紹介です![]()
洗面
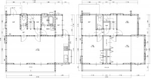
洗面室とお風呂の間取り変更を行いました。
Before
リフォーム前は廊下からのみの出入りで、
入口ドアとお風呂の入口ドアがあることで
空間を有効に活用できませんでした![]()
After
間取り変更をして洗面室の形を変えることで
洗面台を広く使えるようになり、
洗濯機も使いやすくなったと思います![]()
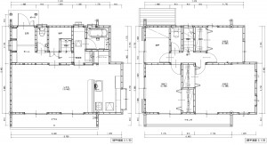
トクラス『EJ』
廊下とリビングどちらからも
アクセスできるようになり
家事効率がアップしました✨
また開き戸から引き戸に変更し
使いやすくなりました![]()
お風呂
Before
After
TOTO『サザナ』
リフォーム前より少しサイズアップして広くなり、
ゆったりとくつろげるお風呂へ。
断熱構造でお湯はり後4時間以上も
あたたかいという魔法びん浴槽の採用で
ご家族みんなが暖かいお湯に浸かれます
♨
トイレ
1階トイレ
Before
After
トイレ本体は既存利用です。
内装は新しくし、フィンレイソンの
アクセントクロスで北欧風デザインに![]()
おしゃれで素敵な空間に生まれ変わりました✨
棚を取り付けて収納スペースを確保✨
2階トイレ
After
LIXIL『アメージュ』
以上、水廻り設備のご紹介でした。
当社の施工エリア
八王子市、日野市、昭島市、立川市、国立市、国分寺市、
多摩市、町田市、あきる野市、福生市、稲城市
日野支店ショールームアドバイザー 村松 悠🍒
=======*========*=======*=======*=====
【 一級建築士事務所ENLARGE 】
八王子店:0120-512-355
(中央線西八王子駅より徒歩5分)
北野支店:0120-186-202
(京王線北野駅より徒歩4分)
日野支店:0120-186-203
(中央線日野駅より徒歩3分)
Cafe ENLARGE + SE design:0120-512-357
(中央線西八王子駅より徒歩5分)
お問合せ:https://www.enlarge.tokyo/contact
来店予約:https://www.enlarge.tokyo/raiten
資料請求:https://www.enlarge.tokyo/book
Instagram:https://www.instagram.com/enlarge.reform









八王子市出身、在住。白梅学園大学子ども学部卒業後、市内の幼稚園に勤務。約5年間幼稚園の先生をしていたが、結婚を機に退職。その後、実家をエンラージでリフォームした事をきっかけに、2022年9月よりエンラージ日野支店のショールームアドバイザーとして勤務。社交的な性格でスタッフからは「ハルちゃん」と呼ばれている。書道は二段、英検・漢検の有級者で華道もたしなむ多才な女性。 今年から会社の広報担当となり、4月からは初の異動で北野支店へ