一級建築士事務所エンラージ|八王子市・日野市を拠点に価値のあるリノベーション&リフォームをご提案いたします
戸建フルリノベーション 完工【間取り・内装編】
公開日:2026/2/1
みなさまこんにちは![]()
株式会社エンラージ 八王子本店 プランナーのいとうです![]()
戸建フルリノベーション 完工【水廻り設備編】に続き
本日は【間取り・内装編】をお送りいたします![]()
前回のブログはコチラからどうぞ![]()
![]()
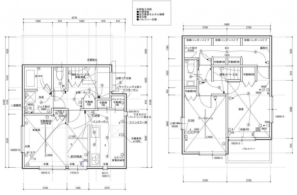
【施工前図面】
【改修図面】
1階
キッチンを大移動し対面化
不足していた収納力を補うためにパントリー新設や
耐震補強の都合、柱や壁が必要な部分は収納スペースとし
補強により、閉鎖的な空間や無駄なスペースが生まれないよう
ライフスタイルを考慮したプランとなっています。
2階
元々和室だった2部屋を洋室化し、ワークスペースと寝室に
北側は大胆にすべてWICに変更
廊下と主寝室どちらからも行ける2WAY仕様になっており
収納力、利便性も大きくUPしました![]()
【完工後:LDK①】
【完工後:LDK②】
水廻り設備や内装のベースカラーはホワイト
照明や窓にグレーやブラックのお色でアクセントを入れ
モダンな雰囲気でまとめています
【完工後:LDK③】
LDKの一面にはタイル風のアクセントクロスを採用し
メリハリある空間に
数社からサンプルを取り寄せ
窓枠と照明とも相性が良いクロスを探し、吟味した仕様です
【完工後:パントリー】
キッチン横にはパントリーを新設
ストック用品やお鍋、ホットプレート等の家電も
スッキリ収納可能です![]()
【完工後:玄関・ホール①】
【完工後:階段】
玄関まわり・階段も一新しています。
階段は昨年の法改正で、架け替え等の工事が難しくなってしまった為
階段専用の上貼り材で仕上げました
急勾配なので、手摺も使いやすい配置とし
手摺は丸型の手摺ではなく、ストレートタイプの手摺を採用し
スッキリとした雰囲気に
続いてお2階に…![]()
【完工後:ワークスペース①】
【完工後:ワークスペース②】
元々は和室だったお部屋を洋室化し
在宅でのお仕事が多い為、ワークスペースを新設
『非日常間』を出すために、内装はコンクリート打ち風クロスを採用
壁面に設置している照明あたりにデスクを置いてお仕事の予定です
スタジオみたいで仕事が捗りそうですね![]()
通常、住宅地では南側以外の小窓はくもりガラスにするケースが多いですが
疲れたときは小窓から空が見えるように
あえて透明ガラスにしています![]()
【完工後:寝室】
【完工後:寝室②】
寝室も元々は和室でした
寝室は映画やTVを見たり、寛ぎのスペースとして
天井に落ち着いたお色味のクロスや照明も位置や個数、照度も加味した仕様です
バルコニーに出る掃き出し窓は、1階屋根と屋根置きバルコニーの都合
どうしても跨ぎが出てしまう為、ステップを造作し出入りが楽になるよう計画
座ったり、お洗濯物カゴも置きやすいスペースになりました
【完工後:WIC①】
【完工後:WIC②】
北側洋室は約6畳の大容量WICに
コートやワンピース等の長物の衣類と
シャツやパンツ、カバンや帽子等
物の住所を決めて収納計画をしました![]()
姿見もあるので
お出かけ前のコーディネートもしっかり確認できます![]()
以上、戸建フルリノベーション 完工【間取り・内装編】をお送りいたしました![]()
築50年以上のお家も『新築』のように生まれ変わります![]()
ただいま、週末限定リノベ相談会も開催中![]()
ご実家や中古物件購入して、お家全体のリノベーション&リフォームを考え方![]()
インテリアコーディネーターや建築士の資格を持った
リノベーションのプロと気軽に話ができる相談会です
下記より、どうぞお気軽にお問合せください![]()
![]()
八王子本店 プランナー いとう![]()
・二級建築士 ・インテリアコーディネーター
・2級エクステリアプランナー ・猫との住まいアドバイザー
*======*=======*======*======*======*
【 一級建築士事務所ENLARGE 】
八王子本店:0120-512-355
(中央線西八王子駅より徒歩5分)
北野支店 :0120-186-202
(京王線北野駅より徒歩4分)
日野支店 :0120-186-203
(中央線日野駅より徒歩3分)
カフェエンラージ+SEデザイン:0120-512-357
(中央線西八王子駅より徒歩5分)
お問い合わせフォーム:
https://www.enlarge.tokyo/contact
来店予約:
https://www.enlarge.tokyo/raiten
資料請求:
https://www.enlarge.tokyo/book
*======*=======*======*======*======*









千葉県出身、八王子市在住。国際理工情報デザイン専門学校で建築を学び、二級建築士の資格を取得。自然素材系の新築会社でコーディネーターをしていたが、世界中の建築物を見て回るために退職し、世界一周の旅に出る。帰国後、2021年1月よりエンラージのプランナーとして入社。自然素材とペットリフォームが得意で、外構のデザインも実績が豊富。2023年にインテリアコーディネーター、2024年にはエクステリアプランナーの資格を取得して、プランニングのクオリティを高める。子供の頃から猫が大好きで、スタッフから「ネコちゃん」と呼ばれている。2025年10月より八王子本店に異動になり、大型案件で建築士やコーディネーターの資格をフルに活用している。