一級建築士事務所エンラージ|八王子市・日野市を拠点に価値のあるリノベーション&リフォームをご提案いたします
ひろびろLDKに大変身✨実家リノベ①
公開日:2026/1/20
皆さまこんにちは!
八王子本店・プランナーの米澤です🌼
今回は、昨年工事をさせていただいた日野市S様邸をご紹介したいと思います!
S様は、奥様のご実家でご夫婦とお子さん、お母様、2匹のわんちゃんと暮らしているお客様でした。
当初は建て替えを検討されていましたが、費用面からリフォームにすることに!
地元の会社にも相談してみようとHPからお問い合わせをいただきました✉️
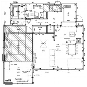
〇既存図面
〇リフォーム図面
工事前の1階LDKには大きなキッチンと間仕切り扉があったのでご家族皆さんで過ごすには狭く、築37年で水廻り設備の古さも気にされていました。
そこで、今回は1階の居住性を上げることをメインに、より生活しやすいよう間取り変更もしながら工事を行っていきました🔨
【工事前】
【工事中】
まずは解体工事から!
耐震性も気にされていたため、施工範囲は内壁も全体的に解体しました!
窓のサイズを変更して補強もしっかりと行い、
位置移動をする水廻り設備のために配管も切り回していきます!
内部では大工工事が着々と進み、新しいお風呂も搬入されました!
外部ではサッシ交換をした部分の外壁を補修し、屋根・外壁は塗装しました🎨
内部と同時進行でどんどん進んでいきます!
内部では内装工事も始まり、いよいよ完成です!
本日はここまで!
次回は完成後の様子ご紹介するのでお楽しみに!
八王子本店プランナー・米澤
************************
【 一級建築士事務所 ENLARGE 】
八王子本店:0120-512-355(中央線西八王子駅より徒歩5分)
北野支店 :0120-186-202(京王線北野駅より徒歩4分)
日野支店 :0120-186-203(中央線日野駅より徒歩3分)
お問い合わせ:https://www.enlarge.tokyo/contact
来店予約:https://www.enlarge.tokyo/raiten
資料請求:https://www.enlarge.tokyo/book
************************









静岡県浜松市出身、神奈川県相模原市在住。実践女子大学 生活環境学科で建築とインテリアを学び、2024年4月に新卒でエンラージ日野支店に入社。在学中に学んだ建築模型の知識を活かし、お客様にわかりやすいプレゼンを目指す。男性建築士とチームを組んで、大規模な戸建リフォームやマンションのフルリノベーションを多数担当して経験を積む。国の先進的窓リノベ補助金や自治体の補助金申請や見積書の作成等難易度が高い事務作業が得意。半年間八王子本店勤務で様々な経験を積み、4月より大きく成長して日野支店に戻る。