一級建築士事務所エンラージ|八王子市・日野市を拠点に価値のあるリノベーション&リフォームをご提案いたします
中古住宅の自然素材デザインリノベーション~LDK編~
最終更新日:2025/12/9 公開日:2025/12/12
みなさまこんにちは![]()
八王子市・日野市のリフォーム店
一級建築士事務所エンラージ日野支店の村松です🍒
本日は、中古戸建ての1階フルリノベーション事例を
ご紹介します✨
間取りを大幅に変更し、
水廻り設備を全て新しいものに交換しました。
内装は自然素材にこだわり、無垢床・スイス漆喰、
ウッドチップクロスを採用し、心地よい素敵なお家に
生まれ変わりました![]()
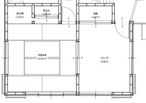
1階全体間取り図
Before・After
LDK
間取り図
Before
After
隣り合っていた和室とリビングの隔たりを無くし、
広々としたLDKに✨
元の間取りではリビングとダイニングキッチンが
離れた造りでしたが、
今回のリフォームで一体のLDKを実現しました!
Before
After
リビングの中央に残った抜けない柱を活かして
造ったアーチ開口はおしゃれなデザインに仕上がり、
アーチの丸みがお部屋全体を優しい印象にしてくれます💕
床はウッドワンのピノアースという
無垢パインフローリングを採用✨
クリアの自然塗料仕上げです。
無垢には空気中の水分を吸収・放出する調湿作用があり、
室内の湿度の変動を抑えるため、結露が少ないです!
快適で健康的な空間作りが魅力✨
夏の湿気の多い時期でもさらりとした肌触りで
冬場でも足が冷えにくく裸足で過ごしたり、
寝ころんでも気持ちいいのが特徴です![]()
壁は自然素材スイス漆喰塗りで仕上げました。
スイスアルプスから採れる最純度の石灰石だけを
原料に作られる最高品質の天然100%漆喰です![]()
スイス漆喰は、生物のように呼吸をしている素材で
室内の湿気を吸放湿してくれるので
年中を通して快適に過ごしやすい環境に![]()
また強アルカリ性という特徴があり、有機物や
空気中のウイルス、匂いまでも吸着し分解してくれ
さらに結露やカビの発生を抑えることができます。
静電気を発生させないのでホコリを寄せ付けず、
お手入れもほとんど必要ありません!
天井はオガファーザーで仕上げました。
オガファーザーとはウッドチップの入ったクロスです![]()
自然素材でできた呼吸する紙クロスと呼ばれており、
呼吸性があり湿気の行き来が出来るため
カビの発生を抑えられます!
また素材の表面で静電気を発生することがないので
ホコリを寄せ付けません!
アレルギー物質の少ない快適な室内空気環境を作れる素材です。
床・壁・天井全てに自然素材を採用し、より快適な空間になりました![]()
窓には内窓を設置しました。
内窓を設置することで断熱性・防音効果
防犯性が向上し、結露の軽減にもなります✨
リビングの収納があったところは
ピアノが置けるスペースになりました♪
Before
After
照明も素敵ですね💕
キッチン
Before
After
クリナップ『ラクエラ』
扉カラー:ナチュラルウッド
インテリアと調和するようナチュラルな柄を選びました![]()
リフォーム前の間取りではリビングとダイニングキッチンが
離れており孤立している印象でしたが、
キッチンを移動させ一体LDKにしたことで
家族と過ごしながら&他の家事や趣味をしながら
お料理できるようになりました✨
カップボード・食器棚も
ラクエラシリーズで統一しました!
しっかり収納できるので片付くキッチンに✨
次回は水廻り編です!お楽しみに✨
日野支店ショールームアドバイザー 村松 悠🍒
=======*========*=======*=======*=======
【 一級建築士事務所ENLARGE 】
八王子店:0120-512-355
(中央線西八王子駅より徒歩5分)
北野支店:0120-186-202
(京王線北野駅より徒歩4分)
日野支店:0120-186-203
(中央線日野駅より徒歩3分)
Cafe ENLARGE + SE design:0120-512-357
(中央線西八王子駅より徒歩5分)
お問合せ:https://www.enlarge.tokyo/contact
来店予約:https://www.enlarge.tokyo/raiten
資料請求:https://www.enlarge.tokyo/book
Instagram:https://www.instagram.com/enlarge.reform









八王子市出身、在住。白梅学園大学子ども学部卒業後、市内の幼稚園に勤務。約5年間幼稚園の先生をしていたが、結婚を機に退職。その後、実家をエンラージでリフォームした事をきっかけに、2022年9月よりエンラージ日野支店のショールームアドバイザーとして勤務。社交的な性格でスタッフからは「ハルちゃん」と呼ばれている。書道は二段、英検・漢検の有級者で華道もたしなむ多才な女性。 今年から会社の広報担当となり、4月からは初の異動で北野支店へ