一級建築士事務所エンラージ|八王子市・日野市を拠点に価値のあるリノベーション&リフォームをご提案いたします
ジャパンディなマンションフルリノベーション
公開日:2025/11/29
皆様こんにちは。
一級建築士事務所エンラージ日野支店の川崎です![]()
本日は『ジャパンディ』をテーマにしたマンションリノベーション事例をご紹介します![]()
今回ご紹介するA様邸は、中古マンションのご購入からリノベーション工事までお手伝いをさせて頂きました![]()
日々の生活や通勤状況、お子様たちの成長を考慮したうえで、理想を叶えられる物件・プランをご提案。
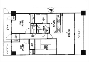
≪工事前間取り≫
≪ご提案プラン≫
3Dパースでイメージを共有しながらお打ち合わせを重ね…
工事の開始です![]()
いつも通りチームワーク良く綺麗に施工を進めていく職人さんたち。
さすがです![]()
完成の様子はこちら![]()
![]()
北欧風×和風テイストが特徴の『ジャパンディ』な内装かつ、ベージュトーンで明るい雰囲気に仕上がりました![]()
キッチンはペニンシュラタイプにして、コンロ前の壁を撤去。
キッチンに立ちながらお子様の様子を見ることができるようになりました。
以前は和室だった場所は洋間化し、LDKと一体化。
将来個室としても使えるように可変性のある間取りにしています。
A様邸の詳細はマンションリノベーション事例でもご紹介しております![]()
よろしければ是非ご覧くださいませ。
A様、この度はご新居探しから工事までお任せ頂きありがとうございました![]()
いつまでも笑顔と笑い声の絶えない素敵なご家族様でいらして下さいね。
今後ともよろしくお願いいたします。
+‥‥‥‥‥‥‥‥‥‥‥‥‥‥‥‥‥‥‥‥‥‥‥‥‥‥‥‥+
【 一級建築士事務所ENLARGE 】
八王子本店:0120-512-355 (中央線西八王子駅より徒歩5分)
北野支店 :0120-186-202 (京王線北野駅より徒歩4分)
日野支店 :0120-186-203 (中央線日野駅より徒歩3分)
お問い合わせフォーム:https://www.enlarge.tokyo/contact
来店予約:https://www.enlarge.tokyo/raiten
資料請求:https://www.enlarge.tokyo/book
インスタグラム:enlarge.reform
フェイスブック:エンラージ八王子
+‥‥‥‥‥‥‥‥‥‥‥‥‥‥‥‥‥‥‥‥‥‥‥‥‥‥‥‥+









京都府出身、八王子市在住。大学在学中に学芸員の資格を取得。大学卒業後に上京し、八王子市内の新築分譲会社で、内装と外構のコーディネーターとして勤務。建築の基礎知識を学んだ後、2017年よりエンラージ日野支店に入社。実践で学びながらインテリアコーディネーター・照明コンサルタント・色彩検定一級の資格を次々と取得。2024年には二級建築士の資格を取得して、設計やデザインの幅を更に広げる。新築の経験を生かし、ビフォー・アフターのようなフルリノベーションを得意とする。京都弁が似合うはんなりとした女性。