一級建築士事務所エンラージ|八王子市・日野市を拠点に価値のあるリノベーション&リフォームをご提案いたします
予算1000万円で叶える夢のリフォーム🏠
公開日:2025/7/16
皆様こんにちは![]()
エンラージ八王子店プランナーの森です🐶
お問い合わせをいただきご要望などをお伺いすると、
「予算感がわからない」というお声を多くいただきます。
初めてのリフォームで見当がつかなという方も多くいらっしゃいます。
また事例などを見られている方でも、
ご自宅の大きさによってかかる費用も異なります。
そこで今回は過去の事例と共に、
1000万で出来るのリフォームをご紹介![]()
※施工当時の金額となります。
戸建て全面リフォーム工事
当社で中古購入から施工までワンストップでお任せくださいました。
ライフスタイルやお好みのインテリアに合わせて、
1階をメインとした全面リフォームと外装工事を行いました![]()
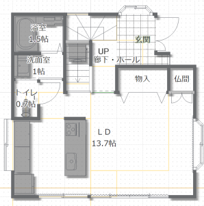
【リフォーム前の平面図】
【リフォーム後の平面図】
キッチンはアイランドキッチンに変えて、
LDKに隣接していた和室は洋室化に![]()
コンロ前はタイルにしてスタイリッシュになりました![]()
キッチンはリクシル「リシェル」
ワークトップはセラミックなのでより高級感のある仕上がり![]()
そして床はお手入れが楽なフロアタイル![]()
お子様が走り回れる広い空間のリビング・ダイニング
床は無垢のパイン材に自然素材の「リボス」を塗布![]()
2階の洗面化粧台は壁面タイル仕上げと
アクセントクロスを使用してオシャレに![]()
外装もホワイトにして、
ご家族のイメージにピッタリな仕上がりになりました![]()
築21年の木造住宅の全面リフォーム工事
1階は水廻り交換や内装工事(間取り変更含む)
2階は内装工事とトイレ・洗面化粧台の交換、
屋根や外壁塗装(雨樋交換含む)
・延床面積:約37坪
・工事費用:約1000万円
相続した実家の全面リフォーム工事
ご両親様から受け継いだご実家を
使いやすくリフォームをしたいとご依頼をいただきました。
介護を目的とした造りとなっていましたが、
若いご夫婦の生活スタイルには合わない点が多く、
傷みもあったのでリフォームをすることに![]()
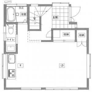
【リフォーム前の平面図】
【リフォーム後の平面図】
洗面脱衣室がなかったので新設をして、
洗濯機を置けるようになりました![]()
壁付けだったキッチンは、
回ることができるように配置![]()
限られた空間を最大限に活用しつつ
圧迫感のないデザインに仕上がりました![]()
エントランスは窓や玄関ドアはそのまま生かしつつ、
珪藻土を塗ることで明るい雰囲気となりました![]()
珪藻土は調質効果もあるので玄関にもピッタリ![]()
築45年の木造住宅の全面リフォーム工事
1階は水廻り交換や内装工事(間取り変更含む)
2階は和室を洋室化や内装工事
・工事費用:約730万円
中古購入したマンションの全面リフォーム工事
中古購入したマンションのリフォームを
OB様からのご紹介でご依頼をいただきました。
こだわりとさまざまなアイディアを盛り込んだ理想の新居に![]()
キッチンは壁を取ってオープンで明るくしました![]()
機能性・収納力・デザイン性とこだわりの詰まった一体型LDKに![]()
壁面収納は既製品と造作部材を組み合わせた完全オリジナル![]()
そして元々和室だったスペースは洋室化をして、
リビングと一体化をしました![]()
必要に応じて間仕切ることも可能![]()
SICは土間式の多目的収納に![]()
元々あった間仕切り壁を撤去してオープンな作りにしました![]()
そして納戸は大容量なので、たくさん収納できます![]()
マンションの全面リフォーム工事
水廻り交換、内装工事、内窓設置工事
・工事費用:約1060万円
リフォームの内容やご自宅の大きさなどで、
金額は変わってきますがご予算に合わせたご提案が可能です![]()
建築士や女性プランナーが担当となり、
プランなどをご提案いたします![]()
リフォームをご検討中の方はぜひ一度エンラージまで
お問い合わせください![]()
八王子店 森
*========*========*=======*=======*=======*=======*========*========*
【 一級建築士事務所ENLARGE 】
八王子本店:0120-512-355 (中央線西八王子駅より徒歩5分)
北野支店 :0120-186-202 (京王線北野駅より徒歩4分)
日野支店 :0120-186-203 (中央線日野駅より徒歩3分)
お問い合わせフォーム:https://www.enlarge.tokyo/contact
来店予約:https://www.enlarge.tokyo/raiten
資料請求:https://www.enlarge.tokyo/book
*========*========*=======*=======*=======*=======*========*========*









八王子市出身、在住。都立高校を卒業後、スポーツ用品やデニムの販売に携わり、接客のマナーやスキルを学ぶ。その後、住宅の内装やデザインに興味を持ち、インテリアコーディネーターを志してエンラージに入社。実家が畳屋さんという事もあり、子供の頃から建築や職人さんにはシンパシーを感じている。3Dパースやデザインが得意で、増築・中古購入+リノベーション・オフィスのリフォーム等難しい案件を次々と担当してスキルを磨く。2025年10月より北野支店のチーフプランナーに就任し、トップランナーとしてスタッフをリードする。