一級建築士事務所エンラージ|八王子市・日野市を拠点に価値のあるリノベーション&リフォームをご提案いたします
マンションリフォームもお任せください!
公開日:2025/3/22
みなさまこんにちは![]()
リフォーム祭ではたくさんのご来場ありがとうございました![]()
はじめましてのお客様や、以前担当させていただいたお客様にもたくさんお会いできて
すごーーーく嬉しかったです![]()
また秋にも開催が決定してますので、またお気軽に遊びに来てくださいね~!![]()
さて!当社は一戸建ての全面リフォーム事例が多いのですが
マンションの全面リノベーションも得意としています![]()
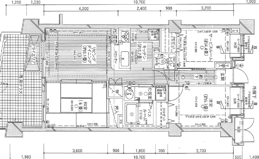
まずはリフォーム完成後のLDK写真から![]()
リビングに隣接して小上がりの畳コーナーがあり、間仕切り開閉壁で仕切れるようになっています![]()
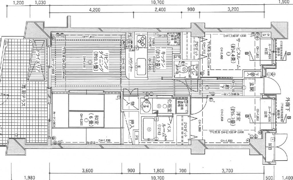
この素敵な間取りは、お風呂・洗面所・トイレの水廻りの位置を大幅に移動して実現した夢のプランなのです![]()
【リフォーム前の間取り】
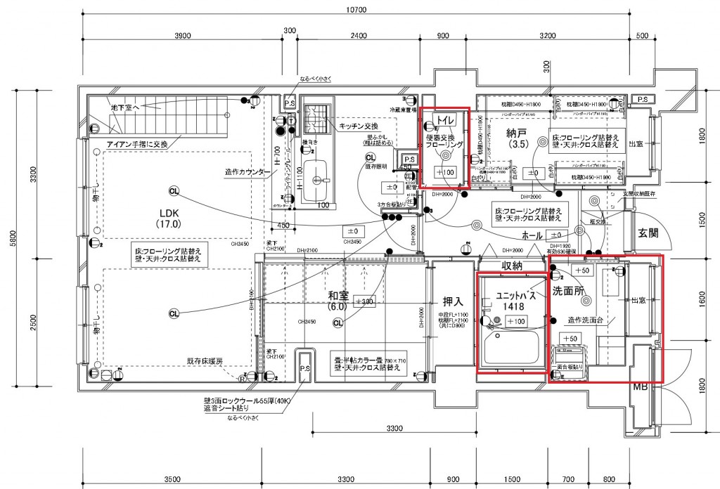
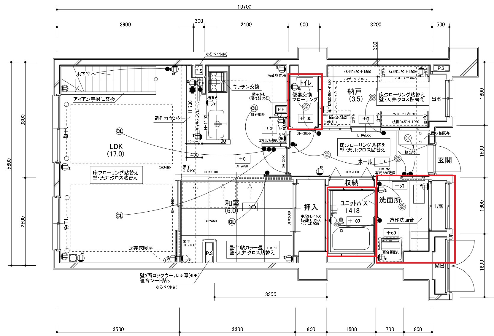
【リフォーム後の間取り】
お風呂と洗面所を北側の洋室にずらし、空いたスペースに和室を配置しています![]()
トイレも位置を変えて少し広くしました![]()
こちらがスケルトン解体後の写真です![]()
マンションのパイプスペースは動かせませんが、給水管や排水管をやり替えて水廻りを移動しました![]()
畳コーナーの壁面にPSがあるのですが、棚を付けて上手に利用しました![]()
和室で寝る時は、間仕切り開閉壁を閉めて個室にできます。
洗面・脱衣室は元々北側の洋室だったので、とても広いです。
サッシを二重サッシ(内窓)にして、ミラーを兼ねるように工夫を凝らしました![]()
お風呂はこれまでの1216サイズから1418サイズに広げました![]()
お風呂を大きくするためには位置の変更が必要だったのです![]()
キッチン前の壁を取り払い、オープンな対面キッチンにリニューアルしました![]()
間取り変更で、リフォーム前とはまったく異なる『モデルハウス』のようなマンションになりました![]()
今のお住まいは多少古くても“間取り変更”で理想の住まいへと生まれ変わるかもしれません![]()
より良い暮らしをご希望の方は、設計が得意なエンラージにまずは一度ご相談下さい![]()
八王子店 松村![]()
=======*========*=======*=======*=======*=======*========*========*
【 一級建築士事務所ENLARGE 】
八王子本店:0120-512-355 (中央線西八王子駅より徒歩5分)
北野支店 :0120-186-202 (京王線北野駅より徒歩4分)
日野支店 :0120-186-203 (中央線日野駅より徒歩3分)
お問い合わせフォーム:https://www.enlarge.tokyo/contact
来店予約:https://www.enlarge.tokyo/raiten
資料請求:https://www.enlarge.tokyo/book
*========*========*=======*=======*=======*=======*========*========*


















青山製図専門学校 建築設計研究科出身、立川市在住。高校卒業後専門学校でインテリアデザインと建築設計を学び、二級建築士の資格を取得。建築の中でもリノベーションに興味を持ち、2019年4月に新卒でエンラージに入社。二級建築士資格を生かし、多数の大規模リフォームの設計・デザインを担当。25歳の時に立川市内に土地を購入して注文住宅を新築。自ら設計・デザインした自然素材の家で暮らす。本店で大規模なリフォーム多数担当し、古民家リフォームにも精通。子供の頃からポケモンが大好きで、ピカチュウのぬいぐるみに日々癒されている。最近では料理にハマり、栄養バランスの良いお弁当や夕食を毎日作るようになった。