一級建築士事務所エンラージ|八王子市・日野市を拠点に価値のあるリノベーション&リフォームをご提案いたします
中古住宅 リノベーションの費用はいくら? ~戸建て編~
最終更新日:2023/6/25 公開日:2023/2/22
こんにちは!![]()
八王子市で地域密着のリフォーム店、エンラージ北野支店の山下です![]()
“ 中古住宅を買ってリノベーションをする場合の費用 ”について
当社で施工した事例をもとに、ご紹介します![]()
![]()
築30年の木造住宅(在来工法)を購入してフルリノベーションをしたS様邸
物件価格 1,980万円
リノベーション費用 1,700万円
諸費用 約200万円
―――――――――――――――
総額 約3,880万円
S様は、八王子市内の閑静な住宅街の一角に建つ、1,980万円の物件を購入されました![]()
![]()
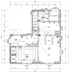
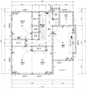
[Before 間取り図]
5LDKで車が2台停められる、築30年の木造住宅でした![]()
[Before LDK]
[Before キッチン]
既存のキッチンは、DKに背を向けるかたちの壁付仕様![]()
[Before 和室]
LDKに隣接する和室は何かと便利に使えるので
そのまま和室として活かしますが、雰囲気を変え
「モダン」で、おしゃれな和室にリニューアルします![]()
![]()
[Before 浴室]
[Before 1Fトイレ]
[Before 2Fトイレ]
[Before 1F洗面台]
[Before 2F洗面台]
[Before 外観]
既存の外壁は、モルタル仕上げの外壁![]()
リノベーション費用には1,700万円をかけてリニューアル![]()
![]()
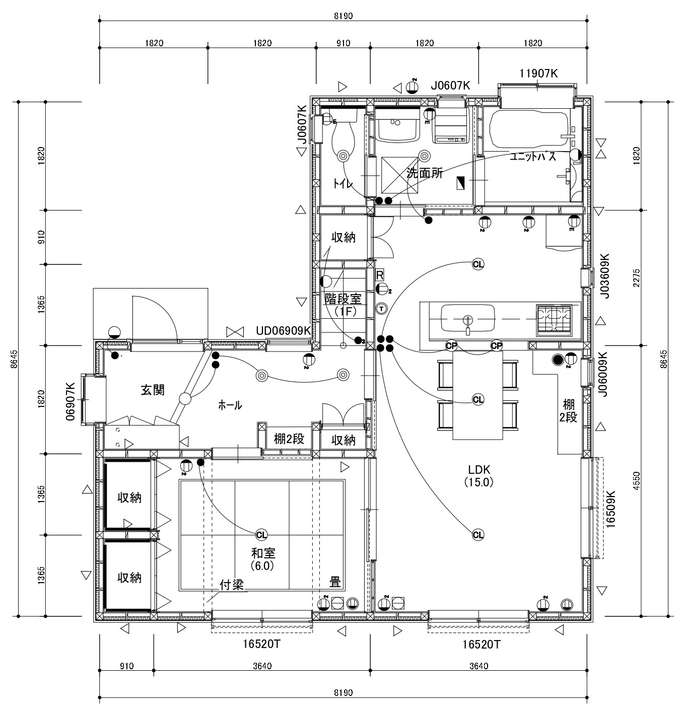
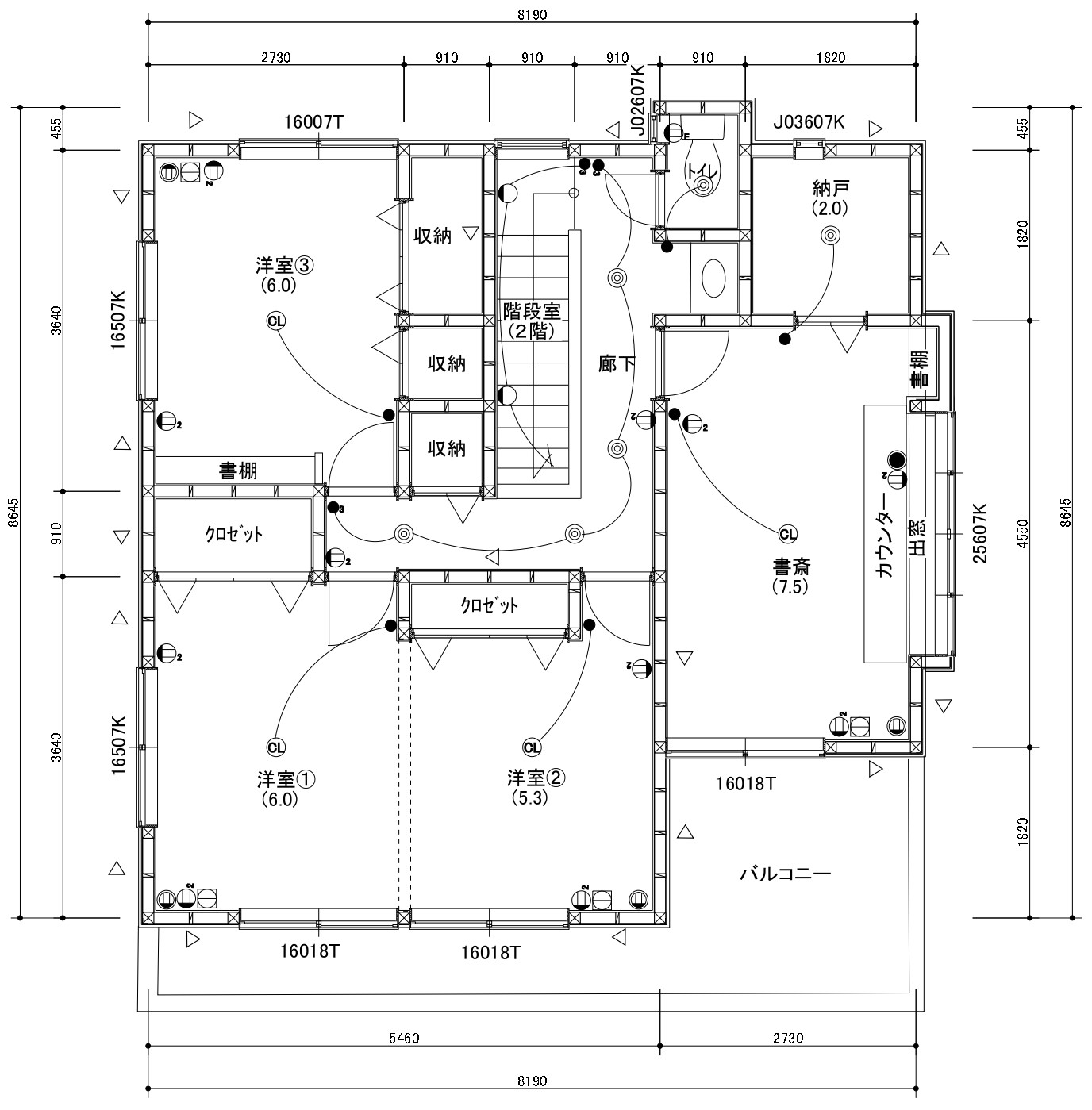
[After 間取り図]
大きな間取変更は行なっていないものの、
スケルトンの状態にまで解体をしてから
必要な箇所に筋交いなどを入れるなどの耐震補強をしっかりと行ない、
耐震診断の評点1.0以上に適合する建物に改修!![]()
![]()
※スケルトンとは・・・
建物の壁・柱・天井の骨組みの事。
スケルトンの状態にまで解体をしてリノベーションをすることを
「スケルトンリノベーション」という事もあります。
大きな間取変更や耐震補強を含むリノベーションの場合には、
よく行なう方法です。
[スケルトンまで解体した様子]
また、内装には無垢フローリングや、
スイスしっくい・珪藻土などの自然素材を採用![]()
![]()
![]()
フローリングは、無塗装の無垢のパイン材を使用し
お好みの色に塗装して仕上げています。
[After リビング]
・床:無垢のパイン材
・壁:スイスしっくい
・天井:ビニールクロス
[After 和室]
・床:半畳たたみ
・壁:珪藻土
・天井:ビニールクロス
水廻りも最新の設備を導入![]()
![]()
![]()
[After 浴室]
・TOTO「サザナ」1坪サイズ
[After 1Fトイレ]
・LIXIL「アメージュZ」
[After 2Fトイレ]
・LIXIL「アメージュZ」
[After 1F洗面台]
・トクラス「EPOC(エポック)」
[After 2F洗面台]
・パステルブルーのタイルと実験用シンクを併せたオリジナルの造作洗面です。
[After キッチン]
・トクラス「Bb」
キッチンの位置を変更し、対面化。
[After 2F洋室]
・床:シートフローリング
・壁:ビニールクロス
・天井:ビニールクロス
外壁は、モルタル仕上げからサイディング貼りに変更。
既存のモルタルの外壁の上からサイディングを貼っていく「上貼り」で施工しました。
[After 外観]
屋根は遮熱塗料で塗装して
外からの見た目は、新築同様です![]()
![]()
![]()
物件価格 1,980万円
リノベーション費用 1,700万円
諸費用 約200万円
―――――――――――――――
合計 約3,880万円
※住宅購入の際には、登記費用や火災保険料、
ローンの保証料や仲介手数料などの諸費用がかかります。
続いて・・・![]()
![]()
![]()
高級住宅街の一角の古家付き土地を購入されたN様邸
築52年の古家をリノベーションしてこれからも安心して暮らせる住まいに![]()
物件価格 2,415万円
リノベーション費用 2,470万円
諸費用 約200万円
――――――――――――――――
合計 約5,085万円
N様は、駅からの道のりが平坦であることや利便性など、
物件の場所をとても気に入り、2,415万円の中古住宅を購入!![]()
![]()
![]()
[Before 居間]
築50年を超えるの古家だったので、
内部・外部ともに昔ながらの造りの建物でした![]()
[Before 外観]
[Before キッチン]
昔ながらの独立した間取りのキッチン![]()
[Before 浴室]
タイル張りの寒々しい浴室![]()
[Before 洗面台]
洗面台も狭く使いづらそうでした![]()
[Before トイレ]
リノベーション費用には2,470万円をかけ、耐震補強から間取り変更なども行ない
フルリニューアル![]()
![]()
![]()
[After 間取り図]
築52年の物件の決め手は、広いLDKを確保できることでした![]()
階段の位置は思い切って変更し、リビングイン階段に![]()
大幅な間取り変更をしながら、耐震補強も行なっています![]()
[解体時の様子]
[耐震補強]
解体後は耐震補強をしっかりと行ない、
間取りも変更しながら仕上げていきます![]()
![]()
ここからが、After![]()
![]()
![]()
[After LDK]
・床:天然木突板のフローリング
・壁:ビニールクロス
・天井:ビニールクロス
階段側の一面には、へリンボーン柄のクロスでアクセントを![]()
[After キッチン]
・LIXIL「アレスタ」
キッチンの正面には、お子様が勉強できるスタディスペース![]()
キッチンで作業をしながらお子様の様子がうかがえます。
[After スタディスペース]
寝られるスペースと収納を兼ね備えた畳コーナーをLDKに隣接![]()
[After 和室]
[After 浴室]
・TOTO「サザナ」1坪サイズ
[After 1Fトイレ]
・LIXIL「リフォレ」
[After 2Fトイレ]
・LIXIL「アメージュZA」
[After 洗面台]
・LIXIL「LC(エルシー)」
[After 外観]
窓や玄関ドアもすべて交換し、断熱性がUP!
さらに、外壁は既存のサイディングを撤去の上、貼替えて
屋根もガルバリウム鋼板で葺き替えました。
外観や外構もリニューアルし、中古の注文住宅が完成![]()
高級住宅街の一角で自分たちのライフスタイルに合った
こだわりの注文住宅が実現しました![]()
![]()
物件価格 2,415万円
リノベーション費用 2,470万円
諸費用 約200万円
――――――――――――――――
合計 約5,085万円
※住宅購入の際には、登記費用や火災保険料、
ローンの保証料や仲介手数料などの諸費用がかかります。
中古住宅 リノベーションは、
新築の注文住宅や建売住宅では実現しづらい、立地やご予算で
マイホームを実現できるのが最大のメリットです![]()
![]()
☆★☆★☆★☆★☆★☆★☆★☆★☆★☆★☆★
【 一級建築士事務所 ENLARGE 】
八王子本店:0120-512-355
.(中央線西八王子駅より徒歩5分)
北野支店 :0120-186-202
.(京王線北野駅より徒歩4分)
日野支店 :0120-186-203
.(中央線日野駅より徒歩3分)
お問合せ:https://www.enlarge.tokyo/contact
来店予約:https://www.enlarge.tokyo/raiten
資料請求:https://www.enlarge.tokyo/book
☆★☆★☆★☆★☆★☆★☆★☆★☆★☆★☆★
北野店
やました



















































