一級建築士事務所エンラージ|八王子市・日野市を拠点に価値のあるリノベーション&リフォームをご提案いたします
間取り変更で理想の暮らしを手に入れる❢ PartⅡ
公開日:2022/11/27
甲州街道のいちょう並木もほぼ落葉して、いよいよ冬が近付いてきました![]()
これから年末にかけてはとても忙しくなるので、気合を入れて頑張ります![]()
前回のブログ 間取り変更で理想の暮らしを手に入れる で、間取り変更の事例をご紹介しましたが
好評だったので、間取り変更事例 PartⅡをご紹介させていただきます![]()
まずは完成写真から![]()
どこからどう見ても素敵な新築ですよね![]()
この事例もなんと全面リフォームなんです![]()
こちらが施工前の外観写真です![]()
築約35年で和風なお家でした。
国立市M様の一番のご希望は「陽当りの良い2階にLDKを移動したい❢」というものでした。
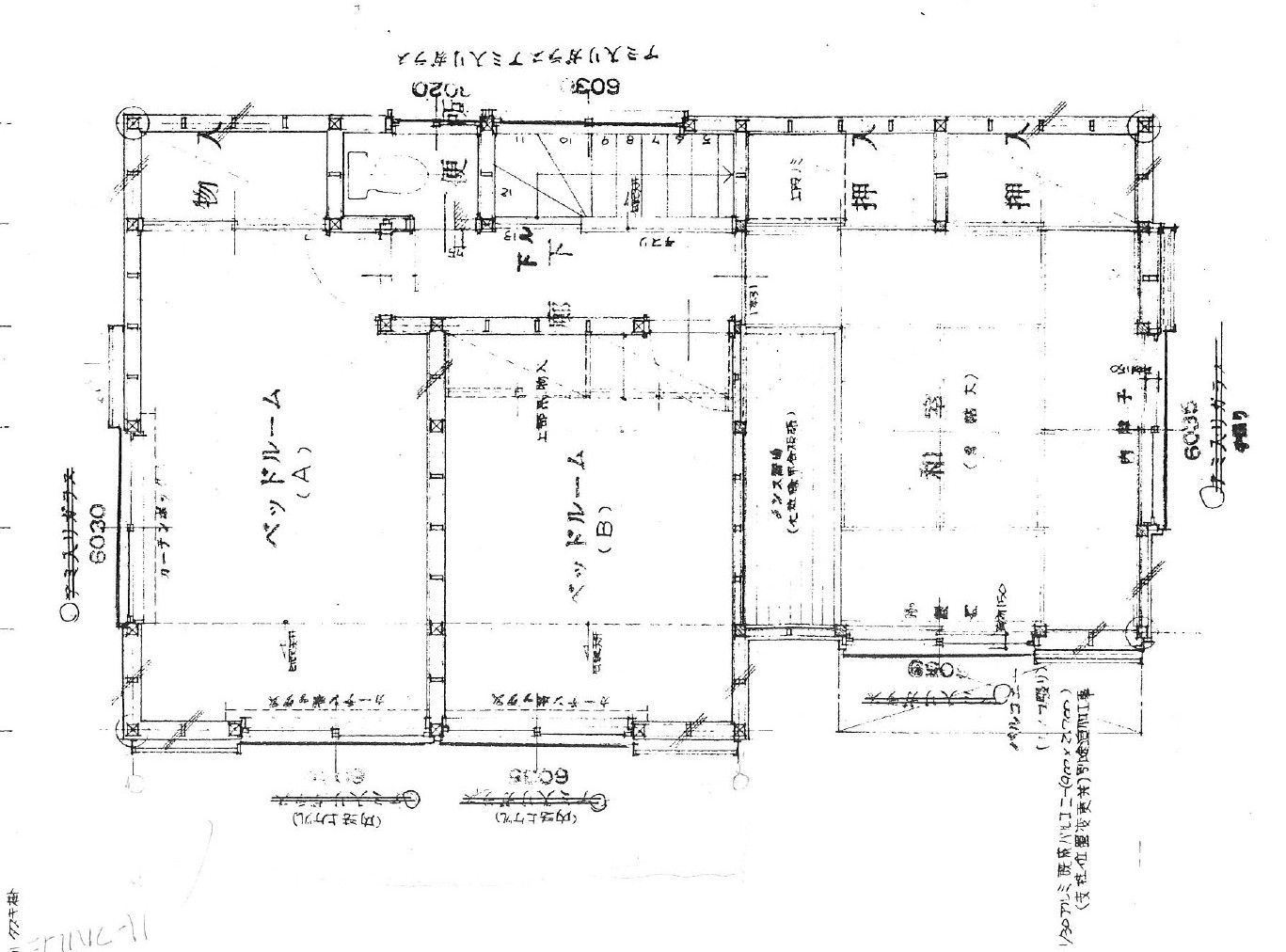
こちらがリフォーム前の2階平面図です。
ホームプロからお問合せを頂いたお客様でしたので、数社さんがプランのご提案をしました。
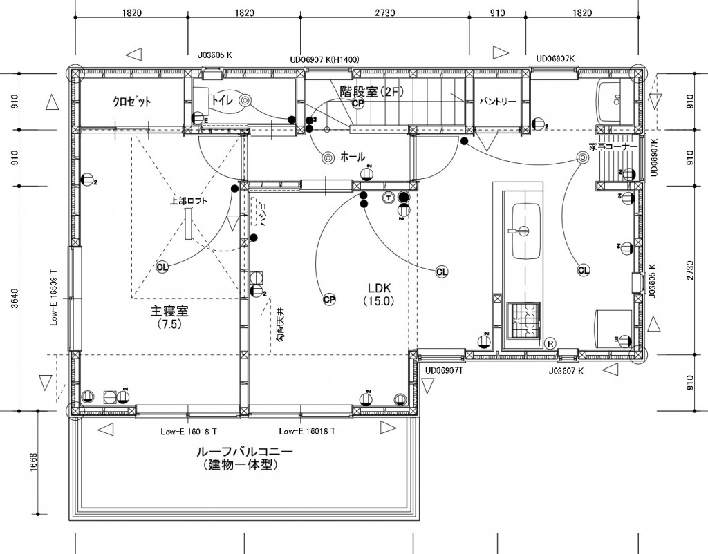
エンラージのご提案プランはこちらです![]()
対面式のキッチンや小屋裏を利用したロフトスペース、階段の位置変更(掛け替え)、造作のバルコニー等、
他社さんのご提案を上回る斬新で画期的なプランでした![]()
M様は迷わず当社をお選び下さいました![]()
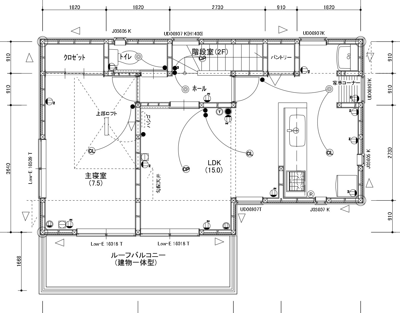
こちらがリフォーム完成後の2階LDKの写真です![]()
天井を解体したら古い丸太梁が見えたので、塗装をしてそのまま現しにしました![]()
屋根なりの勾配天井にしたので、居住空間が広がり実際より広く感じます![]()
ハシゴで上るロフトは秘密基地みたいで、お子様方は大喜び![]()
約6帖もある広いルーフバルコニーも新設しました![]()
生まれ変わった我が家にご家族の皆様は大喜びでした![]()
今のお住まいは多少古くても“間取り変更”で理想の住まいへと生まれ変わるかもしれません![]()
より良い暮らしをご希望の方は、設計が得意なエンラージにまずは一度ご相談下さい![]()
八王子店プランナー 前田
=======*========*=======*=======*=======*=======*
【 一級建築士事務所ENLARGE 】
八王子本店:0120-512-355 (中央線西八王子駅より徒歩5分)
北野支店 :0120-186-202 (京王線北野駅より徒歩4分)
日野支店 :0120-186-203 (中央線日野駅より徒歩3分)
お問い合わせフォーム:https://www.enlarge.tokyo/contact
来店予約:https://www.enlarge.tokyo/raiten
資料請求:https://www.enlarge.tokyo/book
*========*========*=======*=======*=======*=======*
















