一級建築士事務所エンラージ|八王子市・日野市を拠点に価値のあるリノベーション&リフォームをご提案いたします
建築確認が必要な増築工事
最終更新日:2023/5/27 公開日:2023/5/26
リフォームのご相談にいらっしゃるお客様のご要望で多いのは「増築工事」です。
当社では増築したい理由や目的を詳しくお伺いした上で、最適なプランをご提案するよう努めています。
一般のリフォーム店ではなく、設計事務所ならではのプランニングが当社の強みでもあります。
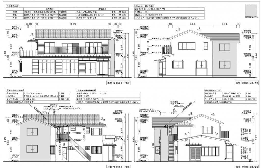
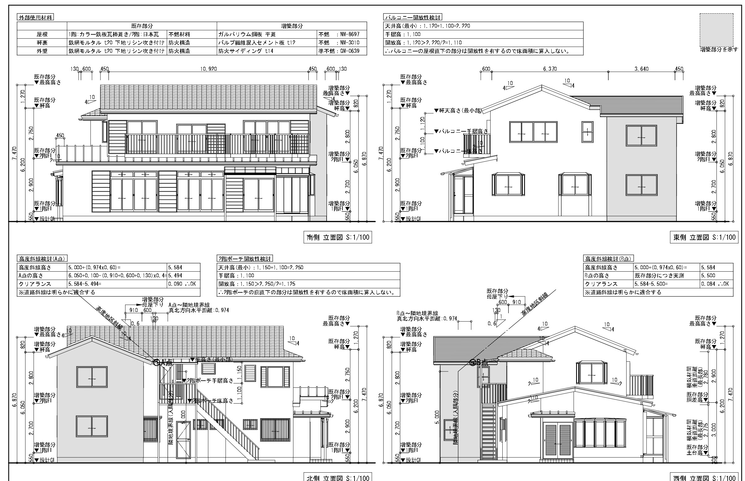
こちらは実際に施工させて頂いた八王子市E様邸のご提案パース図です。
二世帯住宅の2階が手狭になってきたので、増築して子供部屋を2部屋増やしたいというご希望でした。
当初は2階のみを増築して1階はピロティにしたいというご希望でしたが、
1階・2階ともに増築して内階段を設置するプランをご提案させて頂きました。
建物構造の強度やコストダウンを考慮してのご提案プランをとても喜んで下さり、
建築確認を申請した上で、増築工事の着工となりました。
【施工前】
【増築後】
2階の子供部屋
専用内階段
1階の子供部屋
このように、設計事務所ならでは視点でベストプランをご提案させて頂きます。
10㎡を超える増築や準防火地域での増築は「建築確認申請」が必要ですが、
自社で確認申請を行い、施工までワンストップで対応できるのが当社の強みです。
増築のご相談は、エンラージ各店のショールームで随時受付けておりますので
図面をご持参の上、お気軽にご来店下さい。
=======*========*=======*=======*=======*=======*
【 一級建築士事務所ENLARGE 】
八王子本店:0120-512-355 (中央線西八王子駅より徒歩5分)
北野支店 :0120-186-202 (京王線北野駅より徒歩4分)
日野支店 :0120-186-203 (中央線日野駅より徒歩3分)
お問い合わせフォーム:https://www.enlarge.tokyo/contact
来店予約:https://www.enlarge.tokyo/raiten
資料請求:https://www.enlarge.tokyo/book
*========*========*=======*=======*=======*=======*















