一級建築士事務所エンラージ|八王子市・日野市を拠点に価値のあるリノベーション&リフォームをご提案いたします
デザインリノベーション:ウォークインクローゼット編
公開日:2021/7/24
皆様こんにちは![]()
本日の北野店ブログでは、デザインリノベーション:ワーキングルーム編の続きをご紹介します![]()
ウォークインクローゼットに改修する部屋は、ワーキングルームの隣室にある洋室です。
お手持ちのお洋服や鞄・小物類を一か所に収納し、身だしなみを整える空間としても活用したいというご要望を頂きました![]()
ユニット収納の設置や小壁の造作をし、全体的に使いやすくなるようプランしています![]()
![]()
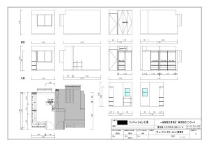
工事前のお部屋の様子です。
工事はワーキングルーム同様、既存のクローゼット解体から行います![]()
壁に下地を設けたり、小壁の造作、室内窓の設置などをしていきます。
室内窓はLIXILの『デコマド』をご採用頂きました![]()
室内窓が設置されている小壁の後ろのスペースは、奥様の鏡台置き場です。
元々コンセントのない場所でしたが、鏡台用として新設することにいたしました![]()
室内窓下に可動棚を設置するのですが、棚柱は壁を一部凹ませて埋め込むように設置![]()
柱が目立たなくなり、また、壁と棚との間に隙間もなくピッタリ納まっています。
大工さん・電気屋さんの施工の後は、内装屋さんの作業になります。
こちらのお部屋も下地処理から丁寧に施工くださいました![]()
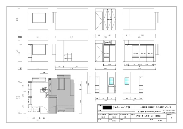
ここからは完成後のお部屋です![]()
ネイビーとレンガのクロスが特徴的な、インダストリアな雰囲気漂うショップ風ウォークインクローゼットとなりました![]()
壁にラメ感のあるグレーのクロスを使用することにより、カッコよさだけではなく、さりげない上品さも演出。
差し色としてブラックを細部に取り入れることで、グッと引き締まりのある空間になっています。
室内窓のガラスはアンティーク調の種類をご選定頂いて、ほんのり可愛らしさもあって素敵ですね![]()
収納や棚の傍に全身鏡を設置しているので、身だしなみを整えながらコーディネートをチェックすることもできます![]()
N様、今回の工事もお任せ頂き誠にありがとうございます。
1年程前にワーキングスペースとウォークインスペースの工事のご相談を頂いておりましたので、1年越しに実現でき、感無量の思いです。
お二人からご希望を伺い、「日々暮らしやすく、”好き”に囲まれる空間をご提供したい
」と思い、設計担当者と一生懸命プランを考えご提案させて頂きました。
お引渡しの時に「素敵過ぎて自分の家じゃないみたい」と仰って頂くことができ、とても嬉しかったです![]()
お荷物の整理は落ち着かれた頃でしょうか?
どのようにお使いになっているのか、是非拝見させてくださいね。
今後ともよろしくお願い致します![]()
*========*========*=======*=======*=======*=======*========*========*
【 一級建築士事務所ENLARGE 】
八王子本店:0120-512-355 (中央線西八王子駅より徒歩5分)
北野支店 :0120-186-202 (京王線北野駅より徒歩4分)
日野支店 :0120-186-203 (中央線日野駅より徒歩3分)
お問い合わせフォーム:https://www.enlarge.tokyo/contact
来店予約:https://www.enlarge.tokyo/raiten
資料請求:https://www.enlarge.tokyo/book
*========*========*=======*=======*=======*=======*========*========*
北野支店:かわさき🐰
























